🔥🔥长沙【运达大泽湖 】🔥🔥
☏【售楼中心电话】✨✽✽✽✽
VIPline:400-159-8559转接8899【贵宾热线】
☏(提前来电预约享内部折扣)✨✽✽✽✽
⫸预约来电尊享线上团购优惠✨✽✽✽✽
⫸开发商售楼处直销,中介勿扰!✨✽✽✽✽
⫸网上售楼中心24小时销售热线〢欢迎您的来电咨询〢
1
顶层设计:城市雄心浇筑的“样板新城”
大泽湖片区坐拥湘江黄金水岸,是长沙一江两岸的沿江核芯板块,是长沙市“十个重大城市片区”之一,更是“全球研发中心城市三基地”核芯。
其规划蓝图,以“生态、智慧、活力”三位一体为灵魂,旨在打造成为“省会新地标,湘江未来城”。这一顶层设计,为大泽湖的发展指明了方向,也吸引了众多优质资源的汇聚。

全国首个正式揭牌的“欧美同学会海归小镇(长沙·智能制造)”在此扎根,叠加“湘商总部基地”的磁吸效应,已成功集聚包括澳优总部、新奥燃气总部、中交湘江总部、永杉锂业总部等在内的13家世界500强和上市公司。
未来,这里将汇聚超过700家高新技术企业,形成澎湃不息的创新动能与高端人才虹吸效应。


在生态方面,大泽湖片区更是独树一帜。片区规划蓝绿空间占比高达97%,这在城市开发中堪称奢侈。
核芯便是已开放的约3000亩大泽湖近自然湿地公园。它摒弃传统公园的过度人工雕琢,以“近自然”理念修复生态,构建“人鸟共生”的和谐画卷。这种将生态保护与城市发展深度融合的理念,在长沙乃至全国都具有前瞻性。

2
配套兑现:从蓝图到实景的超级速度
大泽湖片区的价值,更在于其令人惊叹的兑现效率,彻底打破了新区配套“画饼”的魔咒。
在交通方面,地铁4号线北延线已于2024年底开工,建成后将大大缩短大泽湖与主城的时空距离。横跨湘江的交通要道香炉洲大桥已建成通车,进一步完善了区域的交通网络,让居民能够轻松融入主城“半小时生活圈”。

教育是民生之本,更是吸引人才的关键。湖南第一师范大泽湖学校已率先开学,提供优质基础教育保障;更重磅的是,长沙市一中、湖南师大附中两大湖湘一梯队教育品牌的新校区将于2025年9月正式开学,瞬间拉升区域教育能级至长沙第一梯队。☎️☎️售楼处电话☎️☎️400-159-8559转接5555【已认证】(来电尊享优惠活动)


医疗配套上,长沙市第四医院新院区已投入运营,为居民健康提供坚实后盾。
二、运达河西首秀
以硬核实力,敬献一城封面
在长沙河东,运达的名字,早已是“高端品质”与“价值典范”的代名词。此次落子河西大泽湖芯,是其深耕湖湘三十载实力与远见的集中迸发。
1
品牌实力:湖湘高端人居的“金字招牌”
从运达中央广场、运达会展湾、运达滨河广场等高端住宅项目,到瑞吉、W酒店等顶奢酒店序列,运达用三十年时间,在长沙乃至湖南树立了难以撼动的“高端营造专家”形象。其作品,已成为城市精英阶层身份认同与品质生活追求的象征。

运达对品质的追求近乎苛刻,从项目选址、规划设计到建筑施工、装修选材,每一个环节都严格把控。
“运达=高端+保值”已成为长沙楼市的普遍共识,其匠造的榜样项目在二手房持续稳居片区价格高位,以强劲的溢价能力与市场流通性,成为运达品牌价值最有力的市场佐证。☎️☎️售楼处电话☎️☎️400-159-8559转接5555【已认证】(来电尊享优惠活动)

同时,运达还拥有强大的交付力和服务运维力,为业主提供全方位的优质服务。
去年运达中央广场三期、运达会展湾一期、运达滨河广场三盘,不同的建筑形态和产品业态集中交付,一次性收房率达到100%。如此高的一次性收房率,在全国范围内都是凤毛麟角的,运达再一次为长沙地产品质交付打样。

2
实景呈现:所见即所得的”顶豪底气”
在“期房风险”备受关注的当下,运达大泽湖项目以准现房的姿态亮相,目前19栋住宅已全部封顶。这种“所见即所得”的状态,极大地消除了购房者的不确定性,彰显了运达作为实力房企的自信与担当,为客户注入强心剂。

项目开放的1.5万㎡实景示范区,绝非简单的售楼处,而是一个完整的高品质生活场景预演。
包含了精心打造的绿带公园、归家大堂、业主会所、商业广场以及多套精工样板间等。从园林景观的一草一木、水景叠石,到建筑立面的材质细节、工艺工法,均可近距离感知、触摸。开放2天吸引超2000人到访,正是市场对“运达现象”与实景魅力的最直接回应。




3
生态与园林:公园里的“森居艺术馆”
依托大泽湖湿地公园这一无价生态资源,运达将“公园住区”理念完美演绎。
项目与大泽湖近自然湿地公园形成真正的“毗邻共享圈层”,步行约5分钟即可抵达。推窗见湖,出门入园,湿地公园成为社区天然的“后花园”与“会客厅”。
社区内部大手笔打造约8万㎡美学园林,外围更规划有8000㎡城市绿带公园,形成内外双重生态屏障与景观层次,有效过滤城市喧嚣,确保社区内部环境的纯粹与静谧。


更难能可贵的是,项目规划采用约1:1的超宽楼间距,这在寸土寸金的城市开发中十分少有。此举不仅保障了每户的通风采光与私密性,更将精心营造的内部园林最大化地呈现于每位业主的窗前,犹如一幅幅无遮挡的“巨幕生态画卷”,将生活的诗意无限放大。
4
产品设计:定义未来的“花园住宅革新”
运达大泽湖的产品力,是其立足高端市场的核心竞争力,多项创新直击高端改善人群痛点。项目引入并升级了具有革命性的“第四代住房”理念,获国家实用新型专利。☎️☎️售楼处电话☎️☎️400-159-8559转接5555【已认证】(来电尊享优惠活动)

6.5米挑高空中庭院,实现“推窗见绿、出门即景”,兼具大平层视野与别墅花园体验。

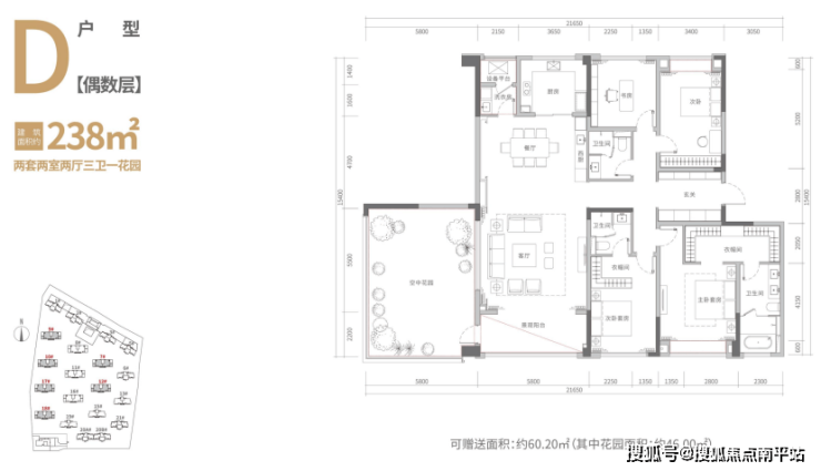
同时,238㎡大四房,可赠送面积约60.20㎡,得房率达110.2%;296㎡大五房,可赠送面积约70.80㎡,得房率达111%,是真正的负公摊产品。


除运达原创专利级花园住宅产品外,项目中的阔景小高层亦以3.25米的奢适层高营造超越同侪的空间气度。建筑面积约135/156/222㎡,户型方正,布局规整,结合双阳台设计,让空间更加开阔通透。
(左右滑动查看更多)
装修方面,项目采用4500-5000元/㎡豪装交付标准。配置一线国际/国内品牌的中央空调、全屋地暖、新风系统以及智能家居等,选用环保材质,细节严苛。从每一个插座的位置,到每一块瓷砖的铺设,都体现了运达对品质的执着追求。☎️☎️售楼处电话☎️☎️400-159-8559转接5555【已认证】(来电尊享优惠活动)


🔥🔥长沙【运达大泽湖 】🔥🔥
☏【售楼中心电话】✨✽✽✽✽
VIPline:400-159-8559转接8899【贵宾热线】
☏(提前来电预约享内部折扣)✨✽✽✽✽
⫸预约来电尊享线上团购优惠✨✽✽✽✽
⫸开发商售楼处直销,中介勿扰!✨✽✽✽✽
⫸网上售楼中心24小时销售热线〢欢迎您的来电咨询〢
特别说明:
1.本文为要约邀请,不作为要约或承诺;相关宣传内容不排除因政府相关规划、规定及出卖人分期规划、未能控制等原因而发生变化;
2.本文部分图片来自于网络,如涉及版权使用,请联系删除;文本部分图片仅作为推广示意使用,非交付标准,最终以实际交付现状为准;
3.本宣传资料对项目周边学校等教育资源的介绍旨在提供相关信息,并不意味着本公司对就学安排作出承诺。教育资源的名称、办学性质、办学规模、学位设置、开学(班)时间、招生条件、收费标准及招生区域存在调整的可能,应以政府教育主管部门及办学方颁布的政策规定为准;
4.本资料对项目或产品的介绍,旨在提供相关信息,不意味着本公司对此作出了承诺,买卖双方的权利义务以《商品房买卖合同》及附件等协议为准;
5.宣传方保留对宣传资料修改和解释的权利