招商玺新作:整体抬高12米+8米架空层,均价15万/㎡大平层 | 深圳后海招商玺
深圳【后海招商玺】售楼处电话:400-159-8559转接6666(官网已认证)
深圳【后海招商玺】开发商电话:400-159-8559转接6666【售楼中心】
温馨提示售楼中心〢预约尊享1V1品鉴礼遇〢匠心钜制-恭迎品鉴〢
温馨提示本项目暂不接受临时到访,过来参观样板房请记得提前来电预约!
愿在外奋斗的我们,好运常伴,天天开心,顺心顺意,健康快乐,平平安安,越来越好,都能拥有属于自己的家
后海招商玺,是招商蛇口继“5000万蹲”的深圳双玺和“交付天花板”太子湾招商玺之后,“玺系”产品的全新力作,被视作玺系3.0的范本。
后海招商玺开盘,首推40套全部售罄。这批房源以建面约197-237㎡的4房为主,备案均价14.96万元/㎡,总价2485-3750万元/套,最贵的两套432㎡大平层总价高达6842-6867万元。
Part 01
项目规划
项目占地约1.5万㎡,总建面约15万㎡,由4栋住宅及1所幼儿园组成。商品房总计仅261户,户均面积约218㎡,主打约188-247㎡纯粹大平层社区。
计容建面98754㎡ ,其中:住宅88449㎡,商业、办公及旅馆业建筑2100㎡,公共配套面积8205㎡。

Part 02
建筑设计
世界级“抬板规划”,在小地块上“垂直造城”
特邀曾执掌上海中心、平安金融中心等超高层地标的世界前三结构顾问Thornton Tomasetti,将其深耕多年的超高层尖端结构经验,系统性赋能于后海招商玺,以顶尖标准雕琢日常居住质感。
打造“地下层-超级底盘-抬升甲板层-天空层”四层垂直浮岛体系,通过纵向空间拓展破解横向空间不足的难题。
示意图,仅供参考
社区整体抬高12米,叠加8米挑高的架空层泛会所空间,总高度相当于普通住宅7层,这份匠心打造的“超级底盘”,不仅筑起隔绝尘嚣的静谧生活结界,更有全社区风雨连廊串起每一栋楼,雨天里不用慌着找伞、业主信步闲庭就能逛遍社区,从容体面藏在每一步日常里。
更令人震撼的是,通过结构转换技术,实现地面层无柱跨度最大达28米,打造奢华酒店落客区,可满足两辆车并行,以超级尺度彻底解决小地块的空间桎梏。
对居住体验而言,抬板规划带来的是“上下两重世界”的极致体验:
甲板之下,是链接城市的活力枢纽:规划约1300㎡共享活力带与2100㎡主题商业街,融合运动、休闲、商业等多元场景;
甲板之上,是悬浮空中的宁静绿洲:约3000㎡浮岛花园与约2500㎡主题会所融为一体,形成远离尘嚣的空中社交场。
这种“上静下繁华”的规划,让小地块实现了“大社区”的生活质感,更解决了深圳豪宅普遍存在的会所及泛会所空间不足的问题,带来真正国际化豪宅体验。

建筑风格:以“海风百褶”为设计理念,双反弧形的立面元素在各处形成丰富变化的海浪状立面肌理,呼应滨海风情。

塔冠取意“灯塔”,矗立为湾区封面,不仅奠定了建筑的物理高度,更成为了城市开拓精神的艺术隐喻。它象征着希望和指引,为居住在这里的人们带来心灵上的慰藉和鼓舞。
在建筑材料的选择上,项目采用了全线进口五金及进口系统推拉门,升级了安全、静音与节能性能。夹胶中空超白LoW - E玻璃幕墙大面积铺展,实现了至频段隔音降噪,为业主营造了一个安静舒适的居住环境。
入口到入户全程贯穿“低调奢华”的老钱审美,每一处细节都彰显质感与温度。
顶豪的仪式感,从入口的“千年树阵”便已然开启。项目大门口两侧种植4棵从西班牙进口的油橄榄树,属于世界五大活化石树种,树龄合计超1000岁,单棵价值数百万,仪式感远超常规名贵树种。

穿过树阵,7根通高7.5米“七帆海柱”映入眼帘。甄选珍稀石材以整石雕琢,出材率不足20%,将古希腊雅典卫城的多立克柱式进行现代化演绎,既有古典的庄重,又契合当代审美。
抬头望去,大门吊顶采用铝板打造出“风帆”造型。寓意“扬帆起航”,与深圳海洋城市属性完美呼应;地面及墙面运用“揉石缎幕”设计手法,搭配液态大理石打造的水景,实现“无风起浪”的视觉效果。

被赋予艺术藏品属性的“中央车站”式地下车库,它将顶豪的奢华从实用维度拉升至艺术收藏层面。

全线环氧磨石地面以十倍成本的选材与工艺,成为空间的艺术基底;而核心落客区的“星钻穹顶”,更是一件可触摸、可体验的地下艺术藏品——以世界名钻为灵感的58切面结构,是对珠宝美学的建筑转译。


承迹景观在后海招商玺的景观设计中,创新采用“浮岛甲板”立体空间规划,借鉴香港、新加坡的垂直复合开发智慧,构建起“超级底盘 + 悬浮花园”的独特格局,重新定义了豪宅生活的边界与丰盈。

利用裙房屋顶打造拥有“仪式水轴“艺术庭院”“空中浮岛森林”三级景观设计的空中庭院,四栋住宅均漂浮于甲板之上,独享甲板庭院花园,以“海风吹拂下的豪宅底盘”托举城市上空的豪宅群落,形成立体景观系统。
在小地块上,后海招商玺依然实现近3000㎡园林面积,打造“小而精”的沉浸式体验,构建“垂直绿岛”的立体共生体系,让“层层有景观、步步有景致”。

浮岛甲板层以“都市之中,自然之下”为核心意境,通过1.95米覆土构筑立体化绿植基底,精选树龄超50年的非洲象腿树,搭配东南亚越南进口多头苏铁,绿化环带的乔木直径均超50cm,实现“一景一树”的极致呈现。
后海招商玺的2500㎡三大主题会所,针对200余户业主定制,聚焦高频场景,分为运动、社交、文体三大功能模块,每个模块都精准匹配业主的真实需求。
运动主题空间配备顶级健身器械、室内恒温泳池采用24小时循环过滤,可满足业主日常健身与放松需求;

Part 03
户型设计
项目以2梯2户专梯入户的纯板楼,打造楼高仅90m的21层稀缺小高层,叠加尊贵私密的私享电梯厅优势,项目户型高拓使用率高达93-95%,在拔高空间尺度的同时,更注重居住体验感和实用性。
项目还采用框架结构设计,重构承重关系,不仅带来“全景舱”无界景观视野,让空间也更灵活多变,全屋更少承重墙,满足全生命周期的使用需求,打造一步到位的“第一居所”。
建面约197㎡户型
4房2厅3卫的正四房设计,全屋通透明厨明卫,豪气阔绰的客餐厅超大通厅,带来云端墅居的空间感。
该户型还高配约8m长的极目宽景阳台,空间面积达到约22㎡,相同面积下比其它几大顶豪的阳台尺度还要奢阔,将无界瑰丽景观定格为家的唯美色彩。
全屋卧室配备新规800mm宽尺飘窗,次卧套打造3.2mx4.5m的22㎡奢阔空间,为每一个家庭成员带来专属的尊贵生活尺度。
主卧套房采用豪华套房+步入式衣帽间的设计,开间约4.6m,进深达4.5m,搭配270°环幕飘窗,带来面积达38㎡的星级奢华空间。
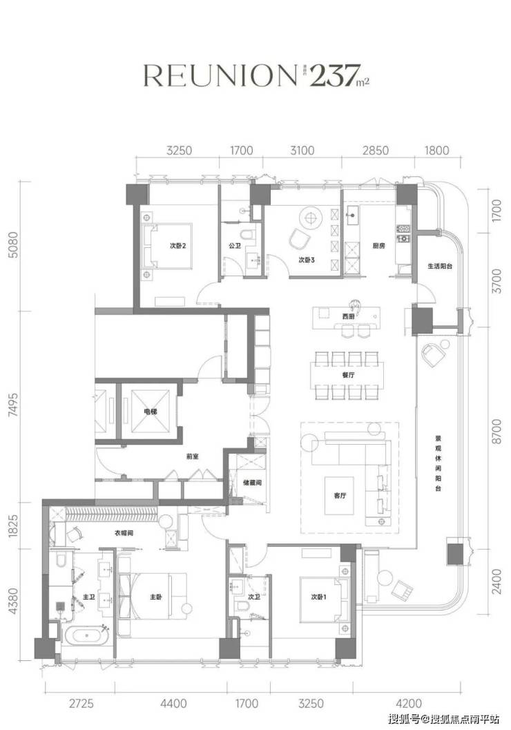
建面约237m²户型
最大的亮点是其面积高达60m²、接近标准羽毛球场大小的LDKB全景家庭厅,以及一个长约18.9米、面积约31m²的L型270°拐角瞰景阳台。


这个阳台,还创新性地增加了一个约10m²、最宽进深2.4米的"X"百变空间。同样的框架结构设计,它将承重体系置于梁板柱,意味着室内空间可根据家庭全生命周期需求进行个性化定制。
主卧尺度也很奢侈,开间约7.05米,进深约6.3米,面积高达44m²,堪比市场二手400平米大面积段产品,并配备超长步入式衣帽间。次卧套间开间亦达约5米,确保了每一位家庭成员的尊崇体验。
深圳【后海招商玺】售楼处电话:400-159-8559转接6666(官网已认证)
深圳【后海招商玺】开发商电话:400-159-8559转接6666【售楼中心】
温馨提示售楼中心〢预约尊享1V1品鉴礼遇〢匠心钜制-恭迎品鉴〢
温馨提示本项目暂不接受临时到访,过来参观样板房请记得提前来电预约!
免责声明:本宣传资料所有文字、数据、图片及所标尺寸等仅为本项目建设区域设计效果的表达和示意,为要约邀请,不构成要约内容,相关内容不排除因政府相关规划、规定及其他原因而发生变化,一切有关房屋的具体信息以书面合同及政府最终审批文件为准。
免责声明:本文章文字、数据和图片皆来源网络,如有侵权请告知立马删除,数据图片仅供参考,不作为邀约或承诺。