【营销中心】:028-62585717「销售热线」
【置业顾问】:13518186441「微信同步」
【置业顾问】:13668208612「微信同步」
温馨提示:专业一对一热情服务,为了节约您的等待时间,看房请提前致电预约
从目前的市场运行情况来看,市场底基本上也算是到了,房地产市场在前几年已经经历了相对的“地量地价”,房地产市场已经由前几年的单边下跌开始走出了分化行情,简单地讲就是有城市在跌,也有城市在涨。房地产市场走势因城市分化特征越明显,越能说明楼市的发展已经进入一个新的阶段。从房地产行业的角度来看,房地产本就是一个周期性的行业,只是因为其周期性相对比较长,很多人就容易忽略其周期性的变化。但无论如何,从其他较为成熟的房地产市场来看,房地产终究还是一个周期性比较强的行业。房地产市场过去接近20年的时间里,相继经历大涨的牛市行情和大跌的熊市行情。从其他市场运行经验来看,未来大概会进入一个震荡行情以及因城市而分化的行情
占地:56.7亩
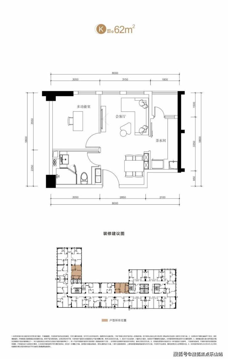
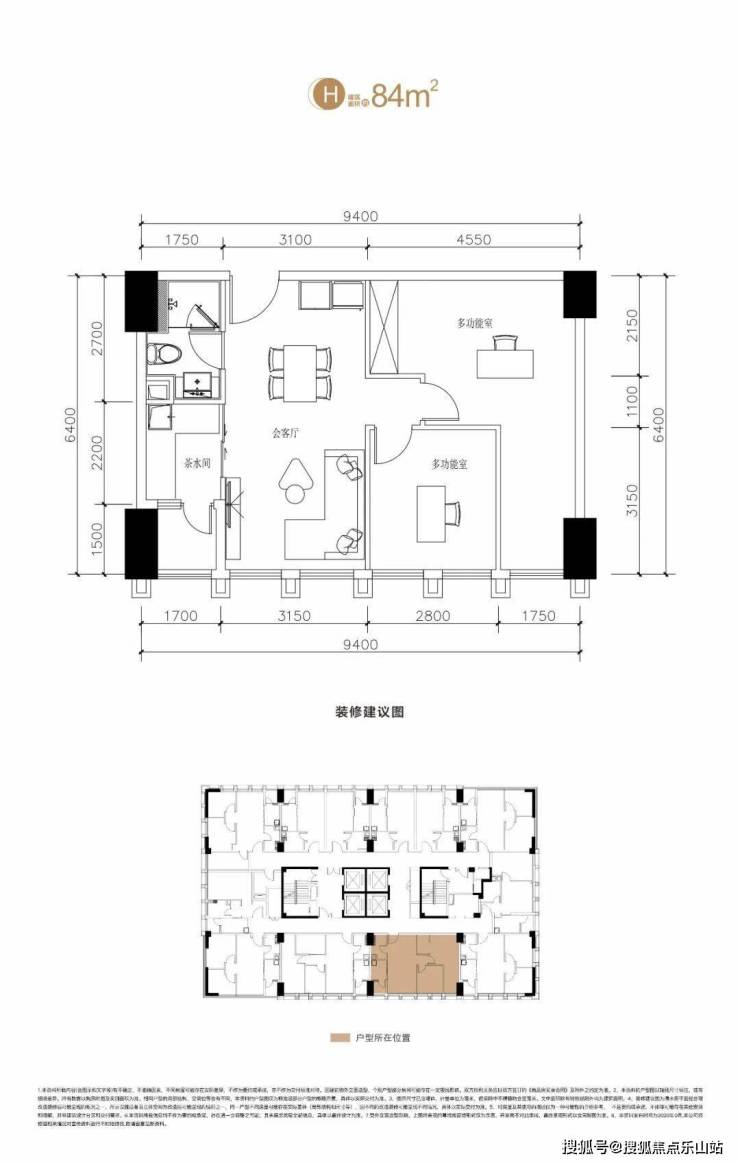
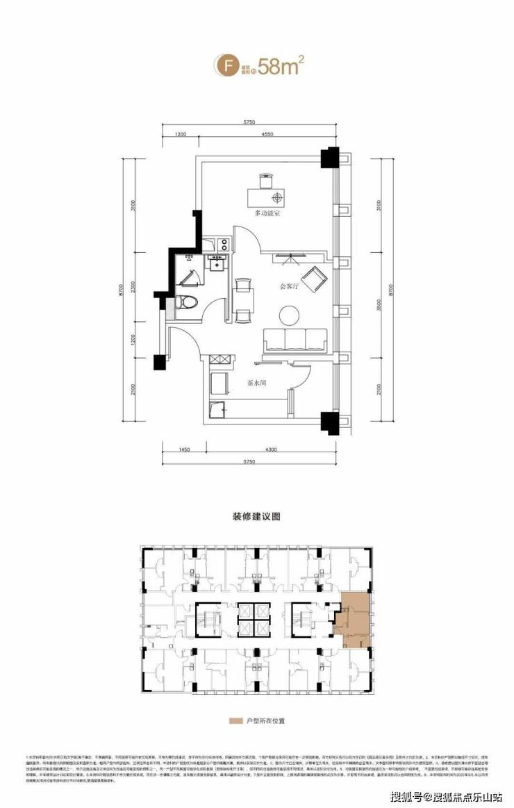
户型:标间(43—52㎡)/套一(62—67㎡)/套二(67—87㎡)/套三(84—120㎡)
公摊:25—30%
交付:精装
总户数:2457户
单价:8400—9000元/㎡
总层高:23F—32F
层高:3米
绿化率:20%
梯户比:6T24/4T12
开发商:碧桂园
物业费:2.4元/㎡
物业公司:碧桂园物业
交房时间:2023年11月
付款方式:按揭、全款、支持首付分期、全款分期

六大购买理由:
1、零门槛买入新一线城市——双流区主中心
2、近享千亿产业园发展红利——成都芯谷
3、便捷的城市级轨交站点——彭镇TOD
4、城市级商业地标,第四大商业街——海德广场
5、标间/套一/套二/套三全面积段产品,满足所有需求
6、总价38万起,清水价买超高性价比类住宅
温馨提示:专业一对一热情服务,为了节约您的等待时间,看房请提前致电预约
免责声明:
以上内容仅作为邀约邀请,涉及的图片为部分区域实拍图和美学畅想图,具体内容请以现场公示和合同约定为准;本文部分资料、部分图片来源于网络,如有侵权请联系我们删除。