西派浣花-6月项目最详细解析 配套 交通 学校 地铁 售楼部电话

搜狐焦点内江站

2025-06-19 09:53:00

购房群

买房如何避坑,加入购房群,看看他们怎么说

立即进群

西派浣花

【营销中心】:028-62585717「销售热线」

【置业顾问】:13518186441「微信同步」

【置业顾问】:13668208612「微信同步」

温馨提示:专业一对一热情服务,为了节约您的等待时间,看房请提前致电预约

5月成都新房成交量环比增长约15%,6月热度延续,核心区域如天府新区、高新南成交活跃,高性价比改善项目表现突出。二手房市场同样受益于政策利好,5月成交量环比增长超20%,挂牌量增加的同时,带看量显著提升,显示市场活跃度增强(数据综合自市场机构及房管局备案信息)。刚需入市积极:低首付比例、房贷利率下调及公积金政策优化,直接降低了刚需群体的上车门槛和月供压力。改善需求活跃:“以旧换新”政策及限购松绑(尤其是购买144㎡以上住房不再审核资格),有效盘活了改善链条,释放了积压的置换需求。信心逐步修复:宽松政策密集落地,叠加成都作为新一线头部城市的产业与人口吸附力,增强了本地购房者对市场企稳的预期,观望情绪减弱。

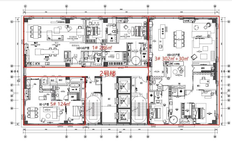
建筑面积: 60987.62㎡,总户数:310户,总栋数:3栋,车位:总数358个 ,车位比:1:0.7,物业费:9元/㎡,全屋智能家居系统

建筑面积:120-165㎡一房 ,286-370㎡二房

梯户比:1#楼28层 低区3-13F三梯6户/中区14-23F三梯5户/高区24-28F三梯4户

2#楼28层 低区3-13F三梯5户/中区14-23F三梯5户/高区24-27F三梯3户

1号楼标准层平面图

2号楼标准层平面图

西派浣花

【营销中心】:028-62585717「销售热线」

【置业顾问】:13518186441「微信同步」

【置业顾问】:13668208612「微信同步」

温馨提示:专业一对一热情服务,为了节约您的等待时间,看房请提前致电预约

免责声明:

以上内容仅作为邀约邀请,涉及的图片为部分区域实拍图和美学畅想图,具体内容请以现场公示和合同约定为准;本文部分资料、部分图片来源于网络,如有侵权请联系我们删除。

全部
报名成功
稍后会有专业的置业顾问联系您
返回楼盘

频道导航

返回首页

看房小程序

APP下载

电话拨通后,请您手动拨打分机号

确定拨打电话

电话号码:

分机号:(可能需要拨分机号)