新希望•天屹销售中心地址-户型图-9月最新价格-周边配套如何

搜狐焦点内江站

2025-09-05 18:15:00

购房群

买房如何避坑,加入购房群,看看他们怎么说

立即进群

新希望•天屹

【营销中心】:028-62585717「销售热线」

【置业顾问】:13518186441「微信同步」

【置业顾问】:13668208612「微信同步」

从4月开始,新房销售面积和销售额就呈现持续下降的趋势,市场需求仍显疲软。不过,7月末商品房待售面积减少,库存压力或稍有缓解。去年各种政策带来的积极影响,正在逐渐减弱,加上大环境的变化,消费者明显信心不足。地产行业仍需政策端持续发力,进一步激活市场。大家选择到大城市买房,并非仅仅因为房屋本身,更因为这些城市拥有房子之外的优质资源,如教育、医疗、就业、养老等。而这些城市的地产项目定位更高端、配套完善,能够支撑价格,所以,集中在一、二线城市布局的房企,出现单价同比上涨的情况

【项目基础信息】

开发商:千亿国企经开发展&先锋民企新希望地产

总占地:44亩

容积率:2.0

物业形态:10栋纯洋房

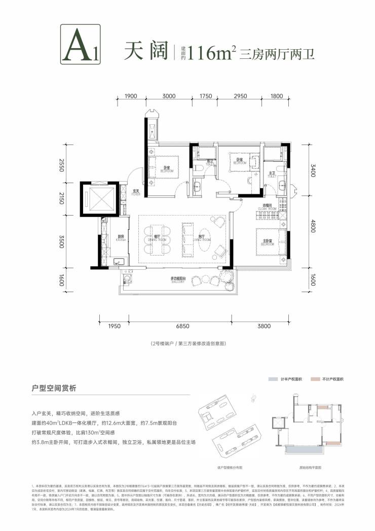
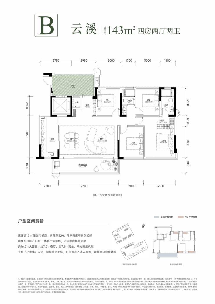
产品面积:建面约116㎡/143㎡

总层高:10-16F洋房

梯户比:1T2/2T2

绿化率:约35%(不含东干水渠)

交付标准:精装交付

项目地址:龙泉驿区东安街道跨湖路

【商业】龙湖东安天街,新城吾悦广场,万达广场,尽享湖芯醇熟生活圈

【交通】依靠蜀都大道/驿都大道/桃都大道等四横三纵道路网,通达全城;距地铁2号,远期规划有11、22、25号线

【教育】比邻向阳桥幼儿园/小学/中学、经开区实验中学(教科院领办)、成都市实验小学(和雅校区)、成都市实验小学(和雅校区、乐雅校区)等全龄优质教育资源,板块内更有四川师范大学成龙校区、四川财经职业学院等高等学府

【医疗】汇集有四川大学华西医院龙泉医院、成都中医药大学附属医院龙泉医院、龙泉驿妇幼保健院、四川省第三人民医院等三甲医院

【公园】近邻东安湖公园、驿马河公园、龙泉山城市森林公园,构建优质生活圈

【营销中心】:028-62585717「销售热线」

【置业顾问】:1351886441「微信同步」

【置业顾问】:13668208612「微信同步」

温馨提示:专业一对一热情服务,为了节约您的等待时间,看房请提前致电预约!!!

免责声明:

以上内容仅作为邀约邀请,涉及的图片为部分区域实拍图和美学畅想图,具体内容请以现场公示和合同约定为准;本文部分资料、部分图片来源于网络,如有侵权请联系我们删除。

全部
报名成功
稍后会有专业的置业顾问联系您
返回楼盘

频道导航

返回首页

看房小程序

APP下载

电话拨通后,请您手动拨打分机号

确定拨打电话

电话号码:

分机号:(可能需要拨分机号)