【营销中心】:028-62585717「销售热线」
【置业顾问】:13518186441「微信同步」
【置业顾问】:13668208612「微信同步」
温馨提示:专业一对一热情服务,为了节约您的等待时间,看房请提前致电预约
2025年的货币政策基调是适度宽松,而就在刚不久,央行已经“降准降息”,这一方面能够为市场注入更多的流动性,利好作为资金密集型的房地产行业;另一方面也能进一步降低购房者的综合购房成本,会刺激到一部分需求释放。今年是要实施更加积极的财政政策,赤字率拟提升至4%,大大增加了财政政策的空间,对于扩大内需和提振消费,支持经济发展会起到重要的作用。整体的经济走好也有利于稳住市场的预期、改善市场的信心,对房地产市场止跌回稳会起到支持作用。
占地:56.7亩
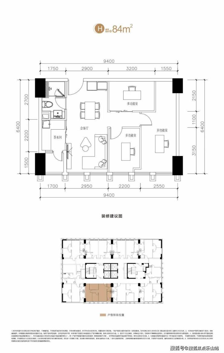
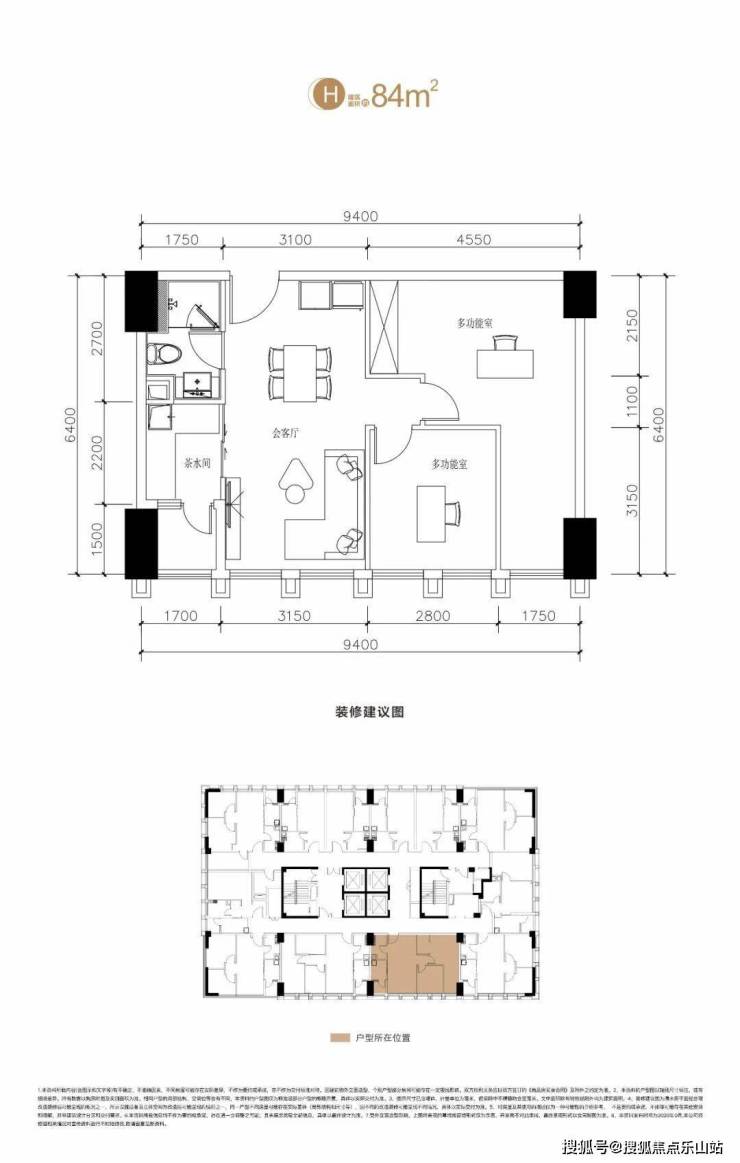
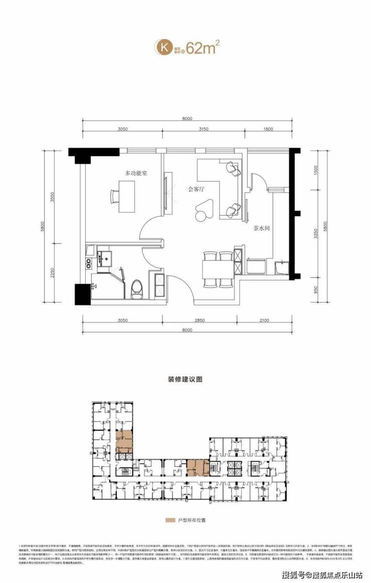
户型:标间(43—52㎡)/套一(62—67㎡)/套二(67—87㎡)/套三(84—120㎡)
公摊:25—30%
交付:精装
总户数:2457户
单价:8400—9000元/㎡
总层高:23F—32F
层高:3米
绿化率:20%
梯户比:6T24/4T12
开发商:碧桂园
物业费:2.4元/㎡
物业公司:碧桂园物业
交房时间:2023年11月
付款方式:按揭、全款、支持首付分期、全款分期

六大购买理由:
1、零门槛买入新一线城市——双流区主中心
2、近享千亿产业园发展红利——成都芯谷
3、便捷的城市级轨交站点——彭镇TOD
4、城市级商业地标,第四大商业街——海德广场
5、标间/套一/套二/套三全面积段产品,满足所有需求
6、总价38万起,清水价买超高性价比类住宅
温馨提示:专业一对一热情服务,为了节约您的等待时间,看房请提前致电预约
免责声明:
以上内容仅作为邀约邀请,涉及的图片为部分区域实拍图和美学畅想图,具体内容请以现场公示和合同约定为准;本文部分资料、部分图片来源于网络,如有侵权请联系我们删除