【营销中心】:028-62585717「销售热线」
【置业顾问】:13518186441「微信同步」
【置业顾问】:13668208612「微信同步」
温馨提示:专业一对一热情服务,为了节约您的等待时间,看房请提前致电预约
上海易居房地产研究院副院长严跃进表示,作为中西部的经济中心,成都这几年城市的发展、城市能级,以及各个重点企业的入驻,产业发展能力等都在提高。而其宏大城市规划和规模,也带动了商品房的建设。加上这几年成都人才导入、人口增量规模非常大,房价仍然相对便宜,从而导致房企踊跃进驻,对楼市形成正向影响。成都今年楼面地价接连突破3万+、4万+,本质是城市价值重估,核心区土地稀缺性加剧所致。另一方面,近一年来产品内卷,高端项目快速去化,开盘即清比比皆是,2024年成都总价千万+豪宅项目成交近两千套,验证成都高端产品市场承载力极强,开发商对于核心土地亦信心十足。在今年3月出现土拍连破纪录之前,成都楼市的惊人成交量已渐渐为全国公众所知。
占地:56.7亩
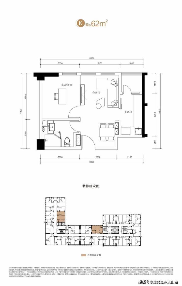
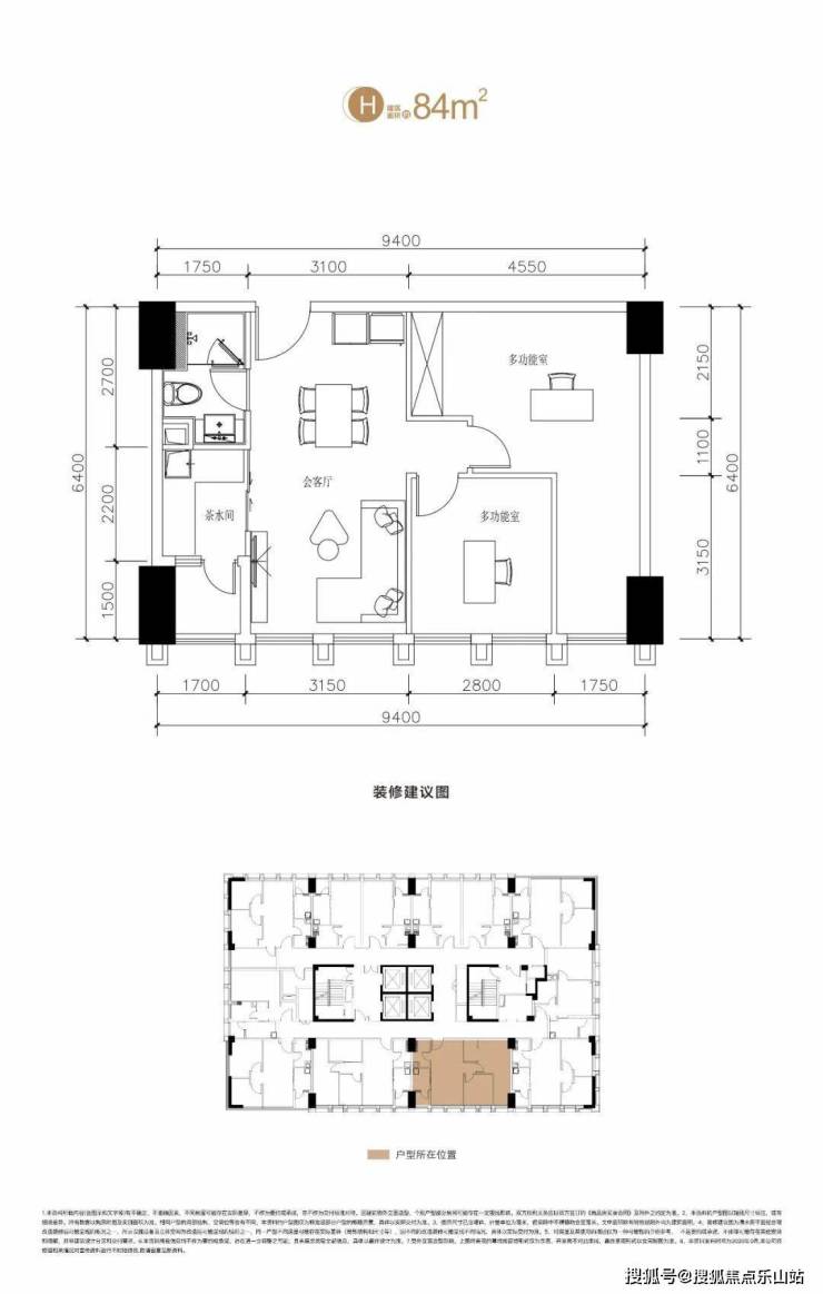
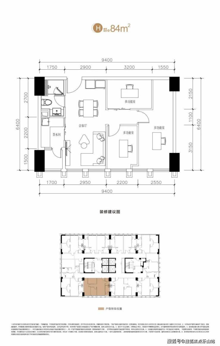
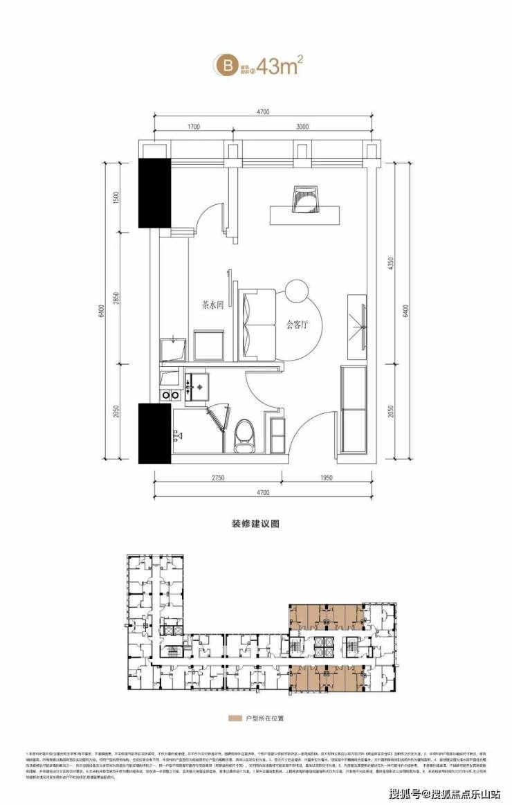
户型:标间(43—52㎡)/套一(62—67㎡)/套二(67—87㎡)/套三(84—120㎡)
公摊:25—30%
交付:精装
总户数:2457户
单价:8400—9000元/㎡
总层高:23F—32F
层高:3米
绿化率:20%
梯户比:6T24/4T12
开发商:碧桂园
物业费:2.4元/㎡
物业公司:碧桂园物业
交房时间:2023年11月
付款方式:按揭、全款、支持首付分期、全款分期

六大购买理由:
1、零门槛买入新一线城市——双流区主中心
2、近享千亿产业园发展红利——成都芯谷
3、便捷的城市级轨交站点——彭镇TOD
4、城市级商业地标,第四大商业街——海德广场
5、标间/套一/套二/套三全面积段产品,满足所有需求
6、总价38万起,清水价买超高性价比类住宅
温馨提示:专业一对一热情服务,为了节约您的等待时间,看房请提前致电预约
免责声明:
以上内容仅作为邀约邀请,涉及的图片为部分区域实拍图和美学畅想图,具体内容请以现场公示和合同约定为准;本文部分资料、部分图片来源于网络,如有侵权请联系我们删除。