西派浣花楼盘地址-咨询电话-样板间-户型图-11月总价多少-

搜狐焦点内江站

2025-11-19 09:05:24

购房群

买房如何避坑,加入购房群,看看他们怎么说

立即进群

西派浣花

【营销中心】:028-62585717「销售热线」

【置业顾问】:13518186441「微信同步」

【置业顾问】:13668208612「微信同步」

温馨提示:专业一对一热情服务,为了节约您的等待时间,看房请提前致电预约

楼市大拆大建的时代已经过去,控地去库存依然是基调,通过城市更新改造老破小,也能变成“好房子”,当人口增长放缓与市场供应达到临界点,核心区域新房价格持续走高,供需关系发生变化,卖方的恐慌心理也会随之减少,不排除价格回升的可能性!核心城市核心地段的新规好房子拥有10%净利率,但头部房企过去2021年前累计的老库存短期可能消化不了。比如截止2024年底保利土储总货值还有1.9万亿,万科还有1万亿。未来房企即使是头部房企,至少也需1~2年时间消化此前获取的高成本存量土地。

建筑面积: 60987.62㎡,总户数:310户,总栋数:3栋,车位:总数358个 ,车位比:1:0.7,物业费:9元/㎡,全屋智能家居系统

建筑面积:120-165㎡一房 ,286-370㎡二房

梯户比:1#楼28层 低区3-13F三梯6户/中区14-23F三梯5户/高区24-28F三梯4户

2#楼28层 低区3-13F三梯5户/中区14-23F三梯5户/高区24-27F三梯3户

1号楼标准层平面图

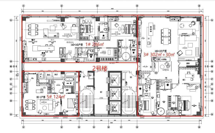
2号楼标准层平面图

西派浣花

【营销中心】:028-62585717「销售热线」

【置业顾问】:13518186441「微信同步」

【置业顾问】:13668208612「微信同步」

温馨提示:专业一对一热情服务,为了节约您的等待时间,看房请提前致电预约

免责声明:

以上内容仅作为邀约邀请,涉及的图片为部分区域实拍图和美学畅想图,具体内容请以现场公示和合同约定为准;本文部分资料、部分图片来源于网络,如有侵权请联系我们删除。

全部
报名成功
稍后会有专业的置业顾问联系您
返回楼盘

频道导航

返回首页

看房小程序

APP下载

电话拨通后,请您手动拨打分机号

确定拨打电话

电话号码:

分机号:(可能需要拨分机号)