广都鑫中心周边有没有学校-交通方便吗-广都鑫中心销售中心地址-

搜狐焦点内江站

2025-06-03 10:10:00

购房群

买房如何避坑,加入购房群,看看他们怎么说

立即进群

广都鑫中心

【营销中心】:028-62585717「销售热线」

【置业顾问】:13518186441「微信同步」

【置业顾问】:13668208612「微信同步」

房地产再迎来利好,4月受到关税战影响,加上楼市成交不及预期,不少地产人又开始焦虑了,很希望能有新一轮政策出来,提振楼市。金融监管总局局长李云泽有提到,加快出台与房地产发展新模式相适配的系列融资制度,助力持续巩固房地产市场稳定态势。预计未来还会有新一轮的利好,所以不需要太过焦虑,不要低估中央救市的决心

🏗【项目参数】

占地面积:28.35亩

建筑面积:241470.5m

目前主售:双发天禧中心2号楼1、2单元

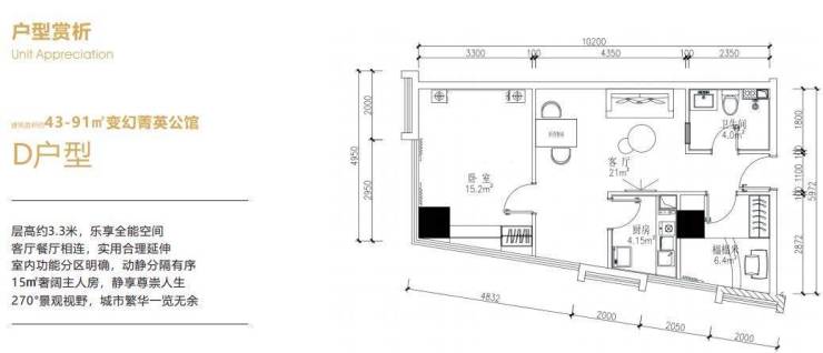
主力户型:57㎡

面积段:43㎡-91㎡(主力面积55-60㎡)

层高:3.25-3.3米

总高:25层(-1-4F商业、-2到-4车位、5-25F公寓)

首开楼层:13F、22F

三通:水电气三通(商业)

公摊:30%左右

梯户比:一单元6T33户 、二单位6T37户

物管费:4.9元

交付时间:合同2025年12月31日前

提前到2025年9月交房

交付标准:清水

均价:6600-7500

总价:30-68万

付款方式:一次性(整层可谈分期)

整层面积:约4100㎡ 报价3000万(15-20F)

一单元:约1930㎡ 报价1400万

二单元:约2170㎡ 报价1600万

✅开发商:成都双发君地置业有限公司

✅物业公司:四川博蕙京通物业管理有限公司

💯【核┃心┃卖┃点】

天府大道中轴线上 唯一在售总价低 小面积水电气三通产品 周边楼盘无竞品

双地铁(1号线/18号线)便捷出行

可交于 锦江国际(世界第二,亚洲第一酒店集团)旗下"欧暇地中海"酒店运营,清水交房后8个月为装修期(没有收益),装修好后6个月期间作为酒店培育期,没有保底收益,享受酒店运营分红收益(收益五五分成),从第7月开始,正式享受保底(保底30元/平)加酒店运营五五分红, 平均收益:3800-4000/月!

地处于金融城,新川科技园,天府新区中央商务区三大板块交汇的黄金金三角区域,桥头堡价值洼地,大大吸附周边区域人流。

每层自带600-700㎡高线公园。 每层只有十户享受额外赠送7-9㎡阳台空间。

‼‼核心价值:

1.地段城市中轴天府大道高新区与天府新区交界处,天府新区门户位置,不可复制。

2.稀缺性:天 府大道中轴线上稀缺小面积,低总价,水电气三通物业,低门槛,低风险,高回报。

3.交通:双 地铁物业(地铁1号线、18号线)。

4.市政配套:天府新区政务中心旁,红利 享受,极地海洋世界旅游打卡点。

5.建筑风格:新现代建筑风格更能体现项目在天府大道上的标志性。

6.人流保障 金融城,新川科技园,天府新区中央商务区金三角区域,大大吸附区域人流,为出租带来有利保障。

7.居住:超2万平米绿化,水景观,城市 广场,商业产权住宅配套,星级物业提高居住舒适度,负1层自带生活超市。

8.入驻商家:高端酒店希尔顿惠顿商旅酒店已正式签约。

9.租金高、需 求大(项目周边同户型公寓2500,写字楼租金70-120元/平米)。

10.入手即赚(项目斜 对面最新土拍:20700元/平米)。

【区域位置】

位于成都市天府新区天府大道1888号,是智能化绿色长廊的菁英空间,含有高端酒店、文化会所及中高端商业配套的综合体物业。

【交通配套】:

双地铁上盖:1号线华阳站(300米)18号线海昌路站(400米)

503 504 T205等二十条公交线路

五纵四横立体网络

五纵:剑南大道、益州大道、天府大道、梓州大道(科华路南延线)、成自泸高速;

四横:三环路、绕城高速、华阳大道、麓山大道。

【商业配套】:项目1-4楼自带30000方的上海协星星光商业体,-1楼大型超市盒马生鲜,-2至-4楼自带1661个停车位 。

项目斜对面是家乐福购物中心

项目南面300米是正在修建的三利广场,是集商务办公、综合购物、高端酒店、商业体验为一体的综合性购物广场,

项目对面还有金地三期约70万方的大型商业综合体,周边还有沃尔玛山姆会员店、红星美凯龙、富森美等综合性商业,实现人居蓝本的同时,项目在后期还会迎来配套的再一次升级。

【医疗配套】:拥有天府新区人民医院、四川石油总医院、玛利亚天府妇产儿童医院、天府新区安琪儿国际妇女儿童医院、四川省中西医结合医院、四川宝石花医院等。

【生态娱乐】:项目旁边是海昌极地海洋公园、南湖梦幻岛,南湖湿地公园等。

【优质教育】:金苹果幼儿园 天府四小 天府五小 天府实验小学 天府实验中学 天府实验外国语学校等。

✅【多变户型】

【营销中心】:028-62585717「销售热线」

【置业顾问】:13518186441「微信同步」

【置业顾问】:13668208612「微信同步」

温馨提示:专业一对一热情服务,为了节约您的等待时间,看房请提前致电预约

免责声明:

以上内容仅作为邀约邀请,涉及的图片为部分区域实拍图和美学畅想图,具体内容请以现场公示和合同约定为准;本文部分资料、部分图片来源于网络,如有侵权请联系我们删除

全部
报名成功
稍后会有专业的置业顾问联系您
返回楼盘

频道导航

返回首页

看房小程序

APP下载

电话拨通后,请您手动拨打分机号

确定拨打电话

电话号码:

分机号:(可能需要拨分机号)