点将台79号 区域交通-项目基础资料-户型-配套服务-低密舒居

搜狐焦点内江站

2026-03-09 10:53:00

购房群

买房如何避坑,加入购房群,看看他们怎么说

立即进群

点将台79号

【营销中心】:028-62585717「销售热线」

【置业顾问】:13518186441「微信同步」

【置业顾问】:13668208612「微信同步」

温馨提示:专业一对一热情服务,为了节约您的等待时间,看房请提前致电预约

成都的政策更是接地气、有实效。自2022年调控以来,成都楼市已连续调整4年。市场好转的,还有持续落地的稳楼市政策,高层明确房地产是国民经济基础产业,“稳楼市”成为核心导向,过去严苛的“三道红线”转向差异化监管,房企融资环境逐步宽松,保交房、化债工作稳步推进,行业风险持续降低。各地因城施策,公积金放宽、存量房盘活、购房补贴等利好不断,让市场环境越来越宽松。

产品力爆棚:

【地暖中央空调新风、全屋智能、烘干一体洗衣机、嵌入式双开门冰箱、洗碗机、3M净水器,国际一线厨具橱柜、24小时1v1星级管家服务、24小时安防服务】在望江名门、D10之后全新升级区域地标级顶豪作品。

自带2000平会所实体均已呈现:恒温泳池、干蒸区、星级酒店同款健身房、咖啡吧、红酒吧、书吧、茶室、娱乐室等】

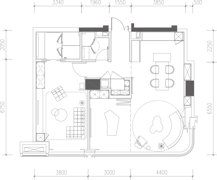
🔺面积区间:128-140㎡(2房),260-270-280㎡(3.5房),540-1100㎡ 高端定制型户型

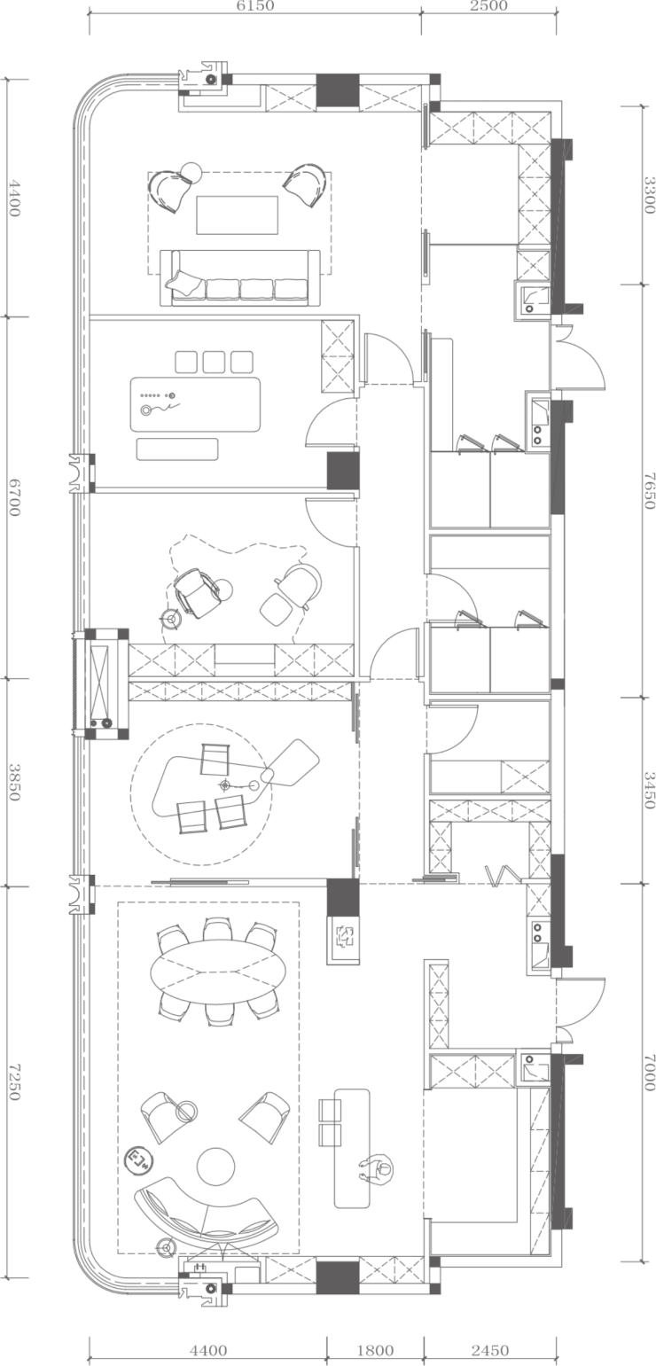
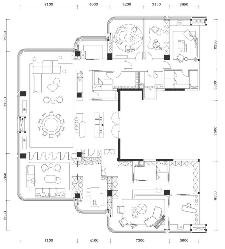
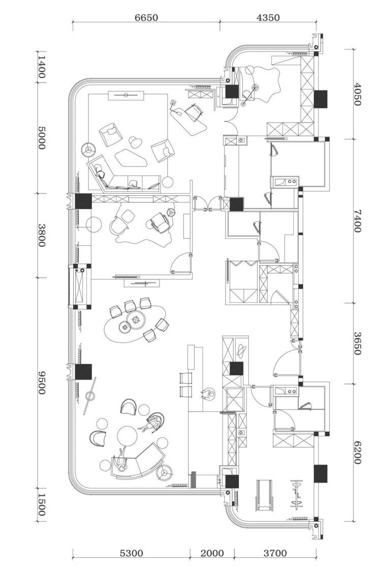
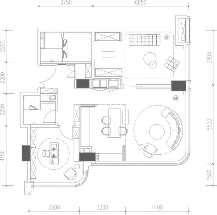
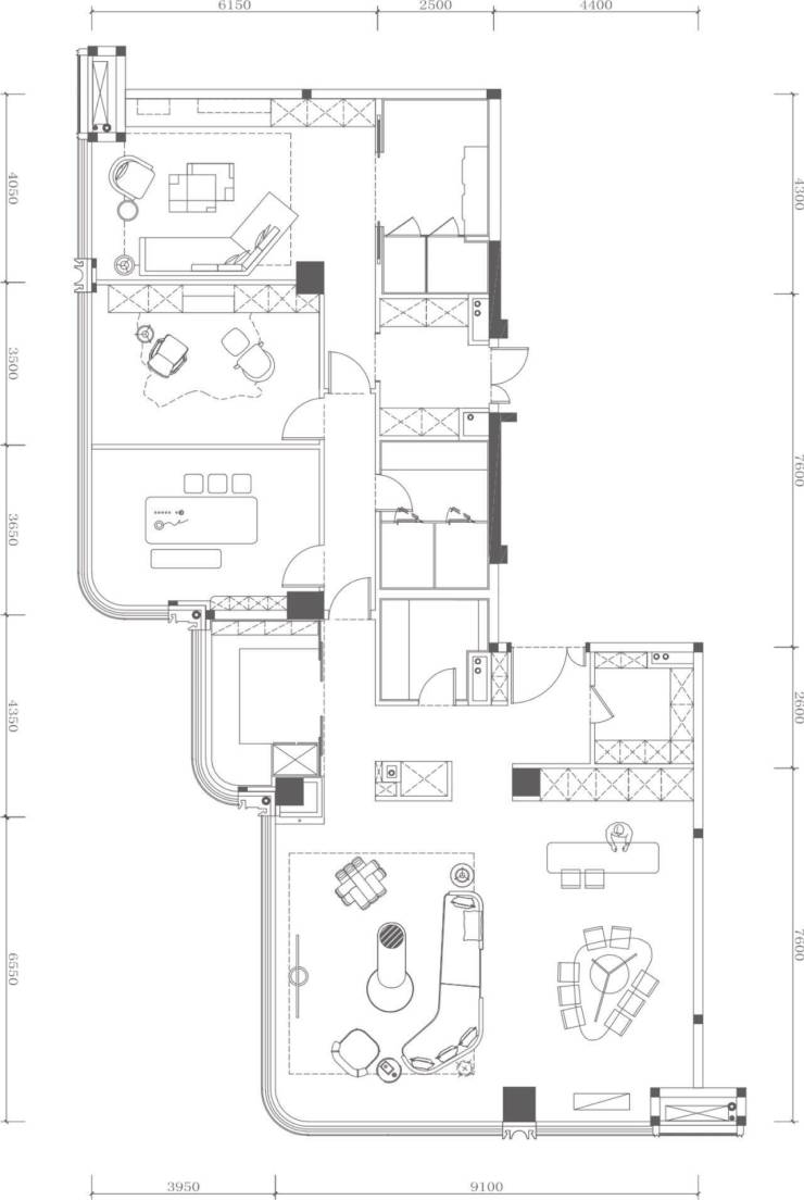
户型图:

128平(3~15楼)5梯8户、正南正北朝向

140平(3~15楼)5梯8户

260平(16楼~22楼)5梯4户

270平(16楼~22楼)5梯4户

280平(16楼~22楼)5梯4户

540平(23~24楼)5梯2户

点将台79号

【营销中心】:028-62585717「销售热线」

【置业顾问】:13518186441「微信同步」

【置业顾问】:13668208612「微信同步」

温馨提示:专业一对一热情服务,为了节约您的等待时间,看房请提前致电预约

免责声明:

以上内容仅作为邀约邀请,涉及的图片为部分区域实拍图和美学畅想图,具体内容请以现场公示和合同约定为准;本文部分资料、部分图片来源于网络,如有侵权请联系我们删除

全部
报名成功
稍后会有专业的置业顾问联系您
返回楼盘

频道导航

返回首页

看房小程序

APP下载

电话拨通后,请您手动拨打分机号

确定拨打电话

电话号码:

分机号:(可能需要拨分机号)