西派浣花 售楼部电话-交房-优惠-3月最新价格-项目基本信息

搜狐焦点内江站

2026-03-15 17:30:00

购房群

买房如何避坑,加入购房群,看看他们怎么说

立即进群

西派浣花

【营销中心】:028-62585717「销售热线」

【置业顾问】:13518186441「微信同步」

【置业顾问】:13668208612「微信同步」

温馨提示:专业一对一热情服务,为了节约您的等待时间,看房请提前致电预约

从市场格局来看,分化是未来的主流,但分化不等于冷清。核心城市、核心城区、优质楼盘,会持续保持流通性和保值性,远郊非核心板块则以平稳为主,这是成熟楼市的正常状态。就像成都的二手房市场,核心板块的次新房价格坚挺,远郊房源以价换量,整体成交量稳步上涨,市场在分化中实现良性循环。无论市场如何调整,核心地段的优质资产,永远是资金和需求的首选。

建筑面积: 60987.62㎡,总户数:310户,总栋数:3栋,车位:总数358个 ,车位比:1:0.7,物业费:9元/㎡,全屋智能家居系统

建筑面积:120-165㎡一房 ,286-370㎡二房

梯户比:1#楼28层 低区3-13F三梯6户/中区14-23F三梯5户/高区24-28F三梯4户

2#楼28层 低区3-13F三梯5户/中区14-23F三梯5户/高区24-27F三梯3户

1号楼标准层平面图

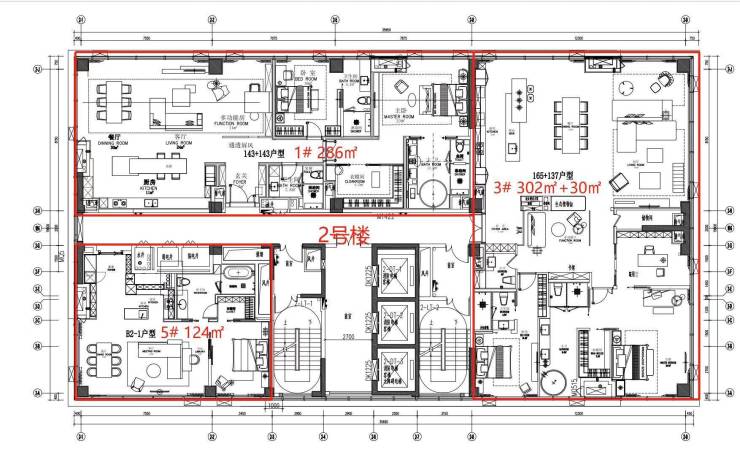
2号楼标准层平面图

西派浣花

【营销中心】:028-62585717「销售热线」

【置业顾问】:13518186441「微信同步」

【置业顾问】:13668208612「微信同步」

温馨提示:专业一对一热情服务,为了节约您的等待时间,看房请提前致电预约

免责声明:

以上内容仅作为邀约邀请,涉及的图片为部分区域实拍图和美学畅想图,具体内容请以现场公示和合同约定为准;本文部分资料、部分图片来源于网络,如有侵权请联系我们删除。

全部
报名成功
稍后会有专业的置业顾问联系您
返回楼盘

频道导航

返回首页

看房小程序

APP下载

电话拨通后,请您手动拨打分机号

确定拨打电话

电话号码:

分机号:(可能需要拨分机号)