远大海湾云锦项目楼盘 最新 最全 最优 在售信息内容详情介绍 售楼处地址 售楼部营销电话热

搜狐焦点内江站

2025-08-27 07:29:00

购房群

买房如何避坑,加入购房群,看看他们怎么说

立即进群

【 远大海湾云锦】

【营销中心】:028-62585717「销售热线」

【置业顾问】:13518186441「微信同步」

【置业顾问】:13668208612「微信同步」

据成都市住建局数据显示,2025年7月全市新建商品住宅成交约8500套,环比增长12%,同比持平。受高温天气影响,部分购房者选择夜间或周末集中看房,城南天府新区、成华区等热门板块售楼处到访量较6月提升20%。开发商积极应对淡季,推出“避暑购房节”活动,如龙湖、万科等项目提供“签约送空调”“高温补贴”等福利;部分改善型楼盘加大精装升级包赠送力度,刺激置换需求释放。业内人士分析,7月成交回暖与年中房企冲刺业绩、信贷政策宽松叠加有关,市场信心小幅回升。

开发商:四川远大生物科技有限公司

占地面积:100785.63平方米

建筑面积:762349.19平方米

容积率:4.98

绿地率:30%

停车位:5919(1:2.16)

车位大小:2.6*5.5

总户数:2736户

楼栋总数:20栋住宅,3栋商业(自持)

物业公司:成都远大创新物业管理有限责任公司物业费:5.5元/平方米/月

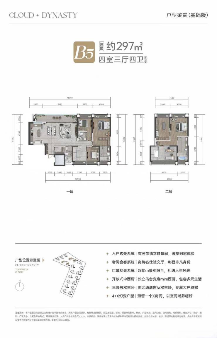
一期户型图

二期户型图

【营销中心】:028-62585717「销售热线」

【置业顾问】:13518186441「微信同步」

【置业顾问】:13668208612「微信同步」

温馨提示:专业一对一热情服务,为了节约您的等待时间,看房请提前致电预约

免责声明:

以上内容仅作为邀约邀请,涉及的图片为部分区域实拍图和美学畅想图,具体内容请以现场公示和合同约定为准;本文部分资料、部分图片来源于网络,如有侵权请联系我们删除

全部
报名成功
稍后会有专业的置业顾问联系您
返回楼盘

频道导航

返回首页

看房小程序

APP下载

电话拨通后,请您手动拨打分机号

确定拨打电话

电话号码:

分机号:(可能需要拨分机号)