【营销中心】:028-62585717「销售热线」
【置业顾问】:13518186441「微信同步」
【置业顾问】:13668208612「微信同步」
从目前的市场运行情况来看,市场底基本上也算是到了,房地产市场在前几年已经经历了相对的“地量地价”,房地产市场已经由前几年的单边下跌开始走出了分化行情,简单地讲就是有城市在跌,也有城市在涨。房地产市场走势因城市分化特征越明显,越能说明楼市的发展已经进入一个新的阶段。从房地产行业的角度来看,房地产本就是一个周期性的行业,只是因为其周期性相对比较长,很多人就容易忽略其周期性的变化。但无论如何,从其他较为成熟的房地产市场来看,房地产终究还是一个周期性比较强的行业。房地产市场过去接近20年的时间里,相继经历大涨的牛市行情和大跌的熊市行情。从其他市场运行经验来看,未来大概会进入一个震荡行情以及因城市而分化的行情
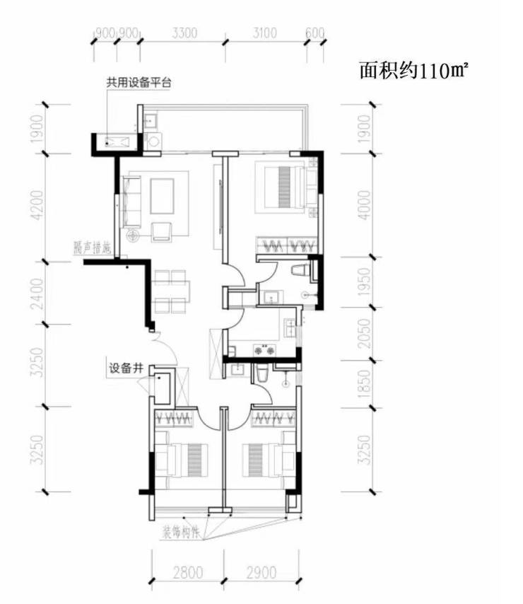
【项目基本信息】
•开发商:成都轨道交通集团
•物业公司:成都轨道万科物业有限公司
•总占地700亩 /二期占地64亩/三期占地74亩
•项目区位:金牛区北部新城-地铁5#幸福桥站
•总层高:二期12-17F(一楼4.5米架空层无住宅)三期9-17F
•容积率:2.0
•绿化率:二期52% 三期35%
•梯户比:二期2T2 三期 1T2户2T3户
•物业费:3.8元
•停车位:二期1:1.6三期1:1.2
•交房时间:二期2024.8月三期2025.10月
•总户数:二期624户三期503户
•交付标准:清水洋房型:
交通:5号线幸福桥站,地铁27号线
商业:汇融广场、龙湖锦宸天街、
大都会、福地广场
教育:机关三幼、第十六幼儿园(蜀道园区)
人民北路小学天北校区、成都实验小学
公园:凤凰山露天音乐公园、凤凰山体育公园
医疗:三甲医院西部战区总医院,
金牛区中医医院(在建)

【营销中心】:028-62585717「销售热线」
【置业顾问】:13518186441「微信同步」
【置业顾问】:13668208612「微信同步」
温馨提示:专业一对一热情服务,为了节约您的等待时间,看房请提前致电预约!!!
免责声明:
以上内容仅作为邀约邀请,涉及的图片为部分区域实拍图和美学畅想图,具体内容请以现场公示和合同约定为准;本文部分资料、部分图片来源于网络,如有侵权请联系我们删除。