西环 290 楼盘电话-户型图-最新优惠单价多少-面积-地段位置

搜狐焦点内江站

2026-01-19 17:21:00

购房群

买房如何避坑,加入购房群,看看他们怎么说

立即进群

西环 290

【营销中心】:028-62585717「销售热线」

【置业顾问】:13518186441「微信同步」

【置业顾问】:13668208612「微信同步」

地产市场供求关系发生重大变化,部分项目、部分城市出现局部供过于求情形,导致房地产销售和价格出现较大幅度回落,尽管今时不同往日,但自住的房子,买在周期底部也是极好的,风险是涨出来的,机会是跌出来的。每一次市场最困难的时候,恰恰都是抄底买房的时机,当然这个不是瞎买,需要眼疾手快。

【面积区间】:建面约130/160/177/290㎡奢装大平层

【装修标准】:国际一线品牌精装

【绿化率】:30%

【车位配比】:1:0.7

【奢装大平层】

西环290以全智能、科技概念打造奢装大平层,以智能门禁系统、全息3D智能管家、智能机器人服务、未来感悬浮台、星空顶、3D智能公区、华为全屋智能等九大智能科技配套,典范科技新时代

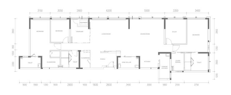
【至臻户型】建面约130/160/177/290㎡奢装大平层

【290户型】:大横厅+12米开间全明采光面,IMAX级环幕瞰景,全景双翼主卧套房

【290户型鉴赏】

【177户型】:大横厅巨幕式纵深空间,全境大开,高得房率,纵享尺度进阶

【177户型鉴赏】

【160户型】:独立玄关,纯粹动静分离,纵深空间布局

【160户型鉴赏】

【130户型】:宝格丽奢华风,阔尺双户型设计,百变大客厅

【130户型鉴赏】

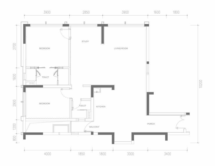
【4-1 60户型】:全装全配,拎包即入住,省心省力,精致奢雅趣致

【60户型鉴赏】

[71户型鉴赏]

【稀缺地脉】:项目位于成都青羊区西三环外侧日月大道和武青北路的交汇处,上风上水的城西坐拥成都最丰富的自然资源,土拍屡创新高,让城西价值,在“西贵”的传统下变得更加凸显

【醇熟配套】

「生态」:百花潭公园、浣花溪公园、杜甫草堂

「交通」:三横+两纵立体路网,地铁4/9/13号线(规划建设中)、有轨电车蓉2号线k5快速公交等多维交通路网

「商业」:以深圳鸿荣源旗下壹方商置运营,自持约5万方西环·壹方里商业街,另享青羊万达广场、鹏瑞利广场、中铁西城新天地三大商圈

「学校」: 成都市同辉(国际)学校、 树德中学(光华校区)、 实验小学西区分校

「医疗」:成都市妇女儿童医院(三甲)、成飞医院(三甲)

「产业」:成飞集团、青羊工业总部基地

【营销中心】:028-62585717「销售热线」

【置业顾问】:13518186441「微信同步」

【置业顾问】:13668208612「微信同步」

温馨提示:专业一对一热情服务,为了节约您的等待时间,看房请提前致电预约

免责声明:

以上内容仅作为邀约邀请,涉及的图片为部分区域实拍图和美学畅想图,具体内容请以现场公示和合同约定为准;本文部分资料、部分图片来源于网络,如有侵权请联系我们删除。

全部
报名成功
稍后会有专业的置业顾问联系您
返回楼盘

频道导航

返回首页

看房小程序

APP下载

电话拨通后,请您手动拨打分机号

确定拨打电话

电话号码:

分机号:(可能需要拨分机号)