西派浣花-开发商营销销售中心联系电话 最新在售信息 优惠详情 最新价格

搜狐焦点内江站

2025-08-06 08:01:00

购房群

买房如何避坑,加入购房群,看看他们怎么说

立即进群

西派浣花

【营销中心】:028-62585717「销售热线」

【置业顾问】:13518186441「微信同步」

【置业顾问】:13668208612「微信同步」

温馨提示:专业一对一热情服务,为了节约您的等待时间,看房请提前致电预约

2025年上半年成都房地产市场展现出显著的“量缩价稳”特征。在经历2024年的市场调整后,尽管7月出现短期回调(客户转化率由6.23%降至4%),但整体仍保持稳健发展态势。从数据来看,市场呈现四大核心特征:成都仍然是投资热点房企竞拍积极性显著提升截至当前,已有152家知名企业集团在成都布局,共设立项目公司4271家。市场集中度较高,前8家房企的市场占有率合计超过7成,反映出头部央企和国企在成都房地产市场占据主导地位。这一数据表明,成都已成为头部央国企重点布局的战略城市。

建筑面积: 60987.62㎡,总户数:310户,总栋数:3栋,车位:总数358个 ,车位比:1:0.7,物业费:9元/㎡,全屋智能家居系统

建筑面积:120-165㎡一房 ,286-370㎡二房

梯户比:1#楼28层 低区3-13F三梯6户/中区14-23F三梯5户/高区24-28F三梯4户

2#楼28层 低区3-13F三梯5户/中区14-23F三梯5户/高区24-27F三梯3户

1号楼标准层平面图

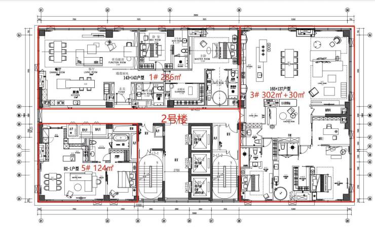
2号楼标准层平面图

西派浣花

【营销中心】:028-62585717「销售热线」

【置业顾问】:13518186441「微信同步」

【置业顾问】:13668208612「微信同步」

温馨提示:专业一对一热情服务,为了节约您的等待时间,看房请提前致电预约

免责声明:

以上内容仅作为邀约邀请,涉及的图片为部分区域实拍图和美学畅想图,具体内容请以现场公示和合同约定为准;本文部分资料、部分图片来源于网络,如有侵权请联系我们删除

全部
报名成功
稍后会有专业的置业顾问联系您
返回楼盘

频道导航

返回首页

看房小程序

APP下载

电话拨通后,请您手动拨打分机号

确定拨打电话

电话号码:

分机号:(可能需要拨分机号)