兴唐·新川雅境 售楼处 销售中心预约专线 户型配套介绍 最新房价 购房政策

搜狐焦点内江站

2025-06-04 10:22:00

购房群

买房如何避坑,加入购房群,看看他们怎么说

立即进群

兴唐·新川雅境

【营销中心】:028-62585717「销售热线」

【置业顾问】:13518186441「微信同步」

【置业顾问】:13668208612「微信同步」

5月20日,四川省统计局《2025年1—4月四川省国民经济主要指标数据》显示,房地产开发投资同比下降6.8%。商品房施工面积同比下降12.6%,新建商品房销售面积下降7.4%。在成都市一季度经济运行的开局成绩里,其他各行各业普遍以“增长”为美,只有房地产开发投资大大方方地下降了3.4%。而这种变化,可能与土地供应的放缓、土地位置的外移有关。一是因为随着城市发展进入成熟期,中心城区可供开发的土地越来越少,二是适应高质量发展,地方政府对开发者的要求也越来越高。因此,土地市场一旦出现“熟地”或前景看好的潜力地块,就会引来众多房企“围猎”。今年3月,成都楼市连续两次刷新历史楼面地价——从招商31700/㎡勇夺大源地块,到建发领军“楼面价4万”时代,成都楼市不仅不凉,反而很热。

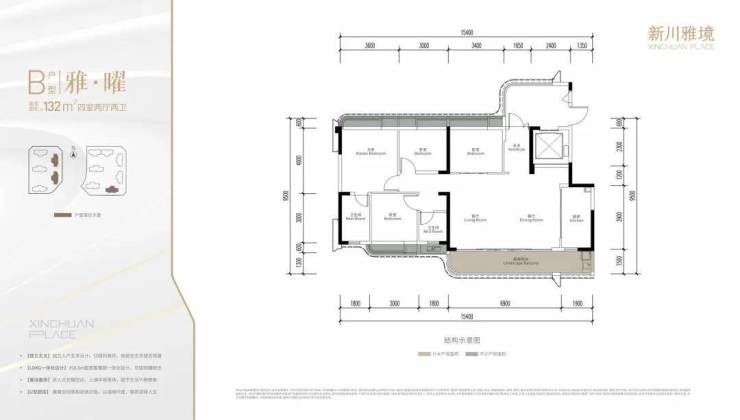
在成都楼市最“卷”143㎡赛道上,新川雅境做到7.25米开间的横厅和观景阳台,客餐厅形成超33㎡的LDKG一体化空间,而双套房、三卫的布局也能满足人口较多的家庭需求。

兴唐·新川雅境建面约143㎡户型图

之于134㎡户型,结构与143㎡户型相似,但特点在于配置有约8.8米阳台,在同级产品中较罕见。

兴唐·新川雅境

【营销中心】:028-62585717「销售热线」

【置业顾问】:13518186441「微信同步」

【置业顾问】:13668208612「微信同步」

温馨提示:专业一对一热情服务,为了节约您的等待时间,看房请提前致电预约

免责声明:

以上内容仅作为邀约邀请,涉及的图片为部分区域实拍图和美学畅想图,具体内容请以现场公示和合同约定为准;本文部分资料、部分图片来源于网络,如有侵权请联系我们删除。

全部
报名成功
稍后会有专业的置业顾问联系您
返回楼盘

频道导航

返回首页

看房小程序

APP下载

电话拨通后,请您手动拨打分机号

确定拨打电话

电话号码:

分机号:(可能需要拨分机号)