西派浣花 成都7.21购房新政:分批取消限购 公积金贷款 首付变化 利好成都楼市 重点楼盘项目介绍

搜狐焦点内江站

2025-07-30 08:29:00

购房群

买房如何避坑,加入购房群,看看他们怎么说

立即进群

西派浣花

【营销中心】:028-62585717「销售热线」

【置业顾问】:13518186441「微信同步」

【置业顾问】:13668208612「微信同步」

温馨提示:专业一对一热情服务,为了节约您的等待时间,看房请提前致电预约

值得关注的是,上半年成都销售额TOP10项目以高品质改善项目为主,八成项目套均总价超500万元。5+2区域新开盘的新规项目凭借产品力优势、服务优势、周边配套优势,基本可实现80%以上开盘去化率。在楼市仍有波动的2025年上半年,成都楼市突然爆红。回顾过去十多年,成都楼面地价从1万到2万,足足用了13年;楼面地价从2万至3万,用了5年。但从3万到4万则都发生在今年3月中下旬,只用时16天!短短16天里,先是高新区桂溪街道铜牌村9组、10组GX2025-05(070102)地块成为成都第一宗楼面地价破3万元(31700元/㎡)的地块,紧接着锦江区金融城三期板块49亩地块又成为成都史上首宗楼面地价破4万地块(楼面地价41200元/㎡)。

建筑面积: 60987.62㎡,总户数:310户,总栋数:3栋,车位:总数358个 ,车位比:1:0.7,物业费:9元/㎡,全屋智能家居系统

建筑面积:120-165㎡一房 ,286-370㎡二房

梯户比:1#楼28层 低区3-13F三梯6户/中区14-23F三梯5户/高区24-28F三梯4户

2#楼28层 低区3-13F三梯5户/中区14-23F三梯5户/高区24-27F三梯3户

1号楼标准层平面图

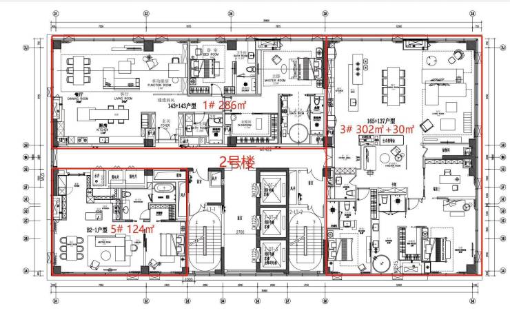
2号楼标准层平面图

西派浣花

【营销中心】:028-62585717「销售热线」

【置业顾问】:13518186441「微信同步」

【置业顾问】:13668208612「微信同步」

温馨提示:专业一对一热情服务,为了节约您的等待时间,看房请提前致电预约

免责声明:

以上内容仅作为邀约邀请,涉及的图片为部分区域实拍图和美学畅想图,具体内容请以现场公示和合同约定为准;本文部分资料、部分图片来源于网络,如有侵权请联系我们删除。

全部
报名成功
稍后会有专业的置业顾问联系您
返回楼盘

频道导航

返回首页

看房小程序

APP下载

电话拨通后,请您手动拨打分机号

确定拨打电话

电话号码:

分机号:(可能需要拨分机号)