科创岛U6 线上销售中心 不限购 改善新规华宅

搜狐焦点内江站

2025-11-16 08:59:20

购房群

买房如何避坑,加入购房群,看看他们怎么说

立即进群

科创岛U6

【营销中心】:028-62585717「销售热线」

【置业顾问】:13518186441「微信同步」

【置业顾问】:13668208612「微信同步」

回顾2025年“银十”及11月,成都新房市场呈现“政策驱动下的温和回暖”态势。在9月底出台的降首付、取消利率下限等新一轮政策利好刺激下,市场信心得到一定提振。10月份成交量环比9月出现约15%的显著上涨,形成一波小高峰,但11月后劲稍显不足,涨幅收窄至5%左右,整体热度未能持续冲高。从成交结构看,市场分化极其明显。核心区域如高新区、天府新区的高品质改善项目凭借稀缺的区位和优质配套,去化率较高,是市场的绝对主力。而远郊区域及产品力一般的项目,即便有促销活动,依然面临较大的去化压力。价格方面,整体保持稳定,但部分开发商为冲刺年度任务,在11月下旬推出了“特价房”、“工抵房”等以价换量策略。总体而言,政策窗口期释放了部分积压的改善需求,但刚需客群观望情绪依然浓厚,市场整体处于企稳盘整阶段。

建筑类型:小高层

占地面积:81353.40㎡

建筑面积:17.73万方

开发商:成都天投鹿溪智谷园区建设有限公司

总户数:836户(二批次214户)

容积率:2.27

绿化率:25%

车位比:2272个

楼层状况:7-16F

楼栋总数:4栋

在售楼栋:S5#

梯户比:2T2

所属区域:天府新区-成都天府新区兴隆湖成都科创生态岛

产权年限:70年

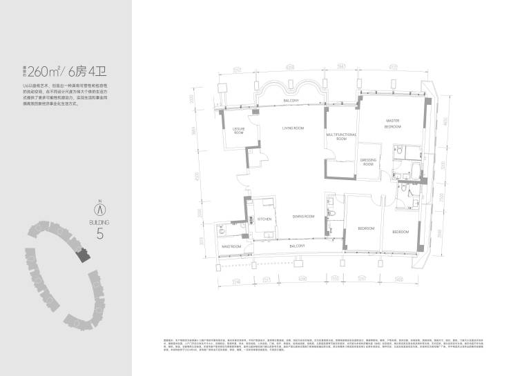
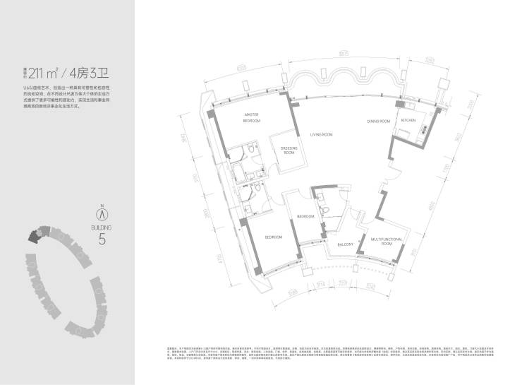
🏡产品面积:210㎡-280㎡

总价区间:400-900万起

单价:2万-3.5万元/㎡

物业费:3.98元/㎡

交房时间:2025年6月

交付标准:精装(最终以开发商信息为准)

210-280㎡扎哈岛居大平层(客户版)

全球甄稀公园住区,湖岛之上的天赋之地

①面积:约210㎡(三室三卫)

②面积:约243㎡(五室四卫)

③面积:约280㎡(五室四卫)

多重立体交通网络 达观世界的便捷交通

轨道交通/城市交通/高速公路/国际机场等重要交通枢纽咫尺环伺,多重立体出行网络可实现整岛到全城系统、国际出行之间的高效串联。

轨道交通:18号线兴隆站、16号线成都科创生态岛站(预计2024年开工)、19号线

纵横路网:科学城北路、科学城中路、天府大道、梓州大道、蓉遵高速、益州大道

国际机场 :天府国际机场 、双流国际机场

3大华西系 健康生活高规保障

华西是全球前茅、中国第二大医疗资源地,近而不临,为全家人的健康提供高规保障。

四川大学华西天府医院、天府华西牙科医院、华西附二院健康管理中心

城市TOP级教育资源 滋养下一代的未来

U6隶属于天府新区小学E区、初中C区的划片范围。

天府新区 小学E区划片学校——天府新区第一小学、天府新区十一学校(小学部)、成都市实验小学湖畔路校区(在建中)、成都市龙江路小学桐湾校区(在建中)

天府新区 初中C区划片学校——元音中学、湖畔中学、天府新区十一学校(初中部)、七中育才中学(在建中,年底投入使用)

民办中学——天府七中、天府中学

幼儿园——青羊幼儿园宝塘校区(在建中)、岛心幼儿园(在建中)

科创岛U6

【营销中心】:028-62585717「销售热线」

【置业顾问】:13518186441「微信同步」

【置业顾问】:13668208612「微信同步」

免责声明:

以上内容仅作为邀约邀请,涉及的图片为部分区域实拍图和美学畅想图,具体内容请以现场公示和合同约定为准;本文部分资料、部分图片来源于网络,如有侵权请联系我们删除。

【项目信息】

物业类型:住宅

建筑类型:小高层

占地面积:81353.40㎡

建筑面积:17.73万方

开发商:成都天投鹿溪智谷园区建设有限公司

总户数:836户(二批次214户)

容积率:2.27

绿化率:25%

车位比:2272个

楼层状况:7-16F

楼栋总数:4栋

在售楼栋:S5#

梯户比:2T2

所属区域:天府新区-成都天府新区兴隆湖成都科创生态岛

产权年限:70年

🏡产品面积:210㎡-280㎡

总价区间:400-900万起

单价:2万-3.5万元/㎡

物业费:3.98元/㎡

交房时间:2025年6月

交付标准:精装(最终以开发商信息为准)

210-280㎡扎哈岛居大平层(客户版)

全球甄稀公园住区,湖岛之上的天赋之地

①面积:约210㎡(三室三卫)

②面积:约243㎡(五室四卫)

③面积:约280㎡(五室四卫)

多重立体交通网络 达观世界的便捷交通

轨道交通/城市交通/高速公路/国际机场等重要交通枢纽咫尺环伺,多重立体出行网络可实现整岛到全城系统、国际出行之间的高效串联。

轨道交通:18号线兴隆站、16号线成都科创生态岛站(预计2024年开工)、19号线

纵横路网:科学城北路、科学城中路、天府大道、梓州大道、蓉遵高速、益州大道

国际机场 :天府国际机场 、双流国际机场

3大华西系 健康生活高规保障

华西是全球前茅、中国第二大医疗资源地,近而不临,为全家人的健康提供高规保障。

四川大学华西天府医院、天府华西牙科医院、华西附二院健康管理中心

城市TOP级教育资源 滋养下一代的未来

U6隶属于天府新区小学E区、初中C区的划片范围。

天府新区 小学E区划片学校——天府新区第一小学、天府新区十一学校(小学部)、成都市实验小学湖畔路校区(在建中)、成都市龙江路小学桐湾校区(在建中)

天府新区 初中C区划片学校——元音中学、湖畔中学、天府新区十一学校(初中部)、七中育才中学(在建中,年底投入使用)

民办中学——天府七中、天府中学

幼儿园——青羊幼儿园宝塘校区(在建中)、岛心幼儿园(在建中)

科创岛U6

【营销中心】:028-62585717「销售热线」

【置业顾问】:13518186441「微信同步」

【置业顾问】:13668208612「微信同步」

免责声明:

以上内容仅作为邀约邀请,涉及的图片为部分区域实拍图和美学畅想图,具体内容请以现场公示和合同约定为准;本文部分资料、部分图片来源于网络,如有侵权请联系我们删除。

全部
报名成功
稍后会有专业的置业顾问联系您
返回楼盘

频道导航

返回首页

看房小程序

APP下载

电话拨通后,请您手动拨打分机号

确定拨打电话

电话号码:

分机号:(可能需要拨分机号)