【营销中心】:028-62585717「销售热线」
【置业顾问】:13518186441「微信同步」
【置业顾问】:13668208612「微信同步」
温馨提示:专业一对一热情服务,为了节约您的等待时间,看房请提前致电预约
房地产业是国民经济的重要产业和居民财富的重要来源,在国民经济发展中的地位举足轻重。房地产市场健康发展,事关经济社会发展大局稳定,事关人民群众切身利益。从上世纪80年代初进行住房试点改革开始,到1998年实行房地产商品化市场化改革,再到2003年进一步深化房地产市场化改革,我国实现了从福利分房到主要通过市场解决住房的重大转变,用20多年时间快速改善了城乡居民居住条件。新时代以来,我国进入城镇化快速发展时期,也是居民住房条件显著改善的时期。2020年,我国城镇人均住房建筑面积达到38.6平方米,较10年前增加约7平方米。“十四五”时期全国商品住房累计销售面积约50亿平方米,扣减住房拆除因素,到2024年底城镇人均住房建筑面积达到41平方米左右,户均住房超过1.1套,建成世界规模最大的城市住房保障体系,有力促进了我国城镇化和经济社会高质量发展。
占地:56.7亩
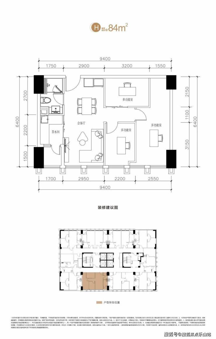
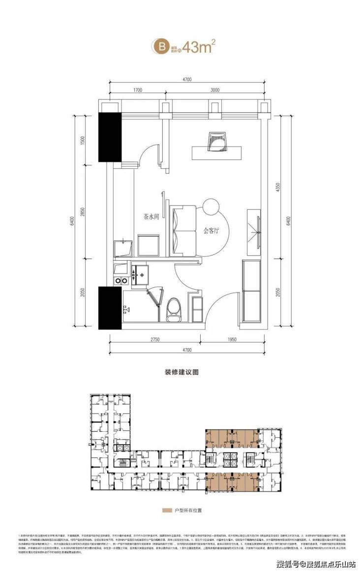
户型:标间(43—52㎡)/套一(62—67㎡)/套二(67—87㎡)/套三(84—120㎡)
公摊:25—30%
交付:精装
总户数:2457户
单价:8400—9000元/㎡
总层高:23F—32F
层高:3米
绿化率:20%
梯户比:6T24/4T12
开发商:碧桂园
物业费:2.4元/㎡
物业公司:碧桂园物业
交房时间:2023年11月
付款方式:按揭、全款、支持首付分期、全款分期

六大购买理由:
1、零门槛买入新一线城市——双流区主中心
2、近享千亿产业园发展红利——成都芯谷
3、便捷的城市级轨交站点——彭镇TOD
4、城市级商业地标,第四大商业街——海德广场
5、标间/套一/套二/套三全面积段产品,满足所有需求
6、总价38万起,清水价买超高性价比类住宅
温馨提示:专业一对一热情服务,为了节约您的等待时间,看房请提前致电预约
免责声明:
以上内容仅作为邀约邀请,涉及的图片为部分区域实拍图和美学畅想图,具体内容请以现场公示和合同约定为准;本文部分资料、部分图片来源于网络,如有侵权请联系我们删除