【营销中心】:028-62585717「销售热线」
【置业顾问】:13518186441「微信同步」
【置业顾问】:13668208612「微信同步」
近年风头正盛的四川成都,5月份楼市成交情况如何?从四川中原研究院、中指院(成都分院)获悉,成都市5月份一二手住宅成交27535套,与4月份的34279套相比减少19.7%。其中二手住宅成交19308套,是一手住宅(8227套)的约2.3倍。值得关注的是,成都当前已有两个板块二手住宅均价破3万元/㎡,分别是天府新区麓湖、高新区金融城,5月成交均价分别为39498元/㎡、36376元/㎡,当中高新区的朗诗南门绿郡5月二手成交均价高达72420元/㎡。5月18-30日,位于龙泉洪河板块的东城金茂晓棠,半个月三次开盘,没有意外,406套房源开盘即罄,首批次更有1600组摇号。无独有偶,新都的万科都会甲第首次开盘(新规产品),最高清水单价约1.6万/㎡,192套房源开盘卖光,5月1日示范区开放客户到访近千组。

【项目基础信息】
开发商:千亿国企经开发展&先锋民企新希望地产
总占地:44亩
容积率:2.0
物业形态:10栋纯洋房
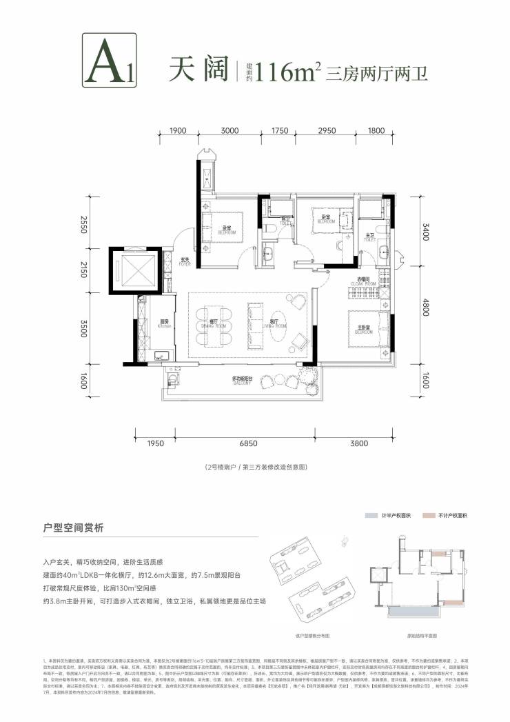
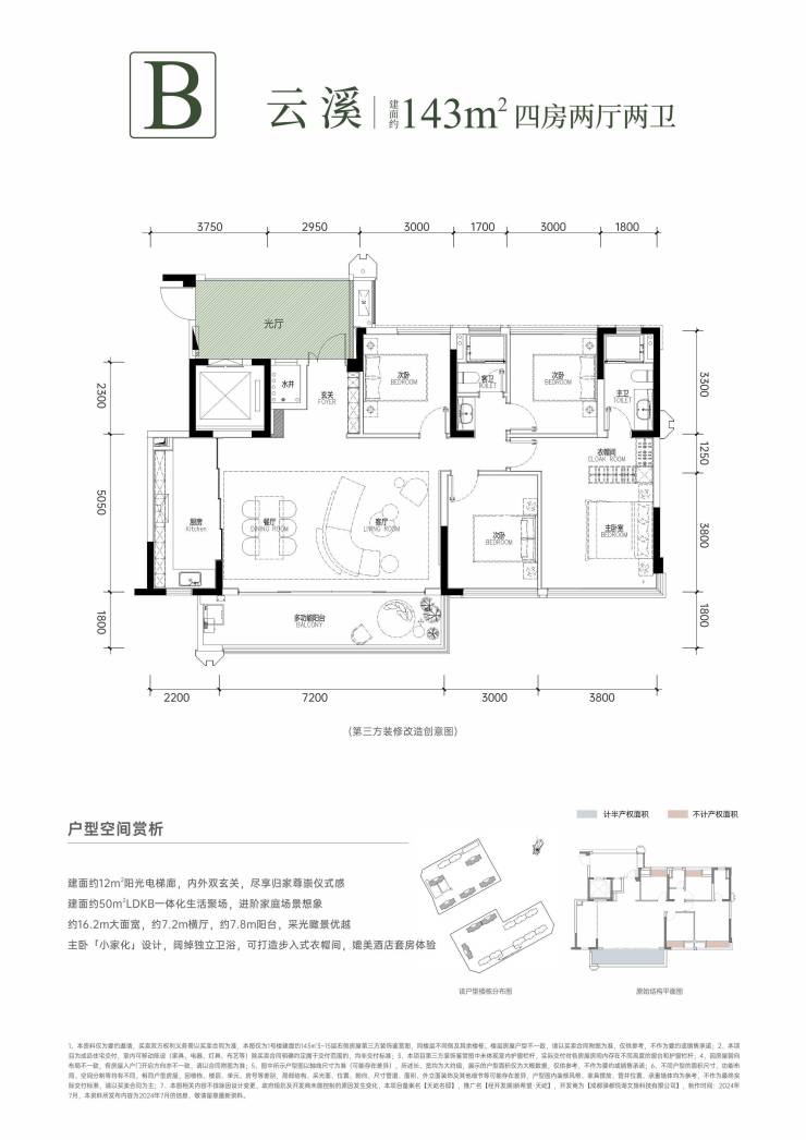
产品面积:建面约116㎡/143㎡
总层高:10-16F洋房
梯户比:1T2/2T2
绿化率:约35%(不含东干水渠)
交付标准:精装交付
项目地址:龙泉驿区东安街道跨湖路
【商业】龙湖东安天街,新城吾悦广场,万达广场,尽享湖芯醇熟生活圈
【交通】依靠蜀都大道/驿都大道/桃都大道等四横三纵道路网,通达全城;距地铁2号,远期规划有11、22、25号线
【教育】比邻向阳桥幼儿园/小学/中学、经开区实验中学(教科院领办)、成都市实验小学(和雅校区)、成都市实验小学(和雅校区、乐雅校区)等全龄优质教育资源,板块内更有四川师范大学成龙校区、四川财经职业学院等高等学府
【医疗】汇集有四川大学华西医院龙泉医院、成都中医药大学附属医院龙泉医院、龙泉驿妇幼保健院、四川省第三人民医院等三甲医院
【公园】近邻东安湖公园、驿马河公园、龙泉山城市森林公园,构建优质生活圈
【营销中心】:028-62585717「销售热线」
【置业顾问】:13518186441「微信同步」
【置业顾问】:13668208612「微信同步」
温馨提示:专业一对一热情服务,为了节约您的等待时间,看房请提前致电预约!!!
免责声明:
以上内容仅作为邀约邀请,涉及的图片为部分区域实拍图和美学畅想图,具体内容请以现场公示和合同约定为准;本文部分资料、部分图片来源于网络,如有侵权请联系我们删除。