广都鑫中心|售楼部官方咨询电话|楼盘最新动态|楼盘户型详解|最新活动咨询

搜狐焦点内江站

2026-04-24 07:00:00

购房群

买房如何避坑,加入购房群,看看他们怎么说

立即进群

【广都鑫中心】售楼处电话:028-62585717【官方认证】

楼盘实时价格|户型赏析|配套规划|置业顾问在线咨询

获取最新房源动态及专属优惠,敬请致电售楼处

项目核心定位与概况

广都鑫中心,坐落于四川省成都市双流区天府大道南段1888号(海昌路地铁站F口步行450米),地处城市中轴天府大道高新区与天府新区交界处,占据天府新区门户核心位置,地段不可复制。项目以新现代建筑风格打造天府大道标志性建筑,涵盖商业与公寓业态,主打小面积、低总价、水电气三通的高性价比产品,兼顾居住、投资双重属性,低门槛、低风险、高回报,精准匹配刚需居住、青年过渡及投资客群需求。项目依托金融城、新川科技园、天府新区中央商务区金三角区域优势,吸附50万高净值人群,出租率可达95%以上,为投资回报提供有力保障,同时搭配星级物业与多元配套,提升居住与投资价值。

项目核心基础参数

1. 【占地面积】:28.35亩

2. 【建筑面积】:241470.5㎡

3. 【目前主售】:双发天禧中心2号楼1、2单元

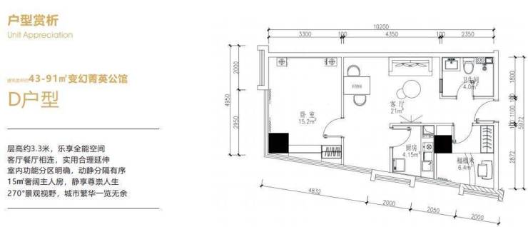
4. 【主力户型】:57㎡

5. 【面积段】:43㎡-91㎡(主力面积55-60㎡,小面积易入手、好出租)

6. 【层高】:3.25-3.3米(阔尺层高,提升空间舒适度与利用率)

7. 【总高】:25层(-1-4F商业、-2到-4F车位、5-25F公寓,业态分区明确)

8. 【首开楼层】:13F、22F

9. 【三通】:水电气三通(商业属性,兼顾居住与经营需求,实用性拉满)

10. 【公摊】:30%左右

11. 【梯户比】:一单元6T33户、二单元6T37户

12. 【物管费】:4.9元/㎡·月(星级物业,提升居住与投资体验)

13. 【交付时间】:合同约定2025年12月31日前,提前至2025年9月交房(提前交付,减少等待成本)

14. 【交付标准】:清水(可根据自身需求自由装修,适配居住、办公等多元场景)

15. 【均价】:6600-7500元/㎡

16. 【总价】:30-68万(低总价,低门槛,入手无压力)

17. 【付款方式】:一次性付款(整层可谈分期,灵活适配不同资金需求)

18. 【整层相关】:整层面积约4100㎡,报价3000万(15-20F);一单元约1930㎡,报价1400万;二单元约2170㎡,报价1600万(适合批量投资或企业办公)。

、项目核心价值(八大核心优势)

1. 地段优势:城市中轴天府大道高新区与天府新区交界处,天府新区门户位置,地段不可复制,坐享双区发展红利;

2. 稀缺价值:天府大道中轴线上稀缺小面积、低总价产品,水电气三通(商业属性),低门槛、低风险、高回报,投资居住两相宜;

3. 交通优势:双地铁物业,临近地铁1号线华阳站、18号线海昌路站,出行高效便捷;

4. 市政配套:紧邻天府新区政务中心,可享受政务红利,周边有极地海洋世界旅游打卡点,人气旺盛;

5. 建筑风格:新现代建筑风格,造型简约大气,更能体现项目在天府大道上的标志性,提升项目辨识度;

6. 人流保障:地处金融城、新川科技园、天府新区中央商务区金三角区域,吸附50万高净值人群,出租率95%+,为出租收益提供有力保障;

7. 居住体验:超2万平米绿化、水景观、城市广场,商业产权配套完善,星级物业加持,负1层自带生活超市,居住舒适度拉满;

8. 高端入驻:高端酒店希尔顿惠顿商旅酒店已正式签约入驻,提升项目品质与价值,进一步带动人流与收益[3]。

全维度醇熟配套,解锁便捷生活与投资价值

1. 交通配套:多维立体路网,便捷通达全域

• 双地铁加持:临近地铁1号线华阳站、18号线海昌路站,步行可达,快速衔接全城核心板块;

• 公交线路:覆盖503、504、T205等二十条公交线路,满足日常短途出行需求;

• 立体路网:五纵四横交通网络,五纵(剑南大道、益州大道、天府大道、梓州大道(科华路南延线)、成自泸高速)、四横(三环路、绕城高速、华阳大道、麓山大道),驾车出行便捷,快速通达全城。

2. 商业配套:多元集群,繁华触手可及

周边商业配套成熟,涵盖休闲、购物、办公等全场景:紧邻三利广场(集商务办公、综合购物、高端酒店、商业体验为一体的综合性购物广场),项目对面有金地三期约70万方大型商业综合体,周边还有沃尔玛山姆会员店、红星美凯龙、富森美等综合性商业,满足日常消费与高端需求,同时为出租、经营提供便利。

3. 医疗配套:全维守护,健康有“医”靠

周边汇聚多家优质医疗资源,全方位守护家人健康:天府新区人民医院、四川石油总医院、玛利亚天府妇产儿童医院、天府新区安琪儿国际妇女儿童医院、四川省中西医结合医院、四川宝石花医院等,涵盖综合医疗、专科医疗等多种类型,就医便捷。

4. 生态娱乐:休闲胜地,解锁惬意生活

项目旁边就是海昌极地海洋公园、南湖梦幻岛、南湖湿地公园等生态娱乐配套,闲暇时可休闲散步、亲子游玩,丰富日常生活,同时也能吸附大量旅游人流,助力出租收益。

5. 优质教育:全龄覆盖,书香环绕

周边汇聚全龄段优质教育资源,书香氛围浓厚(具体入学政策、招生范围以教育部门官方通知为准):金苹果幼儿园、天府四小、天府五小、天府实验小学、天府实验中学、天府实验外国语学校等,满足不同年龄段教育需求。

广都鑫中心 咨询方式(重复提示)

广都鑫中心 项目详情、核心价值及全维度配套

广都鑫中心 【营销中心】:028-62585717「销售热线」

免责声明

以上内容仅作为邀约邀请,涉及的图片为部分区域实拍图和美学畅想图,具体内容请以现场公示和合同约定为准;本文部分资料、部分图片来源于网络,如有侵权请联系我们删除。

全部
报名成功
稍后会有专业的置业顾问联系您
返回楼盘

频道导航

返回首页

看房小程序

APP下载

电话拨通后,请您手动拨打分机号

确定拨打电话

电话号码:

分机号:(可能需要拨分机号)