【营销中心】:028-62585717「销售热线」
【置业顾问】:13518186441「微信同步」
【置业顾问】:13668208612「微信同步」
温馨提示:专业一对一热情服务,为了节约您的等待时间,看房请提前致电预约
成都二手房挂牌量已突破29万套,天府新区更是持续下跌大半年,有购房者坦言:“看了一年的房,就没有哪片区域真的坚挺。”然而,市场的短期波动往往掩盖了长期趋势的重大变化。就在楼市一片悲观之际,房地产市场的运行从来不是线性发展,而是周期性的波动过程。当前的市场调整,实际上是价值的重新夯实。市场调整也在倒逼开发商提升产品品质。
占地:56.7亩
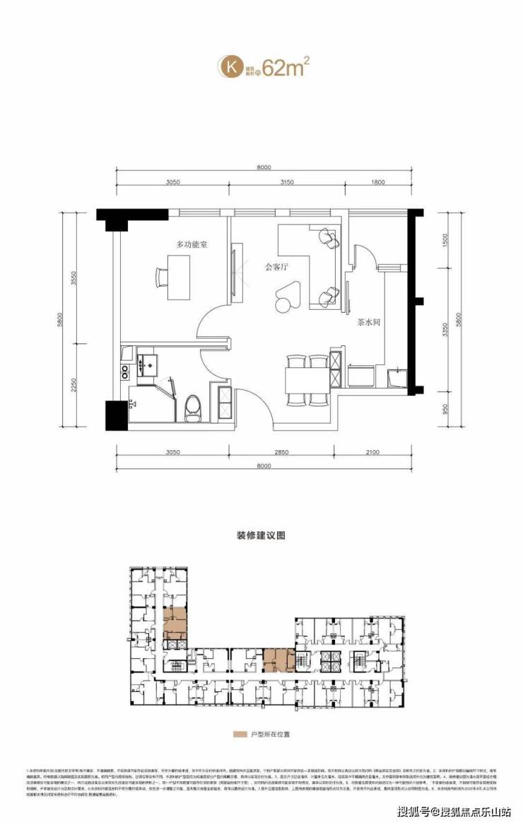
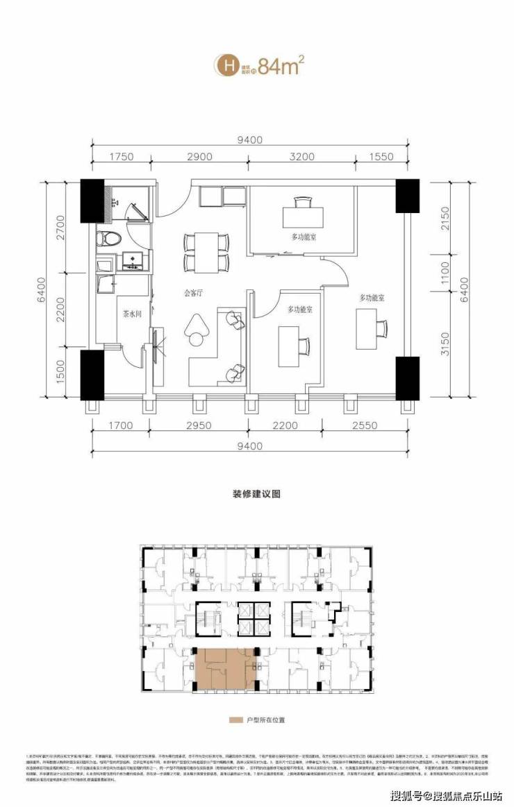
户型:标间(43—52㎡)/套一(62—67㎡)/套二(67—87㎡)/套三(84—120㎡)
公摊:25—30%
交付:精装
总户数:2457户
单价:8400—9000元/㎡
总层高:23F—32F
层高:3米
绿化率:20%
梯户比:6T24/4T12
开发商:碧桂园
物业费:2.4元/㎡
物业公司:碧桂园物业
交房时间:2023年11月
付款方式:按揭、全款、支持首付分期、全款分期

六大购买理由:
1、零门槛买入新一线城市——双流区主中心
2、近享千亿产业园发展红利——成都芯谷
3、便捷的城市级轨交站点——彭镇TOD
4、城市级商业地标,第四大商业街——海德广场
5、标间/套一/套二/套三全面积段产品,满足所有需求
6、总价38万起,清水价买超高性价比类住宅
温馨提示:专业一对一热情服务,为了节约您的等待时间,看房请提前致电预约
免责声明:
以上内容仅作为邀约邀请,涉及的图片为部分区域实拍图和美学畅想图,具体内容请以现场公示和合同约定为准;本文部分资料、部分图片来源于网络,如有侵权请联系我们删除。返回搜狐,查看更多
平台声明:该文观点仅代表作者本人,搜狐号系信息发布平台,搜狐仅提供信息存储空间服务。
阅读 (1)
内容举报
大家都在看

潘石屹再次预判我国楼市!若无意外,未来3年,楼市或迎来3大走向
广告
经常性耳鸣千万别拖!一定要试试它,以防恶化!

杨振宁去世仅4天,令人担忧的事发生了,原来翁帆说的都是对的

方宏进:私生活混乱,从央视主持到劳改犯,现在靠直播打赏讨生活

成都痛失成飞,再无成飞,生产歼20的成飞集团被中航电测收入囊中

64岁毕福剑:定居辽宁小县城,开三轮车载客,日晒雨淋不怕累

中国将迎来人口死亡高峰?22年去世1041万人,23年1110万,去年呢

不到72小时,《人民日报》4次点名于和伟,张艺谋的话有人信了
广告
我来说两句
0人参与, 0条评论
搜狐“我来说两句” 用户公约
幸福的电源fX
搜狐小编
广告
热门精选
催买房没成功,国家终于出手!2025年楼市将迎两大变局

叠拼物业费仅1元/㎡/月?成都一新房物业开始“去人力”
高楼将停建?确定了:住宅实施新标准,未来两类房子吃香了
如果再买房,一定不选一梯两户,不是迷信...
深安居的“十四五”答卷:筑起千万家庭的...
中国造不出光刻机?中科大副院长:美国造...
史上首次!突破38万亿美元!美股大跌
24小时热文
1
陕西药监局罚没4.4亿元的劣药案中止执行:涉案标的额大...
148万 阅读
2
从教室到食堂,狐友校园百科一站式全导航!
130万 阅读
3
中国死亡率最高的徒步线路,谁在穿越?
28万 阅读
裁判报告:杜兰特没暂停叫暂停该吃T 雷霆错失绝杀
54万 阅读
耳鸣,耳背,耳朵嗡嗡响,耳痒闷胀,耳鸣苦不堪言!