西派浣花成都楼市必看楼盘-看房热线-户型图-项目介绍-配套

搜狐焦点内江站

2025-10-20 17:53:00

购房群

买房如何避坑,加入购房群,看看他们怎么说

立即进群

西派浣花

【营销中心】:028-62585717「销售热线」

【置业顾问】:13518186441「微信同步」

【置业顾问】:13668208612「微信同步」

温馨提示:专业一对一热情服务,为了节约您的等待时间,看房请提前致电预约

这几年来,房地产已经倒向买方市场,客户的选择越来越多,个性化的、地缘化的需求也越来越丰富多样。这一趋势其实对房企的市场嗅觉与研发专业性,提出了很高的要求。随着好房子理念的普及、新设计规范的实施,以及改善时代的到来,这两年市场上出现了不少产品创新的标杆,引发了许多房企的复制潮。另外一些政策,在稳定市场预期方面,政策有效期从一年延长至五年,为市民朋友吃下“定心丸”,未缴存住房公积金的人员也可以从现在开始缴存,合理安排房贷转换计划,充分享受政策红利。

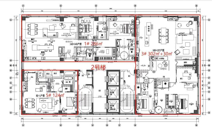
建筑面积: 60987.62㎡,总户数:310户,总栋数:3栋,车位:总数358个 ,车位比:1:0.7,物业费:9元/㎡,全屋智能家居系统

建筑面积:120-165㎡一房 ,286-370㎡二房

梯户比:1#楼28层 低区3-13F三梯6户/中区14-23F三梯5户/高区24-28F三梯4户

2#楼28层 低区3-13F三梯5户/中区14-23F三梯5户/高区24-27F三梯3户

1号楼标准层平面图

2号楼标准层平面图

西派浣花

【营销中心】:028-62585717「销售热线」

【置业顾问】:13518186441「微信同步」

【置业顾问】:13668208612「微信同步」

温馨提示:专业一对一热情服务,为了节约您的等待时间,看房请提前致电预约

免责声明:

以上内容仅作为邀约邀请,涉及的图片为部分区域实拍图和美学畅想图,具体内容请以现场公示和合同约定为准;本文部分资料、部分图片来源于网络,如有侵权请联系我们删除。

全部
报名成功
稍后会有专业的置业顾问联系您
返回楼盘

频道导航

返回首页

看房小程序

APP下载

电话拨通后,请您手动拨打分机号

确定拨打电话

电话号码:

分机号:(可能需要拨分机号)