海德one99销售电话-位置-户型-配套对比-3月最新总价多少

搜狐焦点内江站

2026-03-20 11:05:00

购房群

买房如何避坑,加入购房群,看看他们怎么说

立即进群

海德one99

【营销中心】:028-62585717「销售热线」

房地产的数据已出炉。整体而言,市场依然比较低迷,无论销售量还是销售均价,都在进一步下探。小编认为,这恰恰揭示了当前房地产市场破局的关键路径。 2026年在“稳预期”的政策基调下, 这种 “ 以质换量、以高端稳均价 ” 的止跌路径, 可能会被更多高能级城市 “ 抄作业 ” , 成为扭转市场走势的关键举措。

六大购买理由:

1、零门槛买入新一线城市——双流区主中心

2、近享千亿产业园发展红利——成都芯谷

3、便捷的城市级轨交站点——彭镇TOD

4、城市级商业地标,第四大商业街——海德广场

5、标间/套一/套二/套三全面积段产品,满足所有需求

6、总价38万起,清水价买超高性价比类住宅

占地:56.7亩

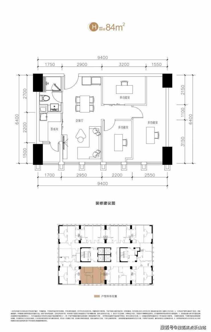
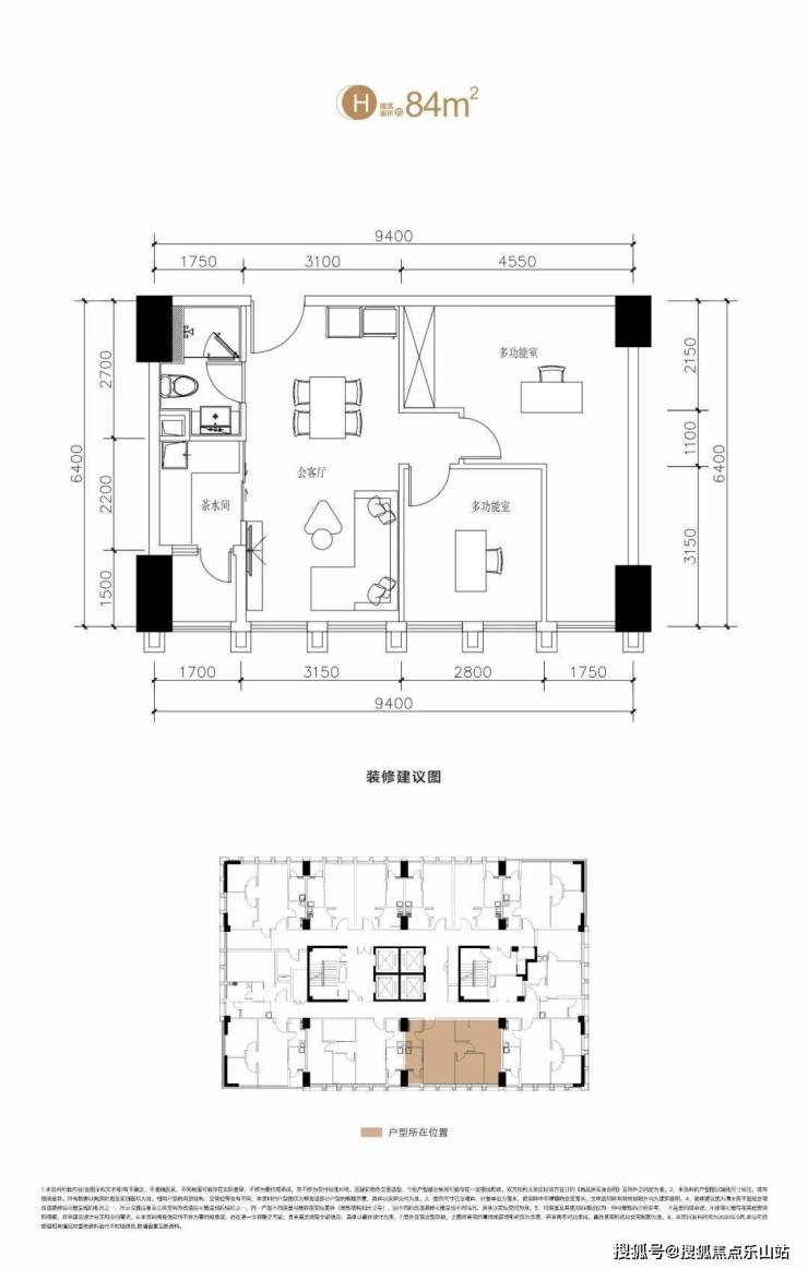
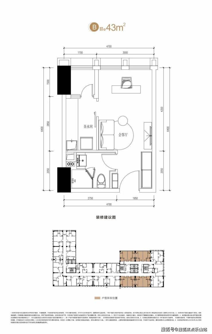
户型:标间(43—52㎡)/套一(62—67㎡)/套二(67—87㎡)/套三(84—120㎡)

公摊:25—30%

交付:精装

总户数:2457户

总层高:23F—32F

层高:3米

绿化率:20%

梯户比:6T24/4T12

开发商:碧桂园

物业费:2.4元/㎡

物业公司:碧桂园物业

交房时间:2023年11月

付款方式:按揭、全款、支持首付分期、全款分期

编辑

海德one99

【营销中心】:028-62585717「销售热线」

温馨提示:专业一对一热情服务,为了节约您的等待时间,看房请提前致电预约

免责声明:

以上内容仅作为邀约邀请,涉及的图片为部分区域实拍图和美学畅想图,具体内容请以现场公示和合同约定为准;本文部分资料、部分图片来源于网络,如有侵权请联系我们删除

全部
报名成功
稍后会有专业的置业顾问联系您
返回楼盘

频道导航

返回首页

看房小程序

APP下载

电话拨通后,请您手动拨打分机号

确定拨打电话

电话号码:

分机号:(可能需要拨分机号)