西派浣花-售楼处基本信息 售楼处电话(已认证)售楼处直联

搜狐焦点内江站

2026-03-18 08:03:00

购房群

买房如何避坑,加入购房群,看看他们怎么说

立即进群

西派浣花

【营销中心】:028-62585717「销售热线」

【置业顾问】:13518186441「微信同步」

【置业顾问】:13668208612「微信同步」

温馨提示:专业一对一热情服务,为了节约您的等待时间,看房请提前致电预约

近期,成都楼市优化政策不断,继首套房认定、公积金政策后,成都以旧换新平台正式上线。8月20日起,近两周来,已连续两次发布以旧换新活动的新房项目和中介机构参与名单,目前已扩展到约110个新房项目、64家房产经纪机构参与活动,给予降二手中介费、各项优惠等措施。随后,金牛区、青羊区、锦江区相继出台细则,推出了包括人才补贴、购房就学支持、消费礼包等措施……市场利好不断。利好的密集出台,再次刺激市场。近两周来,不少项目和中介公司发现,来访和来电量有了变化,不少有置换需求的购房者陆续入场,市场关注度和咨询量持续上升。还有不少购房者,已经实实在在享受到购房补贴消费券。

建筑面积: 60987.62㎡,总户数:310户,总栋数:3栋,车位:总数358个 ,车位比:1:0.7,物业费:9元/㎡,全屋智能家居系统

建筑面积:120-165㎡一房 ,286-370㎡二房

梯户比:1#楼28层 低区3-13F三梯6户/中区14-23F三梯5户/高区24-28F三梯4户

2#楼28层 低区3-13F三梯5户/中区14-23F三梯5户/高区24-27F三梯3户

1号楼标准层平面图

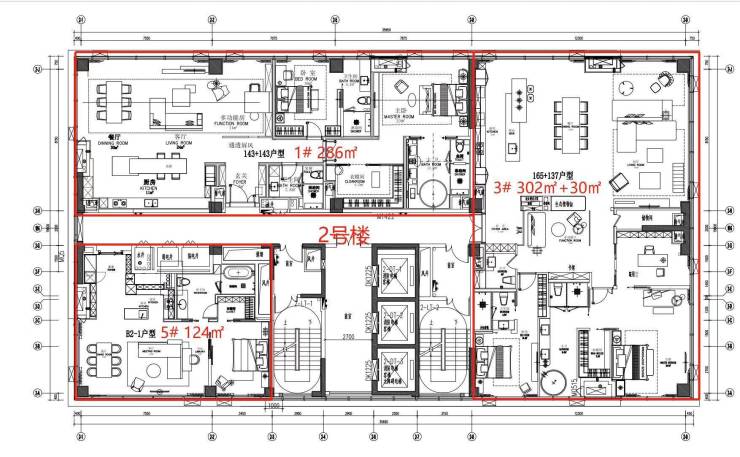
2号楼标准层平面图

西派浣花

【营销中心】:028-62585717「销售热线」

【置业顾问】:13518186441「微信同步」

【置业顾问】:13668208612「微信同步」

温馨提示:专业一对一热情服务,为了节约您的等待时间,看房请提前致电预约

免责声明:

以上内容仅作为邀约邀请,涉及的图片为部分区域实拍图和美学畅想图,具体内容请以现场公示和合同约定为准;本文部分资料、部分图片来源于网络,如有侵权请联系我们删除。

全部
报名成功
稍后会有专业的置业顾问联系您
返回楼盘

频道导航

返回首页

看房小程序

APP下载

电话拨通后,请您手动拨打分机号

确定拨打电话

电话号码:

分机号:(可能需要拨分机号)