【营销中心】:028-62585717「销售热线」
【置业顾问】:13518186441「微信同步」
【置业顾问】:13668208612「微信同步」
未来房价不能大涨,现在很多人可能很容易理解。因为影响房地产市场发展的很多因素都发生了改变,尤其是人口因素的改变,会长远的影响到房地产市场未来的走势。当下的房地产市场已经整体进入供大于求,房价已经失去了上涨的动力。房价也不能再大跌了。实际上,接下来的房价也不至于有大跌的动力了。过去几年,房价已经经历了一轮比较激烈的下跌调整了,很多城市的房价从最高点下跌跌幅已经超过30%-40%,甚至超过50%。这是一个什么样的概念?意味着在房价高点附近买房的人首付基本上都跌没了。说实话,在这么短的时间内,这样的跌幅是算很大的了,未来房价下跌的动能会逐渐衰减的,这也是市场规律。

【项目基础信息】
开发商:千亿国企经开发展&先锋民企新希望地产
总占地:44亩
容积率:2.0
物业形态:10栋纯洋房
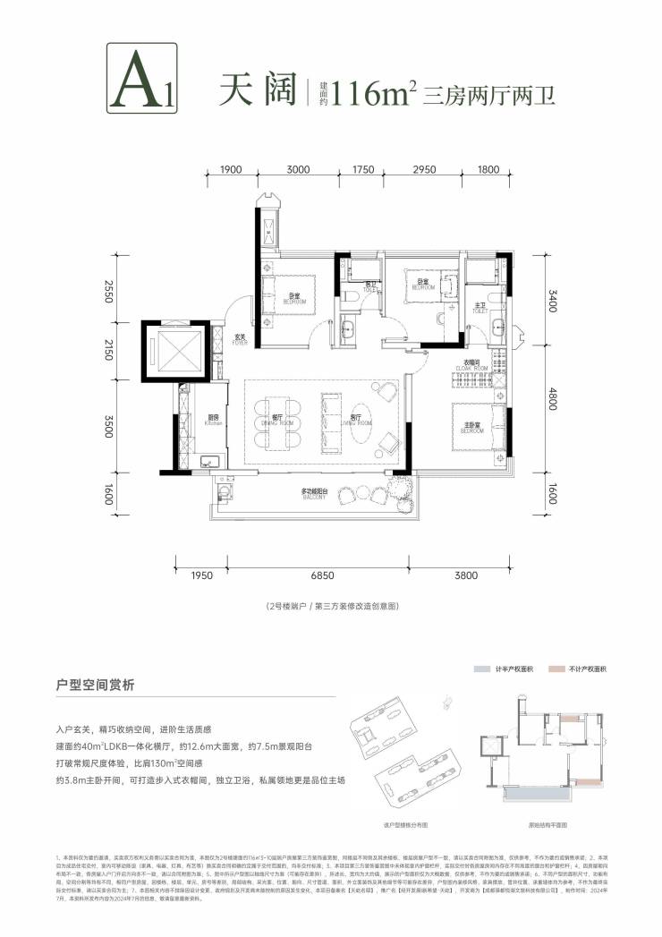
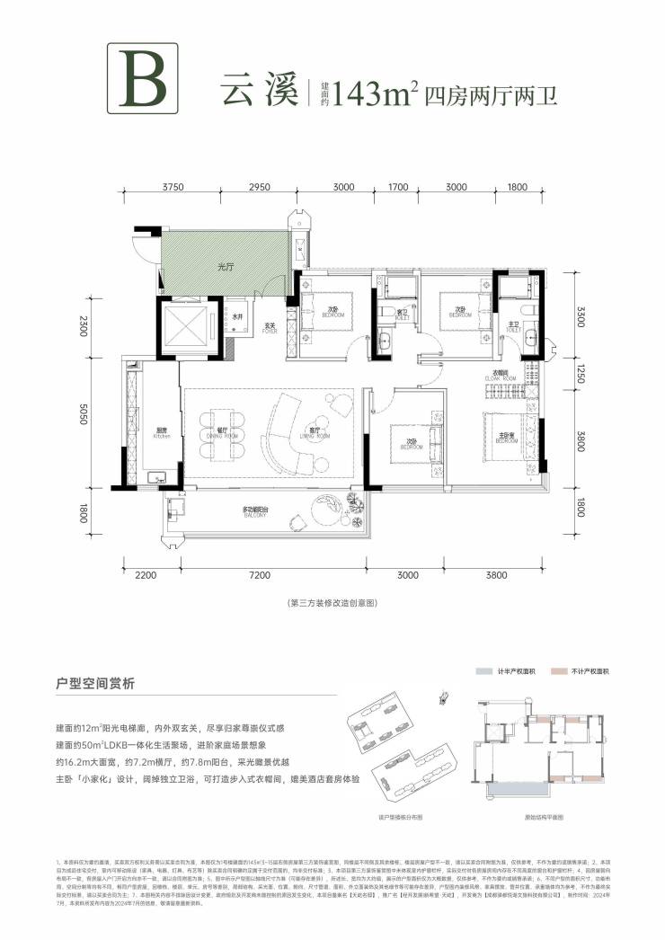
产品面积:建面约116㎡/143㎡
总层高:10-16F洋房
梯户比:1T2/2T2
绿化率:约35%(不含东干水渠)
交付标准:精装交付
项目地址:龙泉驿区东安街道跨湖路
【商业】龙湖东安天街,新城吾悦广场,万达广场,尽享湖芯醇熟生活圈
【交通】依靠蜀都大道/驿都大道/桃都大道等四横三纵道路网,通达全城;距地铁2号,远期规划有11、22、25号线
【教育】比邻向阳桥幼儿园/小学/中学、经开区实验中学(教科院领办)、成都市实验小学(和雅校区)、成都市实验小学(和雅校区、乐雅校区)等全龄优质教育资源,板块内更有四川师范大学成龙校区、四川财经职业学院等高等学府
【医疗】汇集有四川大学华西医院龙泉医院、成都中医药大学附属医院龙泉医院、龙泉驿妇幼保健院、四川省第三人民医院等三甲医院
【公园】近邻东安湖公园、驿马河公园、龙泉山城市森林公园,构建优质生活圈
【营销中心】:028-62585717「销售热线」
【置业顾问】:13518186441「微信同步」
【置业顾问】:13668208612「微信同步」
温馨提示:专业一对一热情服务,为了节约您的等待时间,看房请提前致电预约!!!
免责声明:
以上内容仅作为邀约邀请,涉及的图片为部分区域实拍图和美学畅想图,具体内容请以现场公示和合同约定为准;本文部分资料、部分图片来源于网络,如有侵权请联系我们删除。