西派浣花-值不值得购买 现在是入手的时期吗?售楼部电话

搜狐焦点内江站

2026-01-16 07:27:00

购房群

买房如何避坑,加入购房群,看看他们怎么说

立即进群

西派浣花

【营销中心】:028-62585717「销售热线」

【置业顾问】:13518186441「微信同步」

【置业顾问】:13668208612「微信同步」

温馨提示:专业一对一热情服务,为了节约您的等待时间,看房请提前致电预约

加强信息和舆论引导。加强对房地产市场相关价格等关键指标监测。住房是普通家庭最大、最重要的资产,住房价格直接关系群众利益,更受群众关注。除价格之外,对直接影响社会预期的关键指标和关键事件也要加强监测,如房地产投资、法拍房数量、房企倒闭或债务重组等,对于敏感性指标的发布要做好专家解读。统筹发挥各级主流媒体、传统媒体和新媒体作用,加强对房地产市场的政策解读和舆情分析,特别是要加强对有关房地产业发展的一些重要指标变动的解释,引导人们从整体上客观看待我国房地产发展趋势。同时,对企业、机构和个人通过自媒体等散布有关房地产业发展的不实信息进行及时管控,多措并举推动社会形成对房地产市场的理性预期。

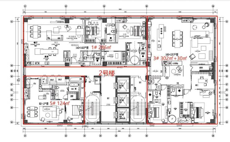
建筑面积: 60987.62㎡,总户数:310户,总栋数:3栋,车位:总数358个 ,车位比:1:0.7,物业费:9元/㎡,全屋智能家居系统

建筑面积:120-165㎡一房 ,286-370㎡二房

梯户比:1#楼28层 低区3-13F三梯6户/中区14-23F三梯5户/高区24-28F三梯4户

2#楼28层 低区3-13F三梯5户/中区14-23F三梯5户/高区24-27F三梯3户

1号楼标准层平面图

2号楼标准层平面图

西派浣花

【营销中心】:028-62585717「销售热线」

【置业顾问】:13518186441「微信同步」

【置业顾问】:13668208612「微信同步」

温馨提示:专业一对一热情服务,为了节约您的等待时间,看房请提前致电预约

免责声明:

以上内容仅作为邀约邀请,涉及的图片为部分区域实拍图和美学畅想图,具体内容请以现场公示和合同约定为准;本文部分资料、部分图片来源于网络,如有侵权请联系我们删除

全部
报名成功
稍后会有专业的置业顾问联系您
返回楼盘

频道导航

返回首页

看房小程序

APP下载

电话拨通后,请您手动拨打分机号

确定拨打电话

电话号码:

分机号:(可能需要拨分机号)