广都鑫中心楼盘分析-周边配套-户型图分析-总价多少-优惠多少

搜狐焦点内江站

2025-11-15 11:26:00

购房群

买房如何避坑,加入购房群,看看他们怎么说

立即进群

广都鑫中心

【营销中心】:028-62585717「销售热线」

【置业顾问】:13518186441「微信同步」

【置业顾问】:13668208612「微信同步」

产人大脑往往被当下低迷市场和溃败的信心所笼罩,没有心思对这一轮房地产调整后的行业走向,进行预判和猜想。常识告诉我们,没有永远下行的市场,即使美国,日本房价当年跌跌不休,如今也迎来持续多年的上涨。而在中国,相对理论中枢,当下中国房地产的确“超跌”了,未来理应有一个反弹的空间。

【项目参数】

占地面积:28.35亩

建筑面积:241470.5m

目前主售:双发天禧中心2号楼1、2单元

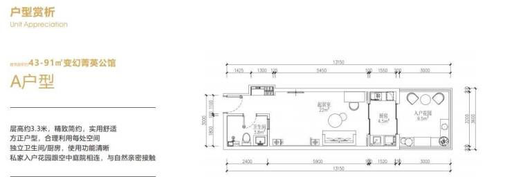
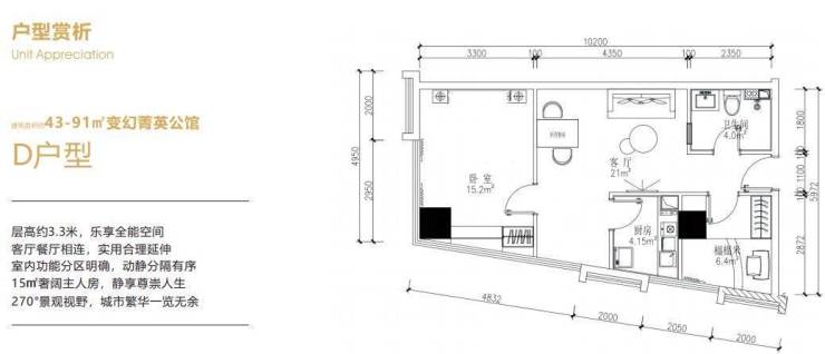
主力户型:57㎡

面积段:43㎡-91㎡(主力面积55-60㎡)

层高:3.25-3.3米

总高:25层(-1-4F商业、-2到-4车位、5-25F公寓)

首开楼层:13F、22F

三通:水电气三通(商业)

公摊:30%左右

梯户比:一单元6T33户 、二单位6T37户

物管费:4.9元

交付时间:合同2025年12月31日前

提前到2025年9月交房

交付标准:清水

均价:6600-7500

总价:30-68万

付款方式:一次性(整层可谈分期)

整层面积:约4100㎡ 报价3000万(15-20F)

一单元:约1930㎡ 报价1400万

二单元:约2170㎡ 报价1600万

核心价值:

1.地段城市中轴天府大道高新区与天府新区交界处,天府新区门户位置,不可复制。

2.稀缺性:天 府大道中轴线上稀缺小面积,低总价,水电气三通物业,低门槛,低风险,高回报。

3.交通:双 地铁物业(地铁1号线、18号线)。

4.市政配套:天府新区政务中心旁,红利 享受,极地海洋世界旅游打卡点。

5.建筑风格:新现代建筑风格更能体现项目在天府大道上的标志性。

6.人流保障 金融城,新川科技园,天府新区中央商务区金三角区域,大大吸附区域人流,为出租带来有利保障。

7.居住:超2万平米绿化,水景观,城市 广场,商业产权住宅配套,星级物业提高居住舒适度,负1层自带生活超市。

8.入驻商家:高端酒店希尔顿惠顿商旅酒店已正式签约。

【交通配套】:

双地铁上盖:1号线华阳站18号线海昌路站

503 504 T205等二十条公交线路

五纵四横立体网络

五纵:剑南大道、益州大道、天府大道、梓州大道(科华路南延线)、成自泸高速;

四横:三环路、绕城高速、华阳大道、麓山大道。

【商业配套】:三利广场,是集商务办公、综合购物、高端酒店、商业体验为一体的综合性购物广场,

项目对面还有金地三期约70万方的大型商业综合体,周边还有沃尔玛山姆会员店、红星美凯龙、富森美等综合性商业,实

【医疗配套】:拥有天府新区人民医院、四川石油总医院、玛利亚天府妇产儿童医院、天府新区安琪儿国际妇女儿童医院、四川省中西医结合医院、四川宝石花医院等。

【生态娱乐】:项目旁边是海昌极地海洋公园、南湖梦幻岛,南湖湿地公园等。

【优质教育】:金苹果幼儿园 天府四小 天府五小 天府实验小学 天府实验中学 天府实验外国语学校等。

广都鑫中心

【营销中心】:028-62585717「销售热线」

【置业顾问】:13518186441「微信同步」

【置业顾问】:13668208612「微信同步」

免责声明:

以上内容仅作为邀约邀请,涉及的图片为部分区域实拍图和美学畅想图,具体内容请以现场公示和合同约定为准;本文部分资料、部分图片来源于网络,如有侵权请联系我们删除。

全部
报名成功
稍后会有专业的置业顾问联系您
返回楼盘

频道导航

返回首页

看房小程序

APP下载

电话拨通后,请您手动拨打分机号

确定拨打电话

电话号码:

分机号:(可能需要拨分机号)