高新区哪个楼盘值得买?金融城8号楼盘全面购买分析建议

搜狐焦点内江站

2026-04-04 10:56:00

购房群

买房如何避坑,加入购房群,看看他们怎么说

立即进群

金融城8号

【金融城8号】售楼处电话:028-62585717【官方认证】

楼盘实时价格|户型赏析|配套规划|置业顾问在线咨询

获取最新房源动态及专属优惠,敬请致电售楼处

今年楼市持续向好,上海、北京一二手市场双双回暖,系真实市场修复而非短期虚火。头部房企预期乐观,行业已度过最艰难时期,进入触底企稳、逐步修复阶段,核心城市及优质板块将率先回升。金融城8号凭借高端配套与区域优势,成为市场修复期优选,自住、投资均具高价值。

跨越时空的世界恒产

双塔旁 220-600㎡云端大平层

基本信息:

产权年限:住宅 70年

楼栋总数:4栋(住宅1栋)

梯户比:3T2 4T4

预计装修:精装修

占地面积:27.54亩

【项目基础信息】

建筑高度:约160米

总 户 数:仅130席

本次推售:约220-600㎡云端大平层

【核心区位】

金融城 中国西部城市价值制高点

以0.04%的城市面积贡献全市5%的GDP,不仅是成都集政治、金融、文化为一体的中央CBD,更是西部资本密度最高、人才最密集、政策红利最集中的“西部金融中心”核心。

金融城8号 绝版城市封面资产

占据金融城最核心——没有之一。与双塔并肩而立,补齐金融城最美天际线,成就代表成都、面向世界的城市封面。

城市地段的顶点

只是金融城8号的起点

【打造理念】

用企及世界的高度 定制已知的未来

以「高奢定制理念」对业态、产品、服务进行全方位定制,重塑成都顶豪格局。

——「业态定制」

在成都极核天际线 构建“无界生活共同体”

以“顶层蓝图思维”,打造集云端住宅、顶级大平层、超甲写字楼、高奢生活MALL于一体的城市豪宅综合体定制业态,精准匹配塔尖人群的全维生活场景。

——「产品定制」

镶嵌于天际 演绎极简的立面语言

以“云端之上”为设计理念,采用蓝灰色三层玻璃幕墙,搭配浅香槟金铝板,营造简约轻盈的立面语言,补齐城市天际线。

为不同凡响的人生 加冕生活的排场

云端大平层提供2种室内风格,为峯层人士精准把握生活的非凡品味。

【雅奢风格】

生活的非凡格调

以顶级奢华酒店的理念打造生活空间,将沉淀多年的东方美学与酒店品质感融入空间肌理。

【极简风格】

空间的前沿艺术

以留白的艺术,遵从空间最本质的意义,予居者自我定义空间的个性化审美。

“长期主义”选品,拒绝浅层奢华

循迹全球,臻选各领域极致工艺的顶级品牌,匹配峯层人物品味。

——「服务定制」

为当代家族,定制可传承的家族服务体系

-将欧洲皇室管家服务的百年智慧,与当代中国家族的生活需求相融合,打造“心誉”品牌。

-联袂高力国际和荷兰国际管家学院,遴选全球精英服务人才,为中国当代顶级家族提供非标化、可传承的定制服务。

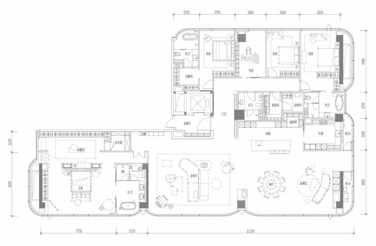
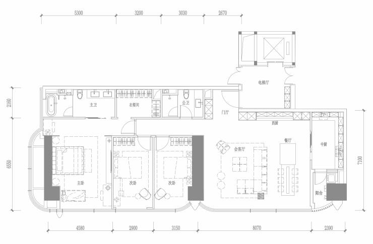
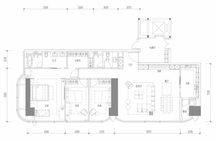
【户型鉴赏】

600㎡

560㎡

370㎡

310㎡

230㎡

【金融城8号】售楼处电话:028-62585717【官方认证】

楼盘实时价格|户型赏析|配套规划|置业顾问在线咨询

获取最新房源动态及专属优惠,敬请致电售楼处

免责声明:

以上内容仅作为邀约邀请,涉及的图片为部分区域实拍图和美学畅想图,具体内容请以现场公示和合同约定为准;本文部分资料、部分图片来源于网络,如有侵权请联系我们删除

全部
报名成功
稍后会有专业的置业顾问联系您
返回楼盘

频道导航

返回首页

看房小程序

APP下载

电话拨通后,请您手动拨打分机号

确定拨打电话

电话号码:

分机号:(可能需要拨分机号)