【营销中心】:028-62585717「销售热线」
【置业顾问】:13518186441「微信同步」
【置业顾问】:13668208612「微信同步」
温馨提示:专业一对一热情服务,为了节约您的等待时间,看房请提前致电预约
从房价展望看,2024年下半年成都新房市场难现普涨行情,整体呈“核心稳、外围弱”格局。锦江区、高新区等核心区域因土地成本高、配套成熟,新房均价保持高位,而温江、都江堰等区域则需以价换量维持成交 。市场热度在政策推动下逐步回升,9月后“政策组合拳”效果显现,10月起成交持续上扬,四季度成交面积占全年40%,但传统旺季“金九银十”前期表现不及预期,区域热度差异显著 。购房者心理已从观望转向审慎入场,一方面受LPR下调、契税优惠等政策提振,信心有所恢复;另一方面更注重房屋实用性,100-140㎡改善户型成交占比显著上升,品质成为核心考量 。
占地:56.7亩
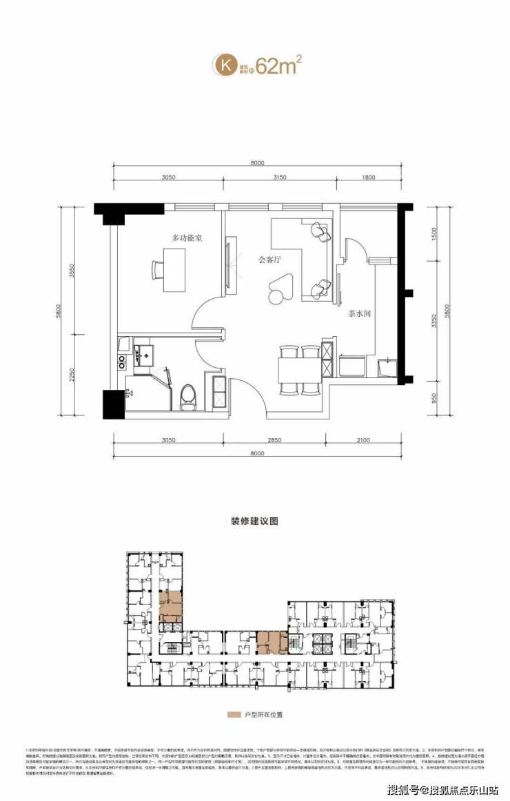
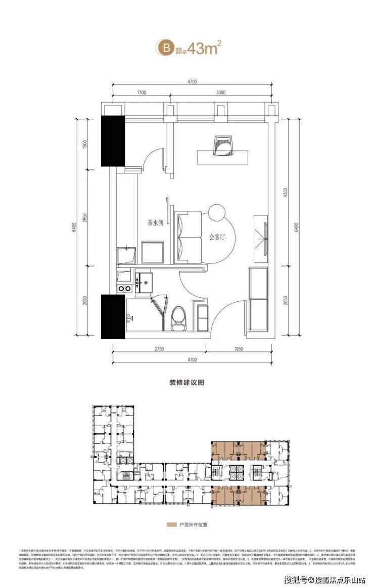
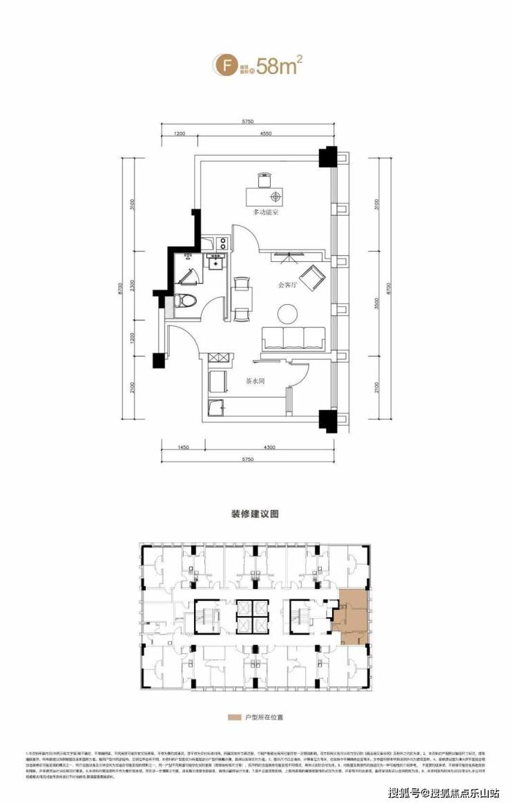
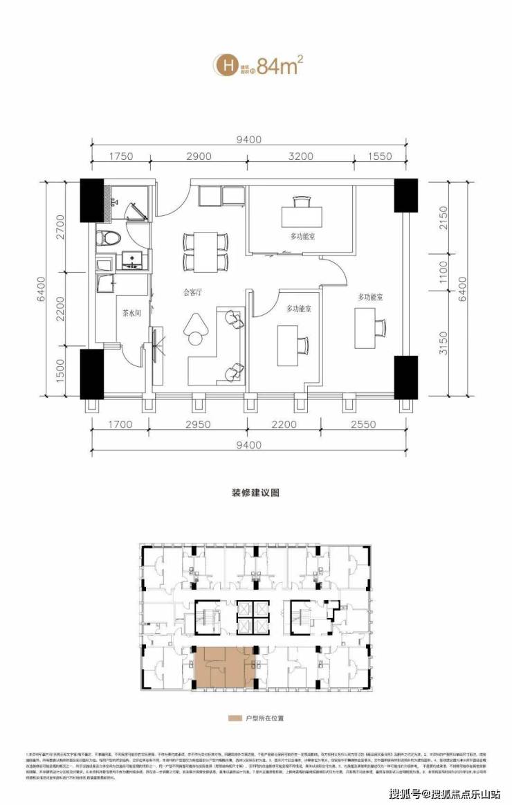
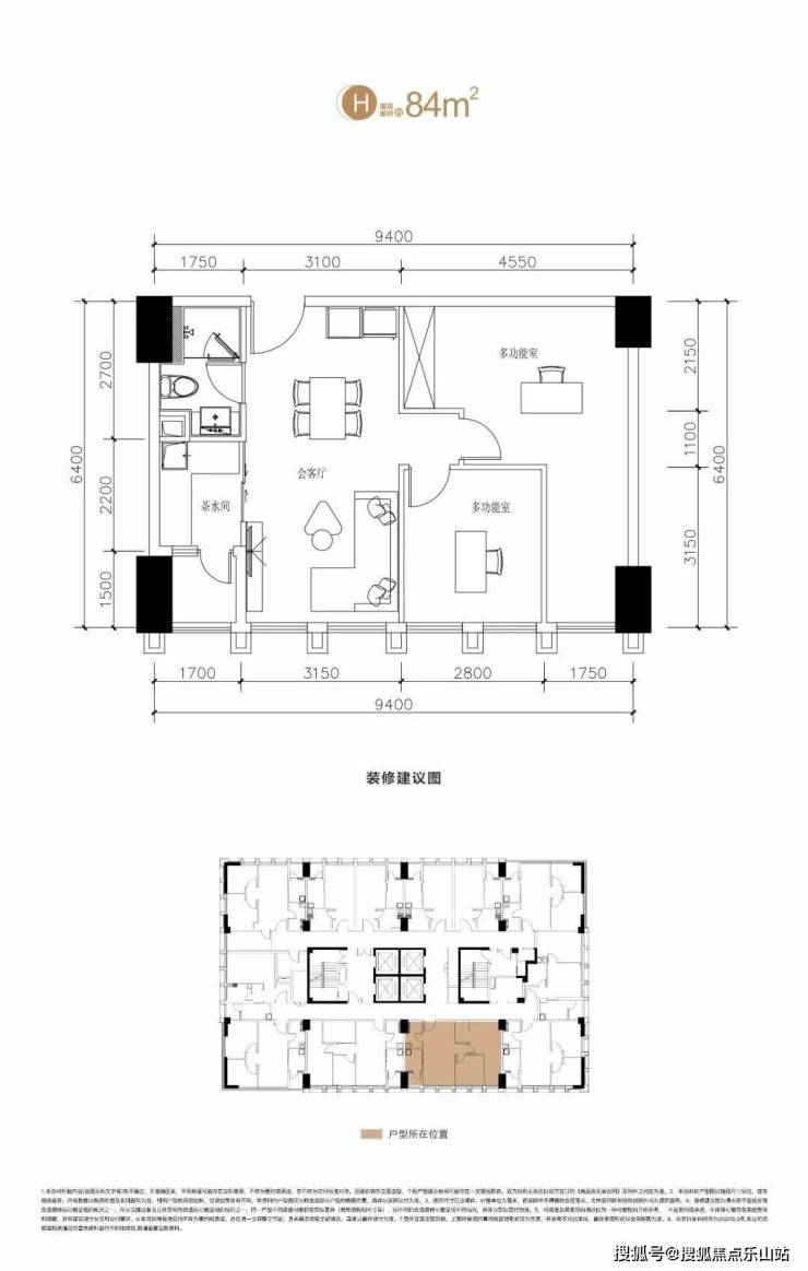
户型:标间(43—52㎡)/套一(62—67㎡)/套二(67—87㎡)/套三(84—120㎡)
公摊:25—30%
交付:精装
总户数:2457户
单价:8400—9000元/㎡
总层高:23F—32F
层高:3米
绿化率:20%
梯户比:6T24/4T12
开发商:碧桂园
物业费:2.4元/㎡
物业公司:碧桂园物业
交房时间:2023年11月
付款方式:按揭、全款、支持首付分期、全款分期

六大购买理由:
1、零门槛买入新一线城市——双流区主中心
2、近享千亿产业园发展红利——成都芯谷
3、便捷的城市级轨交站点——彭镇TOD
4、城市级商业地标,第四大商业街——海德广场
5、标间/套一/套二/套三全面积段产品,满足所有需求
6、总价38万起,清水价买超高性价比类住宅
温馨提示:专业一对一热情服务,为了节约您的等待时间,看房请提前致电预约
免责声明:
以上内容仅作为邀约邀请,涉及的图片为部分区域实拍图和美学畅想图,具体内容请以现场公示和合同约定为准;本文部分资料、部分图片来源于网络,如有侵权请联系我们删除。