城脉商务·HALO广场招商处电话:181-1878-5308【☎☎开发商认证✅】
城脉商务·HALO广场租赁中心热线:181-1878-5308【☎☎VIP贵宾专线✅】
郑重承诺:看房请提前预约现场销售,开发商直销,中介勿扰!✅
城脉商务·HALO广场招商处电话: 181-1878-5308施经理(官方已认证电话、无中介费、中介勿扰)
HALO广场位于罗湖区重点打造的红岭新兴金融产业带,是【深圳市投资推广重点产业园区】,同时被区政府认定为“罗湖区红岭战略性新兴产业园”,是罗湖区重点金融及科技产业园区,同时与政府合作共同打造“数字文旅产业园区”,项目距7/9号线红岭北站D出口200米直达,距9号线园岭D出口仅300米。
项目由城脉控股统一开发、自持运营,分5期开发,总体量约14万㎡。1-5期火热招商租赁中-入驻享限时优惠
【租赁面积】约300㎡~1940㎡整层连层办公室(可按需求分割)
【租金单价】108元/㎡/月起(含税)
【管理费单价】22.6元/㎡/月
【位置格局】红岭北路与桃园路大道交汇、城脉中心地标
【空调配置】VRV空调,24h独立控制计流量
即租即用限席抢位-开发商直租无中介费
【单元实景图】
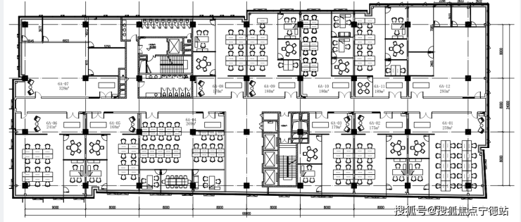
【标准层平面图】

一、项目整体技术指标
注:具体技术指标以最终交付为准

二、项目实景图
双层中空LOW-E玻璃幕墙,立面现代简约
高品质商务大堂,三菱品牌电梯高效通勤
甲级精装公区走道及洗手间
【红岭新兴金融产业带首排,世界级金融示范区】
【双地铁·三口岸,畅达粤港澳商务圈】
9号线园岭站D出口,7/9号线红岭北站D出口
罗湖口岸、文锦渡口岸、莲塘口岸
【自带约3.5万㎡商业配套,全方位满足企业及员工多样需求】
【总部经济 名企为邻】(排名不分前后)
【高规格多功能厅,匹配企业大型会议、培训,产品发布等商务需求】
【专业商务运营服务体系 全方位关注企业与白领需求】
打造城脉商务Mark office,成立专业产服团队,不定期举办行业论坛、白领关怀等活动
【城脉控股品牌运营】
城市综合运营商,已开发约35万㎡商务办公集群,多元化产品满足企业全生命周期需求。

地址:罗湖区笋岗梨园路8号
招商处电话:18118785308
地铁:9号线园岭站D出口、7/9号线红岭北站D出口
导航地址:HALO广场2期