深圳水木一方大厦 甲级写字楼出售 地铁桃园站直连 全球盛大发售
水木一方大厦-写字楼出售电话:136-9163-9522陈经理【开发商已认证】
水木一方大厦-办公室发售电话:136-9163-9522陈经理【24小时预约热线】
水木一方大厦-办公楼销售热线:136-9163-9522陈经理【欢迎来电咨询】
温馨提示:看房需提前预约,感谢您的配合!!!

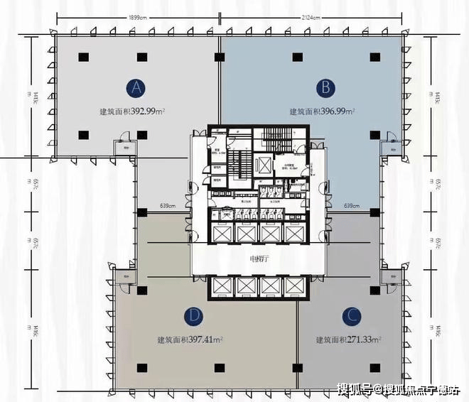
【水木一方大厦】
南山区政府旁,甲级写字楼出售
出售面积:271-396-790-1458平米
销售价格:3.58万/平米
交付标准:精装修
地铁出口:1/12号线【桃园站】A出口
【写字楼出售基础信息】
占地面积:7575.51㎡
建筑面积:61504.41㎡
超高使用率:75%
梯户比:一层9梯4户
A楼栋层数:23层
车位数量:220个
产品面积:271-397平甲级写字楼
电梯:9部三菱客梯
物业管理费:19.9元
空调:VRV 24小时(按电费收取)
办公标准层高:4.25m
大厦位置:深圳·南山荔香公园旁·1号线桃园地铁站A出口300米处
水木一方大厦-开发商热线电话136-9163-9522陈经理【电话已认证】
租售户型图丨项目介绍丨最新房源丨优惠折扣|周边配套丨详细解答,
本项目暂不接受临时到访,过来参观样板房请记得提前来电预约,谢谢配合。








【项目简介】
【水木一方大厦】位于深圳南山荔香公园旁,周边环境舒适宜居、配套齐全便捷。不仅拥有城、海、陆、空四维交通,无缝接驳世界,还拥享22万平米一览无遗的荔香公园全景景观。这里也是一个属于您的圈层、资源、事业的新平台。

【深圳南山高端商务住区】:
项目位于前海蛇口自贸区、后海总部区、深圳湾超级总部基地、南山科技园、宝安中心区等几大总部基地汇聚的焦点区位。世界顶尖人才、资本、产业资源,在此融通。这里不仅是南山的核心中轴,也是深圳最具价值的地段之一。

【全球性综合交通枢纽】
三横三纵城市路网:滨海大道、东滨路、深南大道、月亮湾大道、南山大道、南海大道
双地铁:项目距地铁1号线、12号线双地铁口,桃园站仅300米
轨道交通:深圳西站、西丽火车站(在建)
国际交通枢纽:宝安国际机场、深圳湾口岸、蛇口太子湾邮轮母港
启迪国际科创中心-开发商售楼中心/营销部电话136-9163-9522陈经理,欢迎来电咨询。

【22万方生态公园】:
项目与荔香公园(22万平米)零距离,荔香公园向东延伸与深圳大学校园绿化相连,形成罕有的城市中心巨大面积绿化区。在这里,偶尔远眺放松工作心情,闲暇时,亦可楼下散步,调整状态。

【城市绿肺生态办公】:
水木一方大厦紧邻荔香公园,俯瞰22万方自然生态景观;

【15分钟步行生活圈】:
生活配套:田厦金牛广场、天虹商场、欢乐颂购物中心、家乐福,生活购物极其方便
市政配套:南山文体中心 (剧院、羽毛球馆、两个标准比赛游泳馆)、南山图书馆、南山博物馆等均在步行10分钟距离内。


水木一方大厦-开发商销售中心电话136-9163-9522陈经理(中介勿扰),
因为平时来访客户较多,看房请提前来电预约,感谢您的配合,
欢迎来电咨询,我们将竭诚为您服务,,诚邀莅临品鉴,现场看房。