世纪金源·天河源筑-天河区新房出售电话:188-1915-9656陈经理【开发商已认证】
世纪金源·天河源筑-省级学位房出售电话:188-1915-9656陈经理【24小时预约热线】
世纪金源·天河源筑-天河区现楼出售热线:188-1915-9656陈经理【欢迎来电咨询】
温馨提示:看房需提前预约,感谢您的配合!!!
世纪金源·天河源筑
是 天河北少有的一手准现房,有建面约91-93-107-136-143-185㎡的4房和5房户型,新规100%使用率,户型方正实用,配套成熟,住起来很舒适;
现在卖的价格:5.9万/方起,带精装修;
【在售面积】
①、出售面积:91平米3房2卫2厅,总价519万起
②、出售面积:107平米4房2卫2厅,总价626万起
③、出售面积:127平米4房2卫2厅,总价698万起
④、出售面积:143平米4房2卫2厅,总价808万起
5、出售面积:185平米4+1房3卫2厅,总价1188万起
交通配套:
三地铁环绕,规划地铁20号线4站直达珠城,楼下公交总站;
教育配套:
学校:汇景实验华园学校(九年一贯制省一级标准打造,今年小学一年级和初一已经开学);
医疗配套:
三甲医疗:1.5公里内2所三甲医院(武警广东省总队医院、中山大学附属第六医院);;
商业配套:
顶流商业:距太古汇、天环、K11、IGC等核心商圈约3km,超10家顶级商场、五星级酒店举手可得
世纪金源·天河源筑-开发商热线电话188-1915-9656陈经理【电话已认证】
租售户型图丨项目介绍丨最新房源丨优惠折扣|周边配套丨详细解答,
本项目暂不接受临时到访,过来参观样板房请记得提前来电预约,谢谢配合。

这个楼盘有十大必买的理由,听陈经理我壹壹道来:
【大品牌】中国500强企业 稳健资金实力
◎ 【世纪金源——多航道稳健,“造城专家”】
-“中国企业500强”、“中国服务业500强”
-四大航道:大消费、大文旅、新科技、大健康
-大盘开发者:开发总面积超9000万㎡,20座大型城市综合体

◎【 世纪金源——雄厚实力,致力慈善】
-捐款金额:已高达70亿元,平均每年捐赠2.3亿元。
-慈善荣誉:连续21年荣登“中国慈善榜”,连续21年稳居榜单前十,且10次荣登榜首
-个人荣誉:10次荣获“爱心捐赠个人”奖、1次荣获“脱贫攻坚领域突出贡献奖,1次荣获“抗击新冠肺炎疫情突出贡献奖“;多次荣获“中国首善”称号,10度荣获“中国慈善奖”。
◎ 【腾云筑科——科技赋能】
- 是世纪金源集团专门成立的新型地产开发平台
- 以科技赋能打造新型科技地产,引领城市发展和人居模式
【真天河】距离珠江新城约4.5KM,太古汇等天河核心商圈约3KM
-地标汇聚:广东省博物馆/广州图书馆/广州大剧院/广州第二少年宫/天河体育中心等人文地标
【好地段】广州最强大脑-科技发源地 北有中关村,南有环五山
◎环五山创新策源区
-4大”双一流“高校:华师、暨大、华工、华农高校总部环伺
-数家科研院所:32家高校科研院所、10家国家重点实验室、52家众创空间、600余家高新技术企业等
-政府城市更新重点片区之一,政府主导,多项旧改通过备案,预计明年启动;世纪金源主动兑现,内外齐发力,CBD+CTD双核驱动发展

【好圈层】四大高校环伺,与院士、高校教授为邻,广州平均学历最高片区
-4大高校:华工/华农/暨大/华师四大高校总部环伺
-教授圈层:聚集近30位国家院士、62位双院院士、数百位高校教授
-名人圈层:更有小鹏汽车何小鹏、宁德时代曾毓群,广汽集团曾庆洪,威马汽车沈晖,创维集团黄宏生,亿纬锂能刘金成等为华工校友

天河区 世纪金源 天河源筑--江景房学位房出售/出租电话152-1770-4353陈经理,欢迎来电咨询。
【低密度】广州中心稀缺低密小高层占地超11000亩华工、华农高校后花园
-一期规划5栋16-17层的瞰景小高层
-低密度大围合中心花园格局设计,实现通风采光景观最大化
-华工华农为邻,出门即享超11000亩高校业主后花园
【强兑现】稳健持续兑现,城市界面、学校开学、东莞庄道路拓宽等基建配套先行兑现
-未交楼先开学:天河区汇景实验华园学校已开学,天河24年唯2开学的学校
-主动退地改善道路面貌:东莞庄路(天河源筑)道路拓宽施工,未来将拓宽为双向四车道,前广场焕新升级中
-“准现楼”:楼栋封顶销售,大胆开放实地样板房,所见即所得
-道路又一升级改造:东莞庄(天一新村)启动拓宽双向四车道
-前广场焕新升级:仪式水景、腾小圈互动广场已成,美好逐渐兑现
-世纪金街:火热招商中,多元业态便捷生活



【出行快】三地铁环绕,规划地铁20号线4站直达珠城,楼下公交总站
◎ 多维立体交通 直达珠城畅游全城
- 3地铁环绕:地铁1/3/6号线,未来地铁11号线
-地铁20号线东莞庄路站,4站达冼村(属珠江新城)
-楼下即达公交总站


天河北现房,省级书包,咨询热线15217704353陈经理(开发商已认证)
【豪装标】广州罕见分户式七恒气候系统一线品牌交标
-广州顶豪难得一见的七恒系统,科技创新超越顶豪配置,重金打造全屋分户式七恒气候系统,全屋调控+房间独立调控:
-恒温:智慧中央空调,全年维持人体舒适体感温度
-恒湿:智能温湿分控除湿新风机,湿度维持在30%~60%健康范围
-恒氧:24H鲜氧新风换气系统,四季智能调节全屋气候
-恒静:生态空调系统、高性能隔音门窗系统、卫生间同层排水系统全方位打造静谧舒适环境
-恒洁:配置高效除尘系统,时刻保障室内空气洁净
-恒智:AI智能家居系统+智能控制面板,定制个性化生活场景模式
-恒怡:前置净水、中央净水、中央软水、末端直饮4重净水体系
✅七大维度守护健康,一年四季如春的舒适生活

-全屋高定奢装:配备智能家居,嘉格纳、唯宝、大金等高端品牌,媲美10万+顶豪国际品牌交标
【高使用】南向全明高赠送户型达100%以上
#1 源筑热销南向四房
建面约107㎡ | 4空间二厅二卫

#1 源筑王牌奢阔四房
建面约127㎡ | 4空间二厅二卫

#2 建面约105㎡ | 4空间二厅二卫

#2 建面约142m² | 4空间二厅三卫

#2 建面约182㎡丨4空间二厅三卫

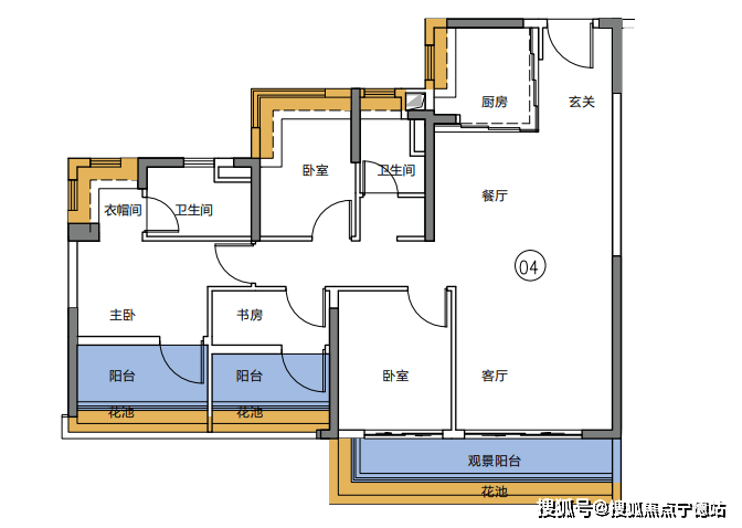
#3#4 建面约93㎡︱3空间二厅二卫

#3#4 建面约107㎡︱4空间二厅二卫

#3#4 建面约140㎡︱4空间二厅三卫

世纪金源·天河源筑 销售中心认证电话188-1915-9656陈经理(中介勿扰),
因为平时来访客户较多,看房请提前来电预约,避免临时无人接待,感谢您的配合,
欢迎来电咨询,我们将竭诚为您服务, 全程无任何中介费用,诚邀莅临品鉴,现场看房。