凯立方广场|K立方广场,全新一手写字楼出售,深圳龙华区,羊台山旁,欢迎来电咨询,
开发商售楼处电话136-9163-9522陈经理(官方已认证电话、无中介费、中介勿扰)
【K立方广场】
阳台山旁,全新一手写字楼出售
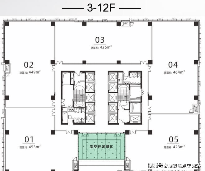
出售面积:420㎡起
销售价格:特价1.28万/㎡
整层面积:2200平米
交付时间:现楼
大道封面资产,有氧生态办公
单价1字头起,抢龙华生态办公
地铁6号线旁,三站直达深圳北站
层高4.2-4.5米灵动空间,超73%使用率
周边超800万㎡旧改,价值即将上升
深圳凯立方广场-开发商热线电话136-9163-9522陈经理【电话已认证】
在租在售户型丨项目介绍丨最新信息丨优惠折扣|周边配套丨详细解答,
专业一对一热情服务,售楼处暂不接受临时到访客户, 请提前来电预约。






K立方广场便利的交通:
【1高铁】:
4站抵深圳北高铁枢纽站,乘广深港高铁2站抵香港西九龙,畅达全国
【2地铁】:
直线距离约900米即达地铁6号线阳台山东站,享高效通勤未来2站接驳地铁13号线(在建),连通深圳北CBD、福田中心、南山科技园、后海总部基地等7大核心商务区
【1轻轨】:
从阳台山东乘坐有轨电车(在建),线路覆盖大浪街道中心区、大浪时尚小镇核心区
【1横1纵高速】:
一横:沈海高速可快速到达深圳宝安国际机场
一纵:龙大高速直达光明中心区及东莞松山湖
【2快速2主干道】:
两快速:福龙快速直达福田车公庙,可快速联通香港。深华快速路-福龙路立交工程(一期)将于今年竣工,连接龙澜大道和福龙路两条快速路,未来侨城东路北延线开通后,一站直达南山中心区,
两主干:布龙路、龙峰三路:布龙路直达布吉,龙峰三路连接新区大道北段可直达北站红山片区。
K立方广场-开发商销售中心/营销中心电话136-9163-9522陈经理,欢迎来电咨询。
【龙华核心地段,总部汇聚,5G产业聚集地】
《粤港澳大湾区发展规划纲要》提出,大湾区将建设城市群,龙华定位为中轴区域核心!立于深圳CBD中轴商务带,立足于都市核心区战略定位和新兴产业高地,打造数字龙华的先行示范新引擎。
项目占据龙华商务中心与数字经济圈的黄金交汇点,将吸纳龙华5G产业、数字科技时尚创意、智能制造等新兴产业,助力企业布局高远未来,满足大量商务精英人群需求!
【周边超800万㎡旧改,重朔区域城市蝶变】
聚集星河、鸿荣源、卓越等30个房产开发品牌,超800万㎡庞大体量旧改,重塑区域格局,未来片区商务发展潜力无可估量,物业价值水涨船高。预计3年陆续动工,5年初具规模,10年焕新一城!
龙华凯立方广场-开发商营销中心/招商处认证电话136-9163-9522陈经理(中介勿扰),
因为平时客户较多,看房请提前预约,避免临时无人接待,感谢您的配合,
我们承诺:一对一专属开发商销售服务,我们将竭诚为您服务,欢迎预约看房。