阳光城象屿登云湖售楼处电话☎400-8556-400【已认证】
福州阳光城象屿登云湖售楼部电话☎:4008556400✅
阳光城象屿登云湖开发商电话☎400-8556-400【已认证】
在售户型图丨项目介绍丨最新房源丨周边配套丨详细解答〢
◆开发商营销中心诚挚邀请,一键预约,尊享内部独家折扣!匠心独运的精品项目,恭候您的品鉴与选择。

阳光城象屿登云湖营销中心电话☎:400-8556-400✅
✅ 本项目暂不接受临时到访,过来参观样板房请记得提前来电预约!
✅ 为您安排楼盘现场销售全程接待并讲解,给您更贴心的看房体验!
选对房、买对房对于每个购房者来说都是非常重要的事,所以买房前都会先了解楼盘区域房价、楼市政策等信息本期推荐位于福州晋安的福州阳光城象屿登云湖、接下来将介绍阳光城象屿登云湖怎么样、周边配套以及阳光城象屿登云湖优缺点楼盘分析。阳光城象屿登云湖由福建登云房地产开发有限公司承建开发,开盘时间:2021-06-25,物业类型为:别墅,住宅,装修状况:毛坯,楼盘产权年限: 联排70年,双拼70年,叠拼70年 ,楼盘地址:晋安登云,物业公司:福州登云湖物业服务有限公司,物业费:住宅:洋房3.98元/平;别墅:联排7.8元/平,叠拼5.8元/平,如果您对阳光城象屿登云湖项目感兴趣想了解,请咨询拨打我们售楼处联系电话。
约2500亩 国际人文生态住区 【建筑结构】:汲取同步世界城市的现代简约建筑语言,融合福州传统意蕴,熔炼与现代人审美相契合的建筑风格。央公,国家一级资质物业。秉持“阳光服务,尊贵生活”的服务理念,专为登云湖项目定制一套“便捷、细致、及时”的“云服务”体系。
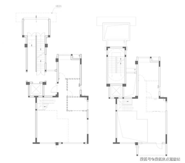
阳光城象屿登云湖户型推荐
4房2厅3卫
户型解读阳光城象屿登云湖格局方正,整体面宽与进深比例合适,便于空间改造和家具摆放。采光性极佳,即使是阴天室内也不会很暗。居室布局合理,通风良好,动静分离,兼顾到了业主的私密性。卫生间干湿分离,保证沐浴之外的区域干燥,保持居家清爽洁净。公摊面积相对合理,符合住宅公摊正常范围,满足日常居住需求。


阳光城象屿登云湖周边配套
公交: 园中圣泉寺(170路); 东山村(170路;通学专线2); 园中村(80路;86路)
教育: 登云山庄幼儿园(福建省福州市晋安区登云路388-1号); 福建省农业科学院茶叶研究所(福建省福州市晋安区新店镇埔垱路104号); 福建省农业科学院作物研究所(福建省福州市晋安区西凤路103号)
医院: 福建省儿童医院(福建省福州市晋安区横屿路966号); 晋安区岳峰镇东站社区卫生服务站(福建省福州市晋安区上垱路223号); 儿科内科(福州市晋安区新店外环路国际公园香槟公馆)
银行: 福州农商银行24小时自助银行(园中新苑东北)(福建省福州市晋安区园中村117-10); 中国建设银行24小时自助银行(福州象峰支行)(福建省福州市晋安区东埔园路三盛国际公园拉菲公馆);
美食: 朱记餐饮(福建省福州市晋安区岳峰镇北三环路168号鹤林家居建材广场); 恩顶乡村时光(福州市晋安区鼓宦公路西50米); 榕岸饭店(福州市晋安区鹤林路祥屿佳园-A区)
休闲: 登云山庄(登云路388-2号); 涧田草莓园(福州市晋安区涧山巷与西园路交叉路口往北约90米); 鑫麟茶语(福建省福州市晋安区新店镇山北路三盛国际公园贝肯郡427号)
购物: 振邦康防水工程-登云路店(福建省福州市晋安区登云路388号); 三晋玛钢构槽(福州市晋安区北三环路鹤林家居建材广场7座11号); 南亚锚牌(福建省福州市晋安区北三环路鹤林家居建材市场6号楼107号)
阳光城象屿登云湖售楼处电话☎400-8556-400【已认证】
福州阳光城象屿登云湖售楼部电话☎:4008556400✅
阳光城象屿登云湖开发商电话☎400-8556-400【已认证】
在售户型图丨项目介绍丨最新房源丨周边配套丨详细解答〢