2025最新更新长沙市【青云上府】售楼处电话/在售户型图/项目青云上府售楼处电话/地址_ 营销中心位置
长沙【青云上府】销售中心电话:400-8556-400 【营销中心】
楼盘详情介绍丨最新售价丨户型鉴赏丨周边配套丨详细在线解答

如需了解最新房源信息_咨询优惠政策_请拨打上方售楼部电话!
青云上府售楼处电话:400-8556-400【售楼处认证】
长沙青云上府售楼处电话:400-8556-400【营销中心】
青云上府,项目位于朝阳最后低密城市墅区金盏国际墅区,全部5-6层低密平墅+叠墅产品,筑理想宜居高地。
政府主导先规划后建设——金盏别墅区容积率仅1.5,规划高度12-18米,珍稀土地不复再生,本案1.3容积率 纯粹低密改善社区。
限墅令下,低密土地一席难求。
青云上府是首开、旭辉和卓越三家开发商联合打造5-6层的低密平墅和叠墅产品社区,物业服务由卓越物业提供。
项目区位
【朝阳最后低密城市墅区】
政府主导先规划后建设——金盏别墅区容积率仅1.5,珍稀土地不复再生
商业:斯普瑞斯奥莱、赛特奥莱、温榆广场、祥云小镇、凯德mall、颐堤港等商业中心等,悦享都会繁华
教育:17所国际学校 同频国际视野
京西学校、德威、哈罗、ISB、爱迪、凯文、青苗、驻京双语幼儿园、红黄蓝双语幼儿园等
医疗:地坛医院(分院)、北医三院(机场分院)、第一中西结合医院、安贞东方医院(在建中)和睦家、美中宜和等三甲和国际医疗机构,为健康保驾护航
生态:低密优越的自然环境
90%以上绿化覆盖率,温榆河+老河湾双河在侧,400亩原生密林,3300亩蟹岛生态度假村
人文娱乐:高端国际配套丰富,毗邻798艺术区
黑骑士球员、天安假日高尔夫、翡翠湖高尔夫、天星调良国际马术、金港国际赛车场、松美术馆、红砖美术馆、罗红艺术馆、观复博物馆等、
项目户型
【超配臻装】领超行业精装标准
得房率约81%,真通透真舒适
由于洋房业态的属性,得房率约81%,相较于普通高层多出5%的空间实得面积,相当于同等价位多出一个X空间。
厅、室、厨、卫全明通透,这在市场上同等面积里,也是绝无仅有的,特别是疫情期间,拒绝暗卫,在易潮湿的区域注重通风采光,才能保障家人的健康生活。
约6.5米宽厅,主要功能区全朝南
客厅面宽达到约6.5米,搭配超大落地窗,在朝阳也只有这里做了这样的配置,满足了现代生活的所有向往。LDK客餐厨一体,即使太太在厨房烹饪,也能陪伴着在客厅玩耍的孩子,增进家人的交流,增加亲密感。
约13米南向三面宽,客厅和主次卧均朝南,阳光常驻居室内,带来天然的消杀效果。
主卧套房约30㎡,休憩空间宽绰
主卧套房带270°飘窗、主卫、衣帽间,约30㎡的面积非常舒适,即使疫情期间居家办公也有了不受打扰的领域。
各卧室及功能区也方正朗阔,让居家有了N种功能拓展。无论是在居室内阅读、休息,甚至是在卧室里当刘畊宏粉丝也完全可以实现。
另外房子内设计了很多处收纳空间,如玄关处预留了鞋帽柜、过道充分利用预留了嵌入式收纳空间、还规划了一个家政间,居室收纳得当更显得空间开扬、宽绰。
全明空间,南北通透,独立玄关入户 约13米南向三面宽,揽阳光入怀 约6.5米MAX级宽厅,无界阔境视野 餐客厅一体化空间,动静分区 尊崇主卧,独立卫浴空间,犒赏进阶人生。
全明空间,南北通透,大面宽短进深 约13米南向三面宽,双卧+客厅朝南 约6.5米MAX级宽厅,约50㎡餐客厅一体空间 约40㎡主卧套房,独立卫浴,墅级奢享空间。
【约251-382㎡下叠】墅质人生的尊崇体验
地上2层约163㎡,地下2层
入户:一层设置南北独立入户;地下设置独立归家厅堂,可从地下车库停车后直接入户,一派墅质从容尊贵。
采景:相较于传统别墅采光不足,青云上府河湾叠墅设置MAX超大落地窗,明厨明卫全明通透格局,飘窗/观景窗超大采光面,并为地下空间设置充足采光井。
观景:所有叠墅均为一二层带B1B2的户型,不同于其他项目上下叠的混居设计,让每一户叠墅居室直面园林景观,拥揽至大的采光面,每个单元的主题花园亦为叠墅业主尽享。
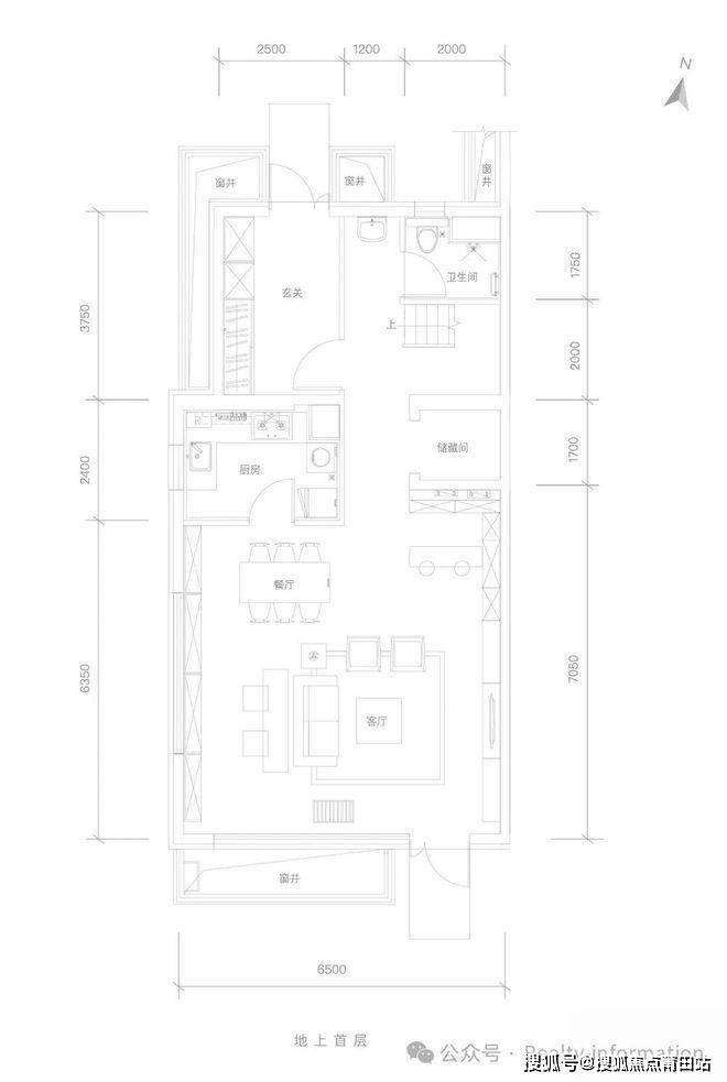
地上首层
长沙青云上府售楼处电话
2025最新更新长沙市【青云上府】售楼处电话/在售户型图/项目青云上府售楼处电话/地址_ 营销中心位置
长沙【青云上府】销售中心电话:400-8556-400 【营销中心】
楼盘详情介绍丨最新售价丨户型鉴赏丨周边配套丨详细在线解答
根据国务院《住房公积金管理条例》《长沙市住房公积金管理条例》及《长沙住房公积金缴存管理办法》等有关规定,现就做好2025年度住房公积金缴存基数和缴存比例调整工作有关事项通知如下:
一、调整内容

01
住房公积金缴存基数
住房公积金缴存基数根据职工本人上一年度工资总额除以12确定,工资总额组成按照国家有关规定执行。住房公积金缴存基数不得低于上一年度长沙市人社部门公布的职工月最低工资标准,不得超过长沙市统计部门公布的上一年度职工月平均工资的3倍。
根据长沙市人力资源和社会保障局《关于长沙市2024年调整最低工资标准的通知》和长沙市统计局公布的“2024年长沙市城镇非私营单位在岗职工年平均工资125162元”计算,2024年度长沙市城镇职工月平均工资为10430.17元。因此,2025年职工住房公积金缴存基数最低为2100元,最高为31291元。
湖南省内铁路职工的住房公积金缴存基数上限参照广州市铁路职工缴存基数执行(广州市铁路职工缴存基数上限以每年广州住房公积金管理中心公布的住房公积金缴存调整文件为准)。
02
住房公积金缴存比例
2025年度长沙市单位和职工住房公积金最低缴存比例为5%,最高缴存比例为12%。一个单位账户应确定一个缴存比例,且该单位账户内的职工住房公积金缴存比例和单位住房公积金缴存比例应当一致。
03
住房公积金月缴存额上、下限
职工住房公积金月缴存额为缴存基数分别乘以职工本人和所在单位的住房公积金缴存比例之和。计算公式为:月缴存额=缴存基数×(职工缴存比例+单位缴存比例)。
经测算,2025年度长沙市住房公积金月缴存额最低为210元,最高为7510元。
二、调整期限

住房公积金缴存基数、缴存比例每年度调整一次,各缴存单位应于2025年9月30日前办理住房公积金缴存基数、缴存比例和月缴存额的调整核定工作。
三、办理渠道

01
线下办理
各缴存单位专管员携带本人身份证明原件、《长沙住房公积金缴存基数调整清册》《长沙住房公积金缴存比例调整表》(各一式两份,均加盖单位公章),到缴存管理部柜台申请办理。