新投三江公馆
售楼处免费咨询热线:400-113-1213(来电尊享优先预约看房)
TOD Vip Tel:4001131213开发商热线【已认证】
楼盘最新介绍:备案价、折扣、学区、地铁、交通、户型图、特价房、优缺点、得房率、优惠活动、小区图片、开盘时间、交房时间、周边配套、最新详情等咨询。
(网上售楼中心 | 欢迎来电咨询 | 请提前预约登记看房 | 提前预约专车一对一接送服务| 1:1销售专业讲解)
温馨提示:看房请提前来电预约享受折扣,谢谢配合!
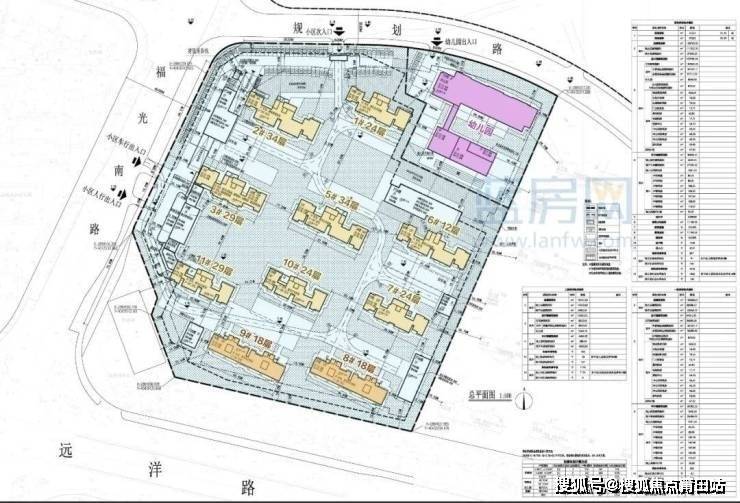
位于晋安区三远片区的新盘——新投·尚峯境(推广名:新投·三江棠境)项目在福州市自然资源与规划局官网上进行批前公示。
新投·尚峯境项目开发商为福州勤晋置业有限公司,日前向资规局申请《建设工程规划许可证》,此次公示时间为3月12日至3月21日。
根据公示的总平面图显示,新投·尚峯境项目用地面积37231㎡(约55.85亩),总建筑面积约13.88万方。社区容积率约2.9,拟规划10栋12-34层住宅及一所幼儿园,住宅总户数约1266户(商品房344户,安商房922户)。
项目拟分两期建设。一期将建设大部分住宅,二期预计将在远洋小学拆除后,建设剩余的1#安置房及幼儿园。
从项目规划建设指标来看,新投·尚峯境项目可售商品住宅计容面积约3.4万方,未来将为片区新增约344套商品房供应。从规划指标位置来看,头排瞰光明港的8#、9#两栋楼预计将作为商品房。
安置型商品房计容面积约6.75万方,预计将供应安置房约922套。
新区集团获三远混商房宅地
安商房占比逾6成
2022年9月,福州三江口建设发展有限责任公司(福州新区集团)以底价9.09亿元竞得宗地2022-46号三远片区项目A1出让地块,成交楼面价8419元/㎡,销售指导均价33000元/㎡。
地块位于晋安区福光南路以东,远洋路以北,出让面积37231㎡(合55.85亩),用途为住宅,容积率2.9以下,限高100米。地块须回购67500㎡安置型商品房(销售均价16700元/㎡)。
2022年12月,项目完成备案,备案名为新投·尚峯境(推广名为新投三江棠境)。去年10月,福州三江口建设发展有限责任公司注册成立福州勤晋置业有限公司,负责该项目开发。
资料显示,福州新区开发投资集团有限公司(简称福州新区集团)成立于2016年4月,是由原马尾新城建设发展有限责任公司为班底组建的一家大型市属国企,注册资本100亿元,目前已成为福州新区开发投资、建设和运营平台。
近年来,福州新区集团秉承市属国企使命,在福州主城区拿地建设开发众多商品房项目,包括三江岚隽(已售罄)、新投映悦湖(晋安涧田湖)、新投映南台(仓山东升)、新投云澜境项目(仓山三江口)、三江棠境(晋安三远)、三江·尚隽(仓山螺洲)等,并择址三江口樟岚片区建设新区·三江大厦作为集团总部。
新区·三江大厦
与此同时,福州新区集团在长乐滨海新城也频频拿地,开发新投商务中心、万新商务区、那迪广场、新投海瑜酒店、新投·时代中心、新投·汇贤雅居、新投·海澜湾、新投·臻樾府、新投·海湾城、福美之光等众多商业商务(含酒店)、商品住宅项目,此外还建设了多个安置房、租赁房等民生保障项目。
晋安三远“新四大金刚”集结
未来将供应天量住宅
三远片区位于晋安东区,是福州市近期启动的连片旧屋区改造重点项目。片区交通配套成熟,北侧是地铁2号线上洋站,第三轮地铁8号线拟从片区内部穿过并设置三远站(以实际批复为准)。
新投三江棠境南侧是光明港及光明港公园,部分楼栋具有良好的面河景观,周边生活配套有宜家商业综合体、光明港温泉水乐园(在建)、格致中学鼓山校区、鼓山苑小学、市一医院鼓山院区(规划)等。此外三远片区内还规划商业、九年一贯制中小学及2所12班幼儿园。
随着去年三远旧改片区最后一幅地块成功拍出,这里也成功集结了福州市建发集团(榕发)、福州工业园区集团(左海)、福州新区集团(新投)、福州建工集团(福厝)四家市属国企。三远片区也成为继仓山白湖北园片区之后,福州又一市属国企“四大金刚”开发版块。
三远“四大金刚”中,一幅为纯安商房项目“东峦郡”(工业园区集团开发),一幅为混合商品房项目“三江·棠境”,安商房占比逾6成(福州新区集团开发),剩下2幅均为纯商品房项目,即福州建工集团“福厝·远山拾里”项目及榕发项目。

据统计,三远旧改出让地块未来将供应近百万方“天量”住宅,其中约60.5万方商品房,另有约33万方安置房。住房体量也超过白湖北园片区(约44.2万方商品房,25万方安置房),成为今后晋安区乃至福州市区最主要供应“粮仓”之一。
目前东区板块新房存量大,整体去化压力较大。周边在售楼盘有保利云上(2.9万/平)、建发美的·君兰和鸣(精装3.2万/平),主要待入市商品房有福厝·远山拾里、新投·三江棠境、左海·望麓、榕发三远项目等。
新投三江公馆
售楼处免费咨询热线:400-113-1213(来电尊享优先预约看房)
TOD Vip Tel:4001131213开发商热线【已认证】
楼盘最新介绍:备案价、折扣、学区、地铁、交通、户型图、特价房、优缺点、得房率、优惠活动、小区图片、开盘时间、交房时间、周边配套、最新详情等咨询。
(网上售楼中心 | 欢迎来电咨询 | 请提前预约登记看房 | 提前预约专车一对一接送服务| 1:1销售专业讲解)
温馨提示:看房请提前来电预约享受折扣,谢谢配合!