首页网站丨榕发北源云筑售楼处电话-楼盘详情-地址-户型-价格
♐福州榕发北源云筑售楼处电话(400-8383-583)◆◆
♐来电预约登记——〢尊享Vip一对一专业置业顾问讲解◆◆
♐郑重承诺:开发商售楼处直销,绝不收取任何费用,中介勿扰!◆◆
♐榕发北源云筑网上售楼中心〢欢迎来电咨询〢提前预约可享内部优惠〢1v1销售专业讲解!◆◆
开发单位:福建榕发置地有限公司
项目备案名:榕发北源云筑(一区)(A1地块)
项目区位:仓山区烟台山板块,北园片区
项目地址:仓山区盖山镇北园路
用途:住宅
批准预售楼号:A11#、A12#
建筑面积:住宅15393.36㎡/128套
预售均价:30000元/㎡
产品面积:114㎡四房/64套、129㎡四房/64套
预售证发布时间:2025-5-26
筑梦未来,榕发·北源云筑:全周期户型,为孩子定制成长空间,让爱伴成长每一步!
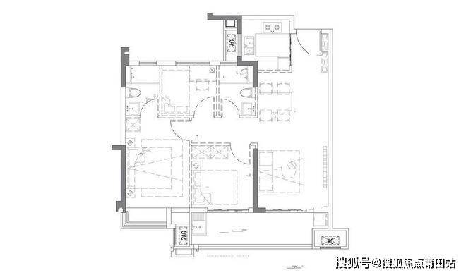
在这个快节奏的时代,家不仅是避风的港湾,更是孩子成长路上的温馨驿站。榕发·北源云筑,以匠心独运的设计理念,将“儿童友好”融入每一寸空间,打造建面约76-148㎡的全生命周期户型,旨在为每一个家庭提供既实用又充满爱的居住环境,尤其是为孩子的成长预留了无限可能。
端户四开间朝南,阳光与爱的双重礼赞
想象一下,清晨的第一缕阳光透过窗户,温柔地唤醒沉睡中的孩子,这便是榕发·北源云筑115㎡与128㎡端户四开间朝南户型的日常。这样的设计,不仅让家中的每一个角落都沐浴在温暖的阳光下,更象征着家庭生活的和谐与幸福。每个家庭成员都能在这样的环境中找到属于自己的小确幸,孩子的成长之路也因此更加明媚。
LDK一体化设计,亲子时光的温馨纽带
LDK一体化设计,即客厅(Living)、餐厅(Dining)与厨房(Kitchen)的无缝连接,让空间更加通透流畅,也极大地提升了家庭成员之间的互动性。在这样的布局下,妈妈可以在厨房忙碌时,轻松关注到客厅玩耍的孩子,无论是亲子阅读还是一起烘焙,都能让亲子时光更加温馨难忘。这种设计,正是榕发·北源云筑对儿童友好理念的深刻诠释。
成长空间,从宽敞开始
特别值得一提的是,建面约115㎡的四房户型,以其约12.2米的超大面宽和约11㎡的阔绰阳台,为家庭生活带来了前所未有的舒适体验。南向次卧同样拥有约11㎡的宽敞空间,即便是孩子逐渐长大,也能保证足够的私人领地。而建面约128㎡的通透大四房,更是配备了7米多的南向大横厅,不仅为家庭聚会提供了充足的场所,更为孩子未来的成长预留了丰富的想象空间。无论是学习区、游戏区还是兴趣角,都能随着孩子的成长灵活调整,真正实现“会长大的全能户型”。
全能户型,爱的延续
在榕发·北源云筑,我们不仅仅是在建造房子,更是在为每一个家庭编织未来的梦想。这里的每一个户型设计,都充分考虑到了家庭成员的不同需求与成长阶段,力求打造一个既满足当下生活需求,又能适应未来变化的居住空间。选择榕发·北源云筑,就是选择了一个能够陪伴孩子成长、见证家庭幸福的温馨家园。
在这个充满爱的社区里,让孩子的童年不再将就,让家的每一个角落都充满成长的足迹。榕发·北源云筑,与您一同守护孩子的美好未来,让爱伴成长每一步!
①取证价格:本次为榕发北源云筑首批住宅取证,整体取证均价30000元/㎡,其中A-11#楼取证价格30000元/㎡,A-12#楼取证价格30000元/㎡。
②取证产品:项目取证楼栋为16层小高层,公摊23%。
114平四房产品位于中间户,一梯一户,公摊23%,取证均价29472元/㎡,楼层差200元/平;预计销售价为2.6万元/㎡,总价290-310万/套。
128平四房产品位于端头户,一梯一户,公摊23%,取证均价30482元/㎡,楼层差200元/平,东西朝向差1200元/平;预计销售价为2.7万元/㎡,总价330-350万/套。
首页网站丨榕发北源云筑售楼处电话-楼盘详情-地址-户型-价格
♐福州榕发北源云筑售楼处电话(400-8383-583)◆◆
♐来电预约登记——〢尊享Vip一对一专业置业顾问讲解◆◆
♐郑重承诺:开发商售楼处直销,绝不收取任何费用,中介勿扰!◆◆
♐榕发北源云筑网上售楼中心〢欢迎来电咨询〢提前预约可享内部优惠〢1v1销售专业讲解!◆◆

帝封江↔机场(新区段)票价13元

01
滨海快线主城区段票价方案
采用与地铁线路相同的里程分段计价票制,即:
起步价5公里(含)2元。超过5公里后,5-15公里(含),按每5公里加收1元计价(不足5公里按5公里计价);15-29公里(含),按每7公里加收1元计价(不足7公里按7公里计价);29公里以上,按每9公里加收1元计价(不足9公里按9公里计价)。
按上述票制,从福州火车站至东门、水部均为2元,从福州火车站至南公园、三叉街均为3元,从福州火车站至帝封江站票价为4元。
02
滨海快线新区段票价方案
采用固定费率计价票制。具体为:该区段内乘车票价=乘车里程×0.3元/人·公里,票价按元计价,不足1元的部分四舍五入。