海南海棠墅国际度假康养中心
海棠墅国际度假康养中心售楼处24小时电话:400 902 7191
线上预约看房(享)专属优惠福利
项目交房时间、价格、户型、学校咨询
三亚·海棠湾,全国知名“国家海岸”,建设三大国家级品牌:国际顶级品牌滨海酒店带、世界级游艇休闲区、国际级医疗及康养基地;对标迈阿密、黄金海岸等世界滨海度假区,打造代表中国热带滨海旅游新品牌!北纬18°——位居北纬18°黄金度假带,堪比马尔代夫、夏威夷、巴厘岛等颐养度假胜地,海岸线22公里,平均气温25℃,全年日照降雨适中,是海南岛中当之无愧的珍宝之湾。
【交通】·距离亚龙湾高铁站约16公里·距离三亚市中心约28公里·距离凤凰机场约35公里
【景点】风景名胜众多,无尽海岸风光蜈支洲岛5A风景区、后海、妈祖庙、椰子洲岛、南田温泉、亚特兰蒂斯水世界、海昌梦幻海洋不夜城、HELLO KITTY主题乐园(在建中)等。
楼盘开盘时间、交房时间、房价、户型、楼盘详情、价格、售楼处地址、首页网站、销售中心电话、楼盘地址、户型图、交通、备案价、最新优惠、营销中心电话、得房率、周边配套等详情咨询售楼处电话:400 902 7191
【医疗】毗邻301医院,鼎级医疗资源荟萃紧邻301解放军总医院海南医院、近享国寿嘉园康复医院、广安门医院、北大口腔等。
【教育】中国人民大学附属中学三亚学校等。
【购物】亚洲最大CDF单体免税店、总建筑约226万方华润超级万象城(规划中)、SKP商场(规划中)等。
【酒店】亚特兰蒂斯、艾迪逊、洲际、威斯汀、香格里拉、华尔道夫、文华东方、四季等35家一线滨海五星级酒店。
海棠墅,全时家庭康养度假目的地
【项目概况】开发商:四川宏凌集团占地面积:249亩建筑面积:约99000㎡土地出让时间:2016年3月28日交房时间:2023年09月30日容积率:一期0.6绿化率:40%产权年限:40年总楼栋户数:14栋180户(叠拼墅)总层高:4层 (1梯2户)每层层高:1-3层3.6米,4层3.5米朝向:南北通透物业:中海物业物业费:叠拼6元/平/月 独栋别墅11.8元/平/月
低密社区,天地院墅,收藏美好时光健康颐养——紧邻301解放军医院海南分院,全岛绩优医养资源聚集地
低密纯粹——全板式叠拼、独栋,高阶高知康养社区,使用群体高度纯粹
奢享产品——首批次约80.94-92.13㎡ 叠墅,下叠前后双花园,上叠超大星空露台
缤纷社群——1个专属生活会馆,海棠荟+海棠社2大社群平台,丰富的社群活动
定制服务——联袂中海物业,围绕健康度假定制六大服务体系(共81项),全维度呵护
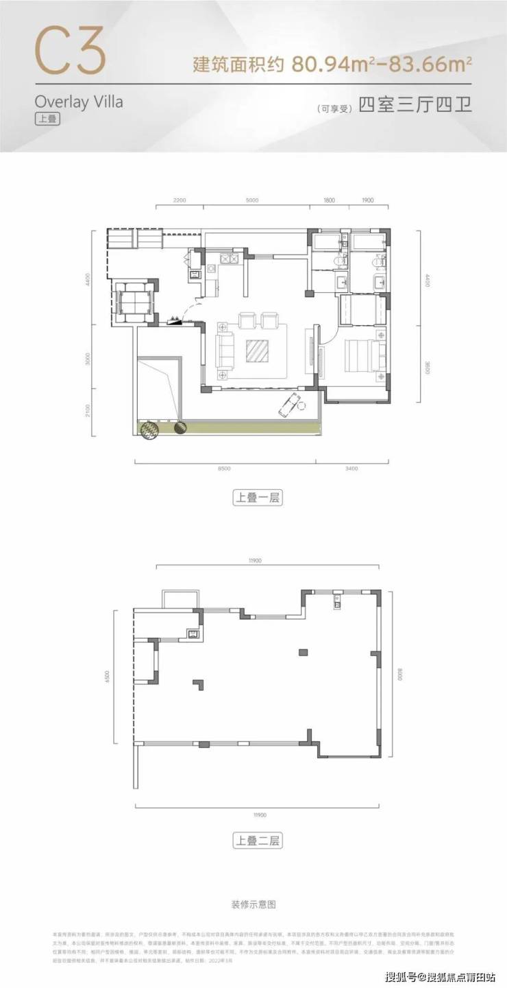
·叠墅--C户型
凝聚着生活归属感和奢享感
作为三亚度假康养生活的重要载体
海棠墅·国际度假康养中心
融汇生态、景观、文娱、商业等世界鼎配资源
对位时代人物更高级的生活方式与品味
建面约79-150㎡臻稀独栋康养空间
建面约80-92㎡墅级洋房康养空间
实景呈现,诚邀亲临品鉴
海南海棠墅国际度假康养中心
海棠墅国际度假康养中心售楼处24小时电话:400 902 7191
线上预约看房(享)专属优惠福利
项目交房时间、价格、户型、学校咨询
海棠墅国际度假康养中心楼盘开盘时间、交房时间、房价、户型、楼盘详情、价格、售楼处地址、首页网站、销售中心电话、楼盘地址、户型图、交通、备案价、最新优惠、营销中心电话、得房率、周边配套等详情咨询售楼处电话:400 902 7191
免责声明:部分信息来源于网络,如果侵权,请联系及时删除,联系电话:400 902 7191
房产信息:
逆势引领!广东保利获广州半年度房企权益业绩桂冠
2024年上半年,广州楼市政策持续优化宽松,1月27日出台优化调整限购政策,限购区域内购买120㎡以上住房不纳入限购;5.28新政持续发力,外地户籍在限购区域购房社保证明降至6个月,首套住房首付比例降至15%,二套降至25%,取消房贷利率下限等“一揽子”政策持续加码。
在多项利好政策带动下,广州楼市成交氛围明显改善,到访量及成交量均有明显转变,购房者入市步伐也在加快。尤其5.28新政落地实施后,当周新房网签量环比上升近30%,5月28日-6月27日,日均网签套数达224套,相比新政前一月日均套数163套上升了61套。
中指数据监测显示,广州商品住宅成交已连续上升2月,其中5月成交面积58.7万㎡,环比上升9.4%;6月成交继续扩大,成交面积80.9万㎡,环比上升37.8%,成交量创近一年以来新高。

数据来源:中指数据CREIS(点击查看)
当前广州楼市在新政利好持续加码下逐步回升,各大房企也是借助政策利好及自身产品优势不断加大营销力度,加快销售去化速度。从1-6月各大房企的销售业绩来看,广东保利凭借前瞻性战略布局及持续打造多个热销项目,稳居广州上半年房地产企业权益销售榜第一。
销售业绩领先,持续巩固广州市场地位
广东保利从1995年在广州开发的第一个项目保利红棉花园,再到琶洲旧改打造全国旧改典范,广东保利持续深耕广州,开发了一个个深受市场及客户认可的项目,销售业绩多年来处于领先地位,销售业绩整体保持上升趋势,近两年受房地产行业调整影响,销售业绩较2021年高点有所回落,但整体仍保持在高位运行。2023年权益销售金额为399.1亿元,同比上升7%。
数据来源:中指数据CREIS(点击查看)
2024年上半年,广州市场整体虽然仍处在筑底阶段,市场去化压力较大,但广东保利依旧表现出色,逆势保持领先优势,以192.7亿元的权益销售金额及43.8万㎡的权益销售面积,双双位居广州市2024年上半年房企权益销售额及销售面积榜首,继续领跑广州市场。
从市场份额来看,2024年上半年,广东保利权益金额占TOP3企业的43.2%,占TOP10企业的27%,占TOP20企业的21.7%,占全市企业的15.2%,相比2023年末提升1.9个百分点。
广东保利在广州市场能够取得如此优异的销售业绩,离不开其背后多个热销项目的业绩贡献。如持续热销项目保利天瑞、保利和颂、中海保利朗阅,以及上半年纯新项目入市的保利云境、保利燕语堂悦、保利招商华发·中央公馆等热销楼盘,其去化速度均位居各区域前列。
从上半年广州在售项目销售金额排名来看,TOP20项目中就有6个来自广东保利,且多个项目成交均位列区域TOP1。保利天瑞成交套数及成交金额均位居天河区第一,遥遥领先其它项目;保利和颂成交套数及成交面积均位居荔湾区第一;保利云境成交套数及成交金额均位居白云区第一;和府花园成交面积及成交金额均位居从化区第一。
数据来源:中指数据CREIS(点击查看)
此外,广东保利在广州各区销售业绩表现突出,在天河区、荔湾区、从化区销售额及销售面积均双双高居榜首;黄埔区销售金额第一,销售面积第三;海珠、白云、番禺等区域销售金额均位列前三。亮眼的销售业绩凸显了广东保利在广州的实力地位及出色的运营能力。
精准布局扩土储, 助力业绩持续领先
广东保利在广州市场能够保持业绩强势领跑,离不开其自身战略优势及精准的布局策略。近几年来,广州房地产市场呈现出明显的分化趋势,中心区域成交占比明显提升,拥有好地段、好产品、性价比高的项目去化速度快。
面对行业调整变化,以及市场分化趋势,广东保利始终坚持稳健高质发展,紧贴市场趋势,聚焦核心区域及核心板块,加大对核心区域优质地块的储备,持续打造一个个受市场追捧的热销项目。
2023年下半年以来,广东保利积极把握土地市场结构性机会,通过招拍挂的方式在广州拿下7宗涉宅用地,拿地权益金额188.2亿元,高居拿地数量及拿地金额榜首。
数据来源:中指数据CREIS(点击查看)
从拿地具体情况来看,有6宗地块均位于核心区域主城区,1宗位于花都新华街核心,均为优质地块。其中天河区员村一横路地块位于珠江新城东部板块,是近年来少有的稀缺地块,项目于今年3月入市就受到市场和客户的追捧。白云区鹤联街东段地块、海珠区东方红地块、黄埔区图书馆地块均于今年上半年成功入市,项目案名分别为保利云境、保利燕语堂悦、保利招商华发中央公馆,并创造了开盘即热销的局面。良好的市场反馈体现了广东保利精准把控当前市场趋势以及精准落子布局高能级、高潜力区域及板块,扩大优质土储,并为企业销售业绩提供稳定保障。
迭代升级产品与服务,助力品质人居美好生活
随着房地产行业进入高质量发展的“品质时代”,行业竞争态势已发生深刻改变,这也要求房地产开发企业必须与时俱进,深刻洞悉市场需求变化,持续迭代升级产品与服务,提升品质,为客户提供更美好的居住体验。
2023年9月,保利发展全新推出“新人文社区”产品理念和“天悦人和”产品服务体系,深度挖掘房地产峰值时代的结构性机会,持续打造强大产品力、服务力,推动品质提升,引领行业发展。
保利发展的“人文社区”是围绕人与人、人与自然、人与城市的全新交互共同体,以更贴合客户需求的产品与服务。以6大产品内核、3大服务场景,全力打造高品质中国人居新模式,在场景营造、邻里互动、生活方式都体现了保利发展对于人的关怀。比如对健康人居的持续研发、对智慧社区和家居科技的积极实践,打造更健康、更科技、更友好的家;又如构建I trust物业场景体系,以安全、便捷、专业、意趣、透明、和谐来引领行业服务的新标准,打造有人情味、艺术性、尺度感的人文社区服务。
作为保利发展深耕大本营广州房地产市场的一级平台公司,广东保利极响应集团战略升级,并结合广州城市的风土人情、人文偏好和差异化的居住需求,不断迭代升级,强化产品力,将人文注入品质生活,打造出具有地域性、差异化的引领性人居标杆。
2024年上半年,“天悦和”产品系的代表新作都荟天珺、燕语堂悦、保利琅悦、滨江和著等集体亮相广州。其中备受市场瞩目的保利燕语堂悦是海珠首座“悦”字系,脉承保利“悦”系高端血统,以岭南四大园林为蓝本,在产品打磨中融入了礼序尊崇、东方意境、雅趣生活等中式元素,打造出一个简约大气的居住氛围。项目以“悦"字系豪宅产品焕新高品质人居,打造广州全新悦字系新中式大宅。项目一经亮相即掀起全城广泛关注,首开即取得超百套的去化,并夺得广州5月商品住宅成交套数冠军。此外,保利·华创都荟天珺、保利琅悦、滨江和著等项目也受到市场的高度认可及欢迎。
保利燕语堂悦效果图
结语:
2024上半年,广东保利凭借持续深耕精准布局及持续迭代升级产品体系,多个热销项目持续绽放,为其广州销售业绩奠定了坚实的基础,市场领先地位进一步巩固。展望未来,广东保利将坚持一贯打造精品的原则,以“和者筑善”的品牌理念不断提升产品和服务品质,用人文社区定义人居新高度, 不断打造“好产品、好服务、好生活”,以满足人们对美好生活的需求。