◈万科未来之光售楼处电话-2025首页网站-万科未来之光售楼处欢迎您|楼盘详情/样板间/价格/户型/容积率/小区环境/售楼处地址@营销中心24小时热线

钦州楼市发布

2025-07-02 10:15:18

购房群

买房如何避坑,加入购房群,看看他们怎么说

立即进群

万科未来之光首页网站最新介绍:房价、折扣、户型图、特价房源、得房率、优惠活动、开盘时间、交房时间、周边配套、最新详情等咨询。

万科未来之光售楼处电话☎:400 065 2898✨✨

万科未来之光售楼中心24小时电话☎:400 065 2898【营销中心】

温馨提示:过来看房请记得提前来电预约,尊享售楼处1v1销售专业讲解,感谢您的来电!

��本项目暂不接受临时到访,过来参观样板房请记得提前来电预约!✨✨

��为您安排楼盘现场销售全程接待并讲解,给您更贴心的看房体验!✨✨

万科尖岗山新项目更名为|万科未来之光

将推73-125㎡3-4房户型,约1700套,

深圳【万科未来之光】

💥宝安尖岗山纯豪宅区,精装交付💥

➤万科品牌,万科物业。

项目板块:宝安-尖岗山

占地面积:74085㎡

建筑面积:215570㎡

规划户数:1700户

产品:约73-125㎡三至四房

容积率:2.91

物业类型:小高层、洋房

装修情况:精装修

未来之光家园

万科安居共筑未来社区

宝安&南山双核芯·万科未来社区2.0

精研品质三四房

========= 项目基本信息 ==========

总占地面积:约7.4万㎡

总建筑面积:约30万㎡

容积率:2.91

开发商:深圳安万置业有限公司

物业公司:深圳市万科物业服务有限公司

位置:深圳·宝安新安·广盛路与广泰路交汇处(宝安公园旁)

对话世界的深圳高度

·深圳特区&先行示范区&粤港澳大湾区“三区驱动”

·擎领大湾区“9+2”城市群,汇聚时代机遇

宝安&南山双区驱动

·西部湾区城市带,近邻南山科技园、留仙洞总部基地、宝安中心、前海自贸区等片区,集合向西发展带优质城市资源

高新产业集群的未来人居住区

一山两级 国家级产业集聚区,超30万高新人群引领片区新生。

海陆空轨立体交通,高效互联大湾区

2机场:深圳宝安国际机场、香港机场;

3码头:大铲湾码头、深圳机场码头、固戍码头。

3地铁&干道接驳 通勤快人一步

三轨并联:

·步行约1.2.km可达5号线兴东站,4站宝安中心站、2站西丽站;

·12号线(在建中),上川站约1.9km;

·15号线(规划中),宝安公园站约900米。

干道接驳 :

·京港澳高速入口在旁,南光高速、广深公路、创业二路等路网环绕;一局王者通勤南山科技园,工作与生活高效往来!

12年书香环绕 护航闪光未来

片区优质学府云集,全家每天多睡一小时

项目代建幼儿园,3km内南方科技大学附属中学宝安学校(在建中)、宝安中学(集团)实验学校、新安中学(集团)外国语学校、曦城协同学校等学府汇聚。

南方科技大学附属中学宝安学校 9月开学在即

双一流名校品牌背书(南科大:2023年QS世界大学排名中国内地高校第11,位列广东省内第1)

科创教学 名师护航:42班九年一贯制名校,清华/剑桥师资汇聚,焕新片区教育格局

离城不离尘的安家优选胜地

·背靠尖岗山,不见高楼,绿树成荫,私享低密野奢生活

·6山2水4公园环绕,超76%森林覆盖率,富氧更健康

缤纷活力街区,下楼即享城市烟火

·社区自带建面约1万㎡商业,全系配套满足一站式生活需求。

·约3~5km内,中洲购物中心、宝安万达广场\海雅缤纷城、壹方城等多商圈环绕,缤纷生活触手可及!

万科&安居 强强联袂的稳稳幸福

·38载万科,更懂深圳更懂筑家

·深圳市人才安居集团联合开发建设,为人才,建好家

万科物业 三十余载行业领跑者

·32年服务经验沉淀,连续10年蝉联中国物业管理综合第一

·万科物业在深圳,至今服务16万余户家庭,让更多用户体验物业服务之美好

宝安&南山双核芯·万科S级未来社区

精研品质三四房,为追光深圳的奋斗者定制理想的家

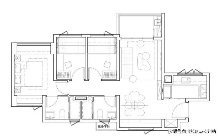
06

-户型图-

万科凭借多年地产开发经验,再次展现了强大的户型设计能力,73-80㎡做了三房设计,100-115-125㎡四房,小高层、洋房,楼体建筑不高,也为高使用率提供了基础条件

▲73㎡三房两厅一卫

▲80㎡三房两厅两卫

▲80㎡三房两厅两卫

▲100㎡四房两厅两卫

▲115㎡四房两厅两卫

✨✨万科未来之光营销中心电话☎:400 065 2898✨✨

✨✨万科未来之光开发商电话☎:400 065 2898✨✨

免责声明:部分信息来源于网络,如果侵权,请联系及时删除

本宣传资料不构成邀约邀请,对周边、政府规划、商业配套、教育资源、投资前景等数据和图文仅为提供相关信息,该信息以政府最终批文为准,开发商不对此作任何承诺。买卖双方的权利义务以双方签订的买卖合同约定及附件、实际交付为准,本公司保留对宣传资料修改的权利,敬请留意最新资料。联系号码☎:400 065 2898✨

全部

相关资讯

报名成功
稍后会有专业的置业顾问联系您
返回楼盘

频道导航

返回首页

看房小程序

APP下载

电话拨通后,请您手动拨打分机号

确定拨打电话

电话号码:

分机号:(可能需要拨分机号)