珠海第一个四代宅
全球首个无人机配送社区
华发在唐家湾后环板块全新住宅项目
超新规·超大露台·超100%实得率
首发地块基础信息——
用地面积:约4.5万方
总建筑面积:约16.2万方
住宅:1212户
绿化率:35%
交付标准:精装交付
物业公司:华发集团旗下物业
华发珠海湾
珠海首个拥有环绕式三错层无干扰超大露台和无人机配送的科技+四代宅项目。
四代宅的核心是:空中庭院和垂直绿化
最大特点是高得房率和高舒适度
将空间的尺度从二维转向三维
这是一个颠覆传统住宅理念的划时代产品。

全球首个无人机配送社区
居家智享直送服务,实现最后100米的智能物流配送📦
▪户户专属无人机停机坪
▪超500平无人机起降场
环绕式无干扰三错层超大露台
超100%实得率
采用ykk三玻量腔系统门窗,隔声效果更好、保温性能更高,打造高颜值科技节能的新一代精工立面。
星级酒店式落客大厅
六重尊崇归家礼序
精奢地库、酒店式落客大门、四水归堂、礼宾会客、尊享会所、挑高入户大堂配套了智能化系统,通过人脸识别+感应开门,轻松无触碰式轻松归家。
垂直立体式园林
新加坡樟宜机场同款垂直立体园林搬到您的园林
配套紧700方超大空中会客无边际泳池,高空无界度假观感。
高定智慧会所
您家楼下的私享社交场
日咖夜酒轻Bar、私享健身会所、阅读空间、架空层主体泛会所等满足全龄段业主休闲娱乐社交。
社区配套
配套建设1所幼儿园、运动公园(滑板场、篮球场、网球场、无人机停机坪)
华发珠海湾与以往开发的普通住宅,在多个方面都有建设性的突破。
其一,每户赠送约30㎡的大露台,并打造成无干扰的错层设计,如同自带院子,在家就能露营,还采用全面屏的玻璃幕墙,客厅能做到3面采光,视野景观是普通住宅的3倍效果,更加极致
其二,是采用全面屏的玻璃幕墙,客厅能做到3面采光,视野景观是普通住宅的3倍效果,更加极致。
270°环幕落地窗设计
客厅采用270°环幕落地窗设计,给人以广角视野,让家瞬间变得通透高级,闲坐其中,朝朝暮暮,四季美景,举目可得,充分呈现了大平层空间的壮丽震撼
其三,是户型格局更绝,完美融合了横厅与竖厅的优势!
除了上面提到的全面屏采光,视野效果加倍,这里重点说下户型格局。
以项目约230㎡的户型产品为例,餐客厅为时下流行的大横厅设计,但以往的横厅户型,会与起居或功能空间放在一起,牺牲掉部分私密性。
而这个“未来式”户型,绝就绝在,直接将起居区搬到了另一边,完美结合了竖厅的动静分离。做到尺度与私密兼具。
华发珠海湾,除了看不见的“黑科技”,项目更是以“环绕式、无干扰、三层错层”超大露台和无人机专用停机坪,打开家的边界,让想象与现实更进一步
据悉华发将携手华为、顺丰、亿航等头部企业,将鸿蒙系统、无人机配送等AI时代科技植入新一代好房子,建造珠海湾
智慧无人机配送服务,智能家居的场景应用、以及养老配套服务等这些附加价值。
未来,珠海这样的黑科技现代住宅,一定能卷起市场颠覆性的浪潮。
全屋智能家居体系
华发与华为强强联合之下研发的全屋智能家居体系,将以数字家庭控制平台及可扩展的鸿蒙生态系统,360°惊艳你的生活。
未来,你家每一个功能区都可相互联动;玄关、客餐厅、卧室、厨房等11个功能空间的9大类102个智能设备,覆盖回家、离家、工作、学习、娱乐、烹饪、睡眠、起床等36个智慧生活场景...只要你想,就能切换到你需要的模式。
APP控制影音设备、AI智能语音控制晾衣架升降、人体感应触发开关灯...看似不可思议的事,在华发“科技+”四代宅里,只不过是“标配”。
智慧住宅最显著的亮点便是实用率超100%,此外还将打造空中花园,形成户户有花园庭院的模式,使每一户的采光面极为阔绰。
华发股份就是这样的企业——
坚信科技是这个时代最大的红利,以“数字化、智慧化、绿色化、产业化”四化为技术支撑,全面建设“安全、舒适、绿色、智慧”的好房子。
围绕数字智慧社区、智能家居、超高实得率、智慧无人机服务、专享社区养老、绿色低碳等多个维度,华发股份开启了全面创新迭代。
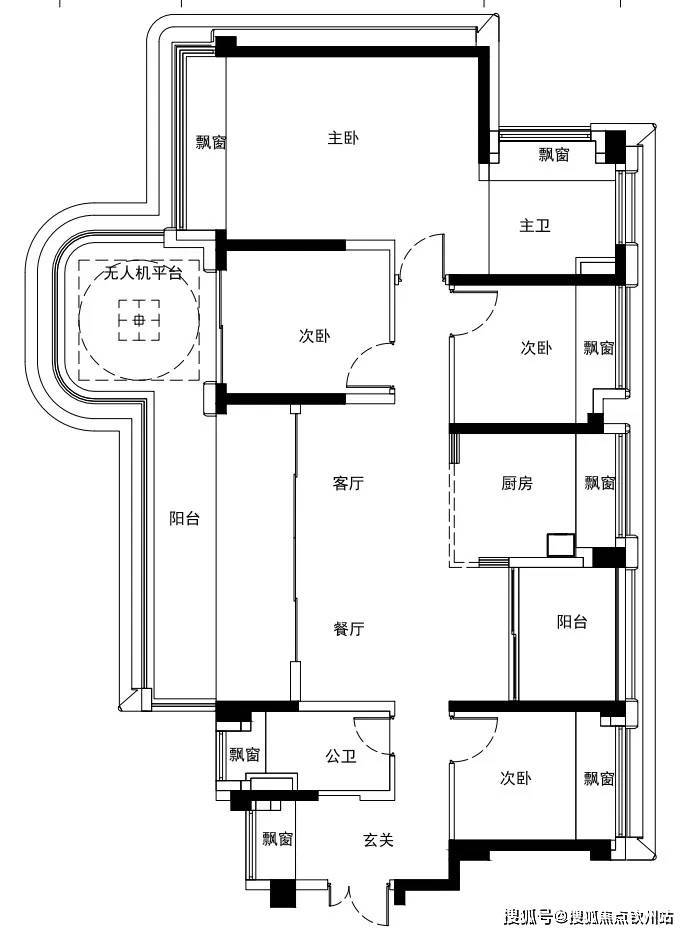
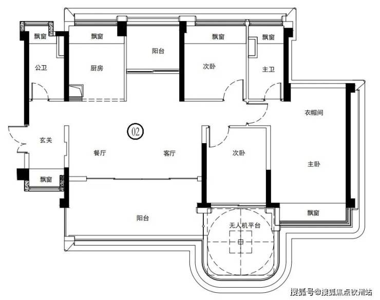
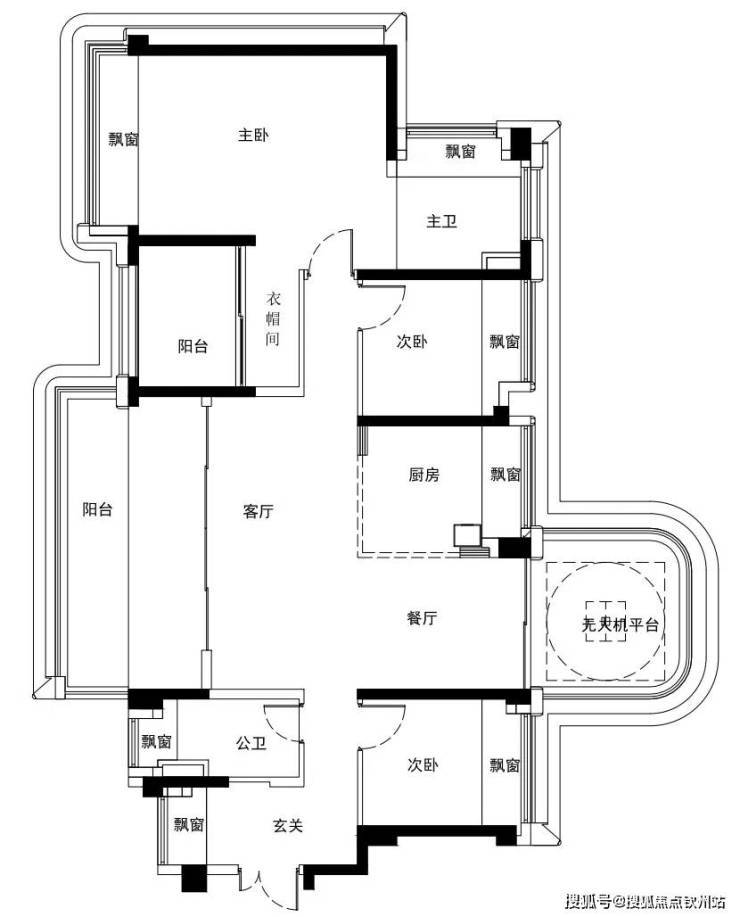
产品系列:
为凸显四代宅的核心差异价值,将露台拆开分户介绍,拥有超高的露台赠送
楼体外立面在美感上做了错层设计,相当于一个户型有2种不同的选择
A户型-88方三房两厅两卫
偶数层:
奇数层:
B户型-115方三房两厅两卫
偶数层:
奇数层:
C1户型-125方三房两厅两卫
偶数层:
奇数层:
C2户型-125方四房两厅两卫
偶数层:
奇数层:
D户型-142方四房两厅两卫
偶数层:
奇数层:
开发商售楼处热线:400 033 9667 【营销中心】
本文内容为广告推广,涉及房价或现有房源可能出现变更,请致电详询并以售楼部为准
免责声明:本文如无意中侵犯了某方的知识产权告知即删,部分内容图片可能来源于网络,无法核实其真实出处,如涉及侵权请联系本网站删除!!!