…鸿荣源·珈誉玖玺……鸿荣源·珈誉玖玺…

最新消息
最新消息:【珈誉玖玺】可0首付
全新7栋震撼登场 看山/湖/海/商业/园林
明星王牌户型 首发即绝版 价格仅限加推当天
折扣还是和之前一样0.99*0.99*0.96*0.99≈0.9315折(约93折)(另外还有5万返现,可直接抵扣房价,还有额外返现),折后均价4.8万/㎡,总价422-571万。
各户型折后价格如下:
94㎡南向性价比三房两卫,竖厅格局,折后422-447万;
98㎡南北通大横厅三房两卫,横厅格局,折后442-472万;
109㎡双龙抱珠四房两卫,折后552-571万;
新品便宜5000/㎡
新品94㎡总价比93㎡低30万+
新品98㎡总价比97㎡低40万+
新品109㎡总价比110㎡低50万+
还有一则震撼消息:隔壁【鸿荣源·珈誉府】一区还有一批保留样板房工65套,带装修全部免费送,同户型一口价,需要登记才有资格选房
约77㎡3房1卫:总价330万
约85㎡3房2卫,总价362万
约86㎡(横厅)3房2卫,总价374万
约94㎡3房2卫,总价405/420万
约94㎡(横厅)3房2卫,总价440万
约105㎡4房2卫,总价525万
约153㎡3房2卫,总价815万
约151㎡5房2卫,总价975万
往期销售:
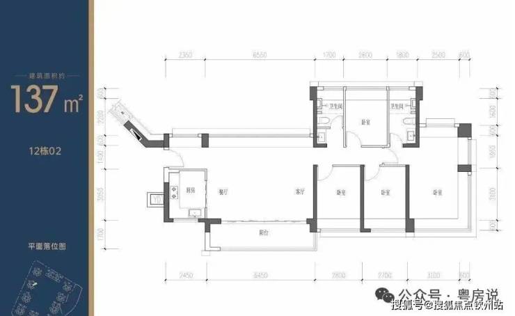
☆ 1、项目2024年10月13日推出的6栋,面积为169-199㎡4房和12栋的124-137㎡4房,6栋备案均价6.2万,12栋备案均价5.6万,开盘有93折优惠,首开当天去化9成。
☆ 2、2024年11月16日加推8栋的122㎡-126㎡4房,共87套。备案均价5.69万带精装,开盘93折优惠,折后均价5.29万。
☆ 3、今年开始推售小户型,3月1日加推10栋2单元75-84-94㎡3房和12栋78-97㎡3房,约339套住宅。开盘有93折优惠,折后均价约4.85万。
约75㎡:单价约4.70-4.91万/㎡,总价约354-370万
约78㎡:单价约4.68-4.95万/㎡,总价约367-388万
约84㎡:单价约4.64-4.93万/㎡,总价约389-413万
约94㎡:单价约5.01-5.17万/㎡,总价约473-488万
约97㎡:单价约5.03-5.25万/㎡,总价约490-511万。
☆ 4、3月22日加推9栋1单元,面积83㎡3房-89㎡3房-110㎡4房,约315套住宅。开盘有93折优惠。
约83㎡:单价约4.61-5.23万/㎡,总价约383-435万
约89㎡:单价约4.87-5.35万/㎡,总价约435-478万
约110㎡:单价约5.5-5.68万/㎡,总价约608-627万
☆ 5、4月26日加推13栋,面积77-90-93平,共266套,均为3房。
备案均价5.18万带精装,开盘有93折优惠,折后均价约4.8万,折后总价346万起。
约77㎡:单价约4.47-4.78万/㎡,总价约346-370万
约90㎡:单价约4.56-4.83万/㎡,总价约411-435万
约93㎡:单价约4.94-5.21万/㎡,总价约457-482万
☆ 6、7月12日加推10栋1单元,面积84㎡南向3房跟137㎡4房,价格如下:
137㎡(四房两厅两卫):单价约5.2-5.5万,总价约711-750万
84㎡(三房两厅两卫):单价约4.5-4.8万,总价约380-405万
一、项目介绍
鸿荣源·珈誉府,位于宝安大道于凤塘大道交汇处东南侧,该项目原是"塘尾片区城市更新单元“,由鸿荣源集团一手打造,也号称是第二个壹城中心升级版,地处沙井核心板块,周边1公里内涵盖3个重量级商业(万丰海岸城购物中心+鸿荣源壹方奥特莱斯+华强购物中心),11号地铁线”塘尾站“距离约300米。
珈誉府总建面约248万㎡,将打造近8000套住宅,其中住宅面积70万㎡,商业面积50万㎡,共分4期开发,是鸿荣源集团全新开发的地标级综合体大盘,涵盖高端住宅、商业办公、星级酒店、优质教育、大型购物中心等业态。
其中三期鸿荣源·珈誉玖玺,总占地面积约4.79万㎡,总建筑面积约40.53万㎡,计容建筑面积约27.63万㎡,容积率5.42,绿化率40%,共由10栋总高31-48F住宅组成,其中6栋1/2单元住宅44F,7栋/8栋住宅48F,9栋1单元住宅46F,9栋2单元住宅45F,10栋1单元住宅47F,10栋2单元住宅31F,11栋住宅46F,12栋/13栋住宅48F。
总规划2479户,全部都是商品房,地下室有3层,规划停车位2795个,车位占比约1:1.127。
二、项目基础数据
【项目基础数据】
【开发商】鸿荣源集团
【占地面积】总4.79万㎡
【建筑面积】总40.5万㎡
【总户数】2479户
【户型面积】加推10栋约84-137㎡3-5房
【停车位】2795个,车位占比约1:1.127
【物业及物业费】鸿荣源物业,5.9元/㎡
【绿化率】约40%
【容积率】5.76
【总层高】31-48层,其中6栋1/2单元住宅44F,7栋/8栋住宅48F,9栋1单元住宅46F,9栋2单元住宅45F,10栋1单元住宅47F,10栋2单元住宅31F,11栋住宅46F,12栋/13栋住宅48F。
【梯户比】2T2户/3T5户/3T6户/3T7户
【交楼时间】预计2026年,简装交房
【产权年限】70年(2022.5-2092.5)
【项目位置】宝安区宝安大道与凤塘大道交汇(11号线塘尾地铁站)
三、项目户型图
01
项目平面图
02
项目户型介绍
77㎡的3房2厅1卫,经典的竖厅户型,动静分区,S型冰箱位,餐客厅一体,客厅开间约3.1米,三个房间其中一个次卧和主卧都是双飘窗。
主要分布在13栋的06/07户型,西南朝向看珈誉府6区。
90㎡的3房2厅2卫,南北通大横厅户型,动静分区全明户型,U型厨房,餐客厅一体,客厅开间约5.9米,三个房间和客厅都带大飘窗,主卧双飘窗带独立卫生间。
主要分布在13栋的01/02户型,01户型是东北朝向(阳台)看小区花园,02户型是西北朝向(阳台)看小区花园。
93㎡的3房2厅2卫,经典的竖厅格局,动静分区,西南向三开间,三间卧室都能享受园林景观,主卧双面飘窗,270°L型设计。
主要分布在13栋的03/05户型,都是东南朝向看小区花园。
94㎡的3房2厅2卫,竖厅格局,客厅3.4米开间,三开间朝南,分别做到了主卧13.55㎡/次卧9.45㎡/次卧7.28㎡(含墙体飘窗),U型厨房,得房率约74%(不含赠送),加上赠送后得房率约84.22%。
98㎡的3房2厅2卫,横厅南北通透格局,客餐厅6.2米开间,分别做到了主卧15.27㎡/次卧8.58㎡/次卧7.92㎡(含墙体飘窗),L型厨房,得房率约74%(不含赠送),加上赠送后得房率约93.85%。
109㎡的4房2厅2卫,竖厅双龙抱珠格局,客厅3.5米开间,主卧270°转角飘窗,分别做到了主卧15.45㎡/次卧13.57㎡/次卧9.31㎡/次卧6.96m²(含墙体飘窗),U型厨房,房率约74%(不含赠送),加上赠送后得房率约89.34%。
四、交通出行
鸿荣源珈誉玖玺家门口就是宝安大道及凤塘大道等交通主干道,
11号地铁线“塘尾站”,距离约300米,4站到宝安机场,6站到宝中,7站到前海湾,8站到南山,11站到车公庙。鸿荣源珈誉玖玺家门口就是宝安大道及凤塘大道等交通主干道。
五、商业配套
项目自带50万㎡奥特莱斯商业,汇集了壹方+奥莱的商业模式,在项目北侧还有万丰海岸城近18万㎡的购物中心,这个片区以后也将会是整个沙井最高端最集中的商业购物中心。
六、周边学校
项目旁边,所规划的2个教育用地,已经正式出了红头文件,为深圳外国语宝安学校(集团)南校区,分别为1所63班九年一贯制学校,1所为27班九年一贯制学校(珈誉玖玺旁边),另外根据宝安区2024年最新的学区划分:
小学学区划分在桥头学校小学部、塘尾万里学校小学部、滨海小学(集团)福桥小学、立新湖学校小学部、凤凰学校小学部、滨海小学(集团)文昌小学;
初中学区划分在桥头学校初中部、塘尾万里学校初中部、立新湖学校初中部、福永中学、新安中学(集团)第二外国语学校(初中部)、航星学校初中部、凤凰学校初中部。
虽然同为宝安鸿荣源珈誉府项目,但是因为社区不同,学区划分是有明显区别的,旁边规划的深圳外国语宝安学校南校区仅27个班,后期录取积分应该会非常紧张,另外距离约900米的立新湖学校,在2024年小一的录取积分是86.8分,初一的录取积分是81分,塘尾万里学校在2024年的小一录取积分是100.5分,初一录取积分是94.2分;
按照宝安区教育局公布的积分政策,只要是深圳户籍(其它区)+学区内商品房,基础分100分,深圳宝安户籍+学区内商品房,基础分105分。

(*最终的学区划分、入学条件、招生计划等均以教育主管部门颁布的政策和学校的通知为准)
七、休闲配套
1公里范围内万丰湖湿地公园、立新湖公园等公园环绕,依然享受城市森意。
近新桥文体中心、沙井文体中心(建设中),高标人文配置,悦享品质生活。