鸿荣源尚云售楼处首页网站-鸿荣源尚云欢迎您-鸿荣源尚云楼盘详情/户型/价格2025

钦州楼市发布

2025-06-09 14:40:07

购房群

买房如何避坑,加入购房群,看看他们怎么说

立即进群

🌈鸿荣源尚云🌈

🌈鸿荣源尚云售楼处电话:400-033-1856【已认证】🌈

🌈Vip贵宾置业===欢迎来电预约尊享内部折扣===匠心钜制恭迎品鉴🌈

【鸿荣源尚云】丨楼盘详情丨价格丨更多优惠丨欢迎致电丨诚邀品鉴

✅鸿荣源尚云售楼处:400-033-1856【24小时预约热线】

✅鸿荣源尚云售楼处电话:400-033-1856【来电可享受优惠】

✅鸿荣源尚云营销中心电话400-033-1856【一对一热情服务】

✅本项目暂不接受临时到访,过来参观样板房请记得提前来电预约!

◆开发商营销中心诚挚邀请,一键预约,尊享内部独家折扣!匠心独运的精品项目,恭候您的品鉴与选择。

温馨提示:看房请提前来电预约,谢谢您的配合!(中介勿扰)

鸿荣源尚云一国际商圈,双地铁口,尚系新作,开发商为鸿荣源集团,成立于1991年,凝聚32年高端项目打造经验。项目占位龙华超级商圈核芯,壹方城旁,紧邻9年一贯制学校,以“城无界,自从容”为理念,打造集住宅、办公、商业于一体的高品质住区,匠筑约82-120m3-4房2卫,满足三代同堂从容居住体验,成就置业超级商圈的至尚之选。

位于龙华超级商圈壹方天地旁,距离地铁4号线龙华站约1.1公里,步行约15分钟,区域配套设施完善,临近上塘-红山片区。

项目基本信息

占地:约3万㎡

建面:约27万㎡

产权年限:70年(2022-2092)

总栋楼:共8栋,本次推2栋

总户数:1278户

本次推售:612户

面积:约82-89㎡3房2卫

总楼层:54-57层

均价:约5.7万/㎡

使用率:85%

梯户比:3梯6户

停车位:1732个

交房标准:简装

交房时间:2025年12月前

管理费:5.9元

物业管理:鸿荣源物业

开发商:鸿荣源集团开发

地址:龙华中心龙华人民路与工业路交叉口

项目总占地面积约2.68万㎡,总建筑面积约23.6万㎡,容积率7.78,绿化率40%,分为南区和北区2个地块开发,总规划1878户(可售商品房1278套),停车位1521个,车位比1:0.81。

园区环境

铝板外立面:沿袭豪宅美学基因,升级打造铝板立面,鸿荣源匠心品质保证,外立面历久弥新,鸿颜不老。

奢阔主入口:总高约11.9米,天然石材搭配不锈钢材装饰,营造高奢归家礼遇

轻奢酒店风格入户空间:石材+香槟金铝板打造,营造朗阔归家体验

高速电梯:日立电梯,平均速度4m/s,生活无需等待

双层园林景观:让每一寸空间都成为业主的舒心领地

多组团园林设计:多元景观融合,繁忙都市生活中的林谷氧吧

多模块架空层:艺术/休闲/玩趣/运动四大模块,打造全龄适配休闲场所

开发商实力

鸿荣源多年来坚持投身粤港澳大湾区建设一线,依托深圳,深耕湾区,综合开发建筑面积超千万平米,服务客户逾4万户。

所到之处,必树标杆。如前海鸿荣源胤璞、前海熙龙湾、宝中壹方中心、香蜜湖的熙园、龙华中心区的壹城中心等,均为片区人居标杆项目。

周边配套

交通方面:

4号线(已开通):龙华站直线距离约1000m,深圳纵向城市交通中轴。

6号线(已开通):上芬站距离约1200m,链接光明、龙华、福田。

25号线(规划):景龙/油福站直线距离约400m,打通城市东西走向核心动脉。

27号线(规划):油福站直线距离约400m,拥抱前海,覆盖各大高新人才聚集地。

22号线(规划):油松站直线距离约1km,连接福田-龙华各大核心产业区。

教育方面:

项目一路之隔即为深圳市艺术高中民治学校(中学、小学),目送式上下学,定位示范性国际化学校,全校可提供学位2520个,2023年已开始招生。周边还有龙华实验学校(初中)、华东师范大学附属龙华学校(中学、小学),龙华未来小学等等。

商圈方面:

项目自带约1.25万㎡商业,周边紧挨着鸿荣源壹方天地购物中心,内含1000米华南最长商业步行街,ABCDE五大主题商业区,超1000家品牌商家。

文体方面:深圳书城龙华城、龙华文体中心、简上体育综合体、展览馆、演艺馆、深圳市图书馆北馆、美术馆新馆、深圳市文化馆新馆。

医疗方面:深圳龙华区人民医院、龙华区中心医院、广州医科大学附属第一医院、深圳市第二儿童医院(在建)、新华医院(在建)

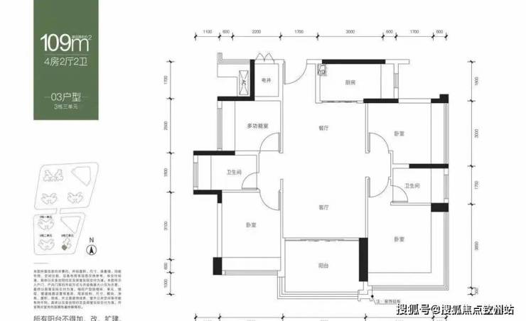
户型鉴赏

🔘鸿荣源尚云售楼处电话☎:400-033-1856【售楼处已认证】

🚦在售户型图丨项目介绍丨最新房源丨周边配套丨详细解答〢

🔘鸿荣源尚云营销中心电话:400-033-1856【售楼处已认证】

⭐◆开发商营销中心诚挚邀请,一键预约,尊享内部折扣!匠心独运的精品项目,恭候您的品鉴与选择。

⭐项目最新介绍:备案价、折扣、学区、地铁、交通、户型图、特价房、优缺点、得房率、优惠活动、小区图片、开盘时间、交房时间、周边配套、售楼处位置、最新详情等咨询。

免责声明:

1、本文、图片等信息部分来源于网络,如有相关内容侵权,烦请联系删除。

2、本文所提及一切图文资料以政府最后审批之法律文件及买卖双方签订的买卖合同为准。

3、我们重在分享,本文所述内容和意见仅供参考,不构成市场交易依据和投资建议。

全部

相关资讯

报名成功
稍后会有专业的置业顾问联系您
返回楼盘

频道导航

返回首页

看房小程序

APP下载

电话拨通后,请您手动拨打分机号

确定拨打电话

电话号码:

分机号:(可能需要拨分机号)