…保利玥玺湾……保利玥玺湾…


保利希望这个项目,继续为珠江添色,成为临江大道上的点睛之笔。所以,玥玺湾没有采用传统的建造方式,而是在江边搭起了一座:高达11米的空中浮岛,并形成约280米的超级城市界面。

在这座浮岛中,保利通过实景示范区,展示了三进归家礼仪、满配会所、以及十二大非遗工艺。对业主来说,这是隐奢,是排面,是生活的气度和仪式感;对城市来说,这是艺术,是审美,是世界看广州的第一眼,也是珠江的动人故事。

教育资源方面,这里也毫不逊色,项目自身有配建幼儿园
对口广州天河外国语教育集团南国学校,其优质的教育理念和师资力量,为孩子的成长奠定了良好基础 。
不仅如此,地块 1.5 公里范围内,学校林立,从幼儿园到中学,覆盖全年龄段教育 。
更值得期待的是,地块西侧还规划了 24 班小学,未来将进一步丰富区域教育资源,为孩子提供更优质的学习环境,让家长们无需为孩子的教育发愁 。

东北侧就是广州地铁 5 号线与 11 号线交汇的员村站,仅 300 米的距离,步行几分钟即可到达 。
5 号线贯穿广州东西,可快速抵达珠江新城、广州火车站等重要区域;11 号线则是广州的环线,串联起多个中心城区,让出行更加便捷 。
除了地铁,周边多条主干道环绕,自驾出行也十分方便,无论是前往广州的哪个角落,都能轻松实现快速通勤 。

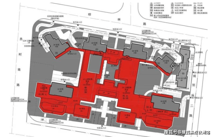
配建巨量底商(红色部分),未来极有可能打造成为会所,顶部承担屋顶花园功能。与其他项目不同的地方在于,其他项目会所往往环绕住宅分布,保利面粉厂项目的会所则渗透全盘。

户型品鉴
1#35层高,只有一个面积段,约630㎡户型

3#50层高,约203-227㎡户型

5#50层高,约237㎡户型

6#49层高,约270-347㎡户型8#49层高,约270-347㎡户型9#37层高,约411-436㎡户型


