满京华·金硕和府(售楼处)首页网站-满京华·金硕和府营销中心-满京华·金硕和府欢迎您丨户型价格-容积率-样板房-配套详情@售楼处

钦州楼市发布

2025-05-28 10:14:49

购房群

买房如何避坑,加入购房群,看看他们怎么说

立即进群

✨✨✨✨欢迎进入【满京华·金硕和府】首页网站✨✨✨✨

✅《满京华·金硕和府》售楼处电话:☎400-112-1828【售楼处已认证☎】

✅ 过来参观样板房请记得提前来电预约!✨✨

✅《满京华·金硕和府》开发商电话:☎400-112-1828【售楼处已认证☎】

✅为您安排楼盘现场销售全程接待并讲解,给您更贴心的看房体验!

☞☞Vip贵宾置业==欢迎来电预约尊享内部折扣===匠心钜制恭迎品鉴☜☜

✅ 售楼部热线, 项目介绍,包括楼盘简介、售楼处电话、营销中心位置、房价、价格、折扣学校、地铁、交通、户型图、备案价、特价房、优缺点、得房率、优惠活动、小区环境、开盘时间`交房时间、售价、容积率 ,单价

【项目基础信息】

【开发商】深圳市满京华置业投资有限公司

【项目地址】光明区光辉大道与狮山三街交汇处

【总占地面积】约11万㎡

【总建筑面积】约88万㎡

【和府占地面积】约0.88万㎡

【和府建筑面积】约7.48万㎡

【和府总套数】458户

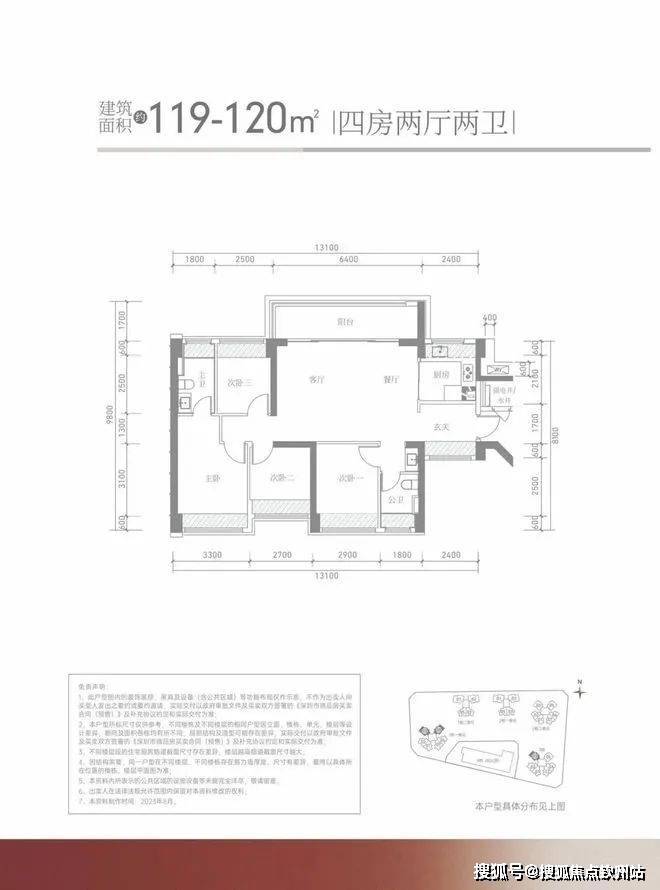
【产品户型】建筑面积约85-88m²三房两卫、建筑面积约110-114m²四房两卫、建筑面积约113-119㎡四房两卫

【交付标准】全装修

【梯户比】1栋49F3T6户、2栋33F2T/6户

【车位比】1:1.10(505个)

【容积率】5.74

【物业费】4.3元/㎡/月

【产权年限】70年

【批地时间】2023年4月

【交楼时间】2026年底

满京华·金硕聚合商业、教育、产业、生活等多重业态。从项目从选址到空间布局,都坚守匠心铸家的理念,让居住空间成为艺术与生活的相互交融载体

交通资源

周边分布有地铁6号线的光明、科学公园站,距离约1公里左右,两站可换乘13号线,规划有另一条直达南山科技园的29号线,轨道交通便利。

文娱休闲

家门口有科学公园,占地面积约为208万㎡,公园内规划有科学岛、深圳国际美术馆、科技馆新馆、西方美术馆等,紧邻科技创新文化集群。

临近狮山公园、约9.4万㎡的东周文化公园,约10万㎡的开明公园,约56万㎡的新城公园等丰富绿色生态资源。

深圳满京华金硕和府@光明满京华金硕和府

在售户型图丨项目介绍丨最新房源丨周边配套丨详细解答〢

⭐◆开发商营销中心诚挚邀请,一键预约,尊享内部折扣!匠心独运的精品项目,恭候您的品鉴与选择。⭐

✅ 过来参观样板房烦请记得提前来电预约!

✅ 为您安排楼盘现场销售全程接待并讲解,给您更贴心的看房体验!

科学公园效果图/图源网络

商业资源

项目自带商业综合体外,1公里左右还有在建的星河cocopark,以及3公里处还有目前光明最繁华的凤凰城蓝鲸世界,万达广场、天虹等大型商业。

教育资源

周边也分布有多所学校(具体学区范围以官方公布为准),包括有华师大附属星河小学,2024年录取积分:第八类27.7分;

深实验光明学校,2024年录取积分:第一类118分;

深圳小学光明曙光学校,2024年录取积分:第二类97.75分。

大城精铸 | 置业首选

【满京华·金硕华府 建面约88-141㎡ 3-4房】:金硕华府以通透的空间格局、细致的设计,打造舒适感与空间感兼得的品质空间,户型方正,部分南北通透,部分超大阳台景观视野瞰景科学公园,奢阔卧室空间,百变空间满足追求多元品质空间的三代同堂生活需求。

✅《满京华·金硕和府》售楼处电话:☎400-112-1828【售楼处已认证☎】

✅温馨提示:看房请提前来电预约,谢谢配合!✨✨

✅《满京华·金硕和府》开发商电话:☎400-112-1828【售楼处已认证☎】

☞☞Vip贵宾置业==欢迎来电预约尊享内部折扣===匠心钜制恭迎品鉴☜☜

✅楼盘最新介绍:备案价、折扣、学区、地铁、交通、户型图、特价房、优缺点、得房率、优惠活动、小区图片、开盘时间、交房时间、周边配套、最新详情等咨询

✅免责:本文部分内容来自网络,如有侵权,请联系删除!!!

全部

相关资讯

报名成功
稍后会有专业的置业顾问联系您
返回楼盘

频道导航

返回首页

看房小程序

APP下载

电话拨通后,请您手动拨打分机号

确定拨打电话

电话号码:

分机号:(可能需要拨分机号)