——中山火炬·博爱里——
项目最新介绍:房价、折扣、户型图、特价房源、得房率、优惠活动、开盘时间、交房时间、周边配套、最新详情等咨询。
中山博爱里售楼处电话:400 033 9667
中山博爱里售楼中心24小时电话:400 033 9667【营销中心】
温馨提示:过来看房请记得提前来电预约,尊享售楼处1v1销售专业讲解,感谢您的来电!
欢迎来电咨询,预约看房即可尊享购房专属优惠,房源信息真实有效。项目开发商销售团队全程营销策划,案场内部销售人员,专业热情一对一服务,让您用专业眼光去买房。
➤➤➤➤VIP贵宾置业〢欢迎来电咨询〢品鉴!!
坐落于中山火炬开发区的迪兴.博爱里项目,位于博爱七路一侧,紧邻深中通道,交通便利,距离花园路和光丰路也仅有步行距离。项目周边配套设施更是齐全,配有酒店和文化艺术中心,以及便捷的居住区。

基本信息
项目名称:博爱里(别名:博爱里花园)
开发商:广东迪兴实业投资有限公司
物业公司:中山市迪兴物业管理有限公司
产权年限:普通住宅产权为70年
楼盘地址:中山市火炬开发区博爱七路103号
占地面积:约37000平方米(约56亩)
建筑面积:约110000平方米
容积率:2.0
绿化率:38%
楼栋总数:7栋
总户数:458户
楼层状况:1-2#为25层,3-4#为17层
项目背后是龙马体育中心,提供丰富的运动设施,包括游泳和羽毛球等,为居民提供了多样化的休闲娱乐选择。
除了自身的商业配套,博爱里项目距离coco city天奕国际、紫马岭公园等热门场所仅需短短的车程,听首歌的时间就到了,为居民提供了更多的休闲和购物选择。此外还有,网红私房菜“猪肉婆”即将进驻中山,创始人表示已在中山买地皮,到时,想品尝美味私房菜,也是一脚油门就到了,及其方便。
在日常居家生活方面,平时需要买菜做饭的居民可前往项目周边的长江综合市场、陵岗市场等,购物和做饭十分便利,均在10分钟左右的车程范围内。博爱里项目位于中山主干道博爱路,周边教育和医疗资源丰富,品质高端。
项目开发商迪兴实业铸造了中山市火炬区标志性建筑,包括盛景尚峰金融商务中心和紫马奔腾等。迪兴实业在中山深耕31年,用心打造了多个项目,其中包括中山市火炬大数据中心,已被评为省级大数据产业园。
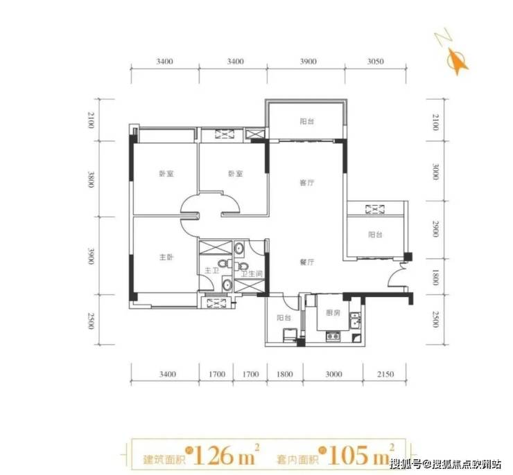
该户型多处空间非承重墙设计,满足家庭成员个性化需求。

开发商售楼处热线:400 033 9667 【营销中心】
本文内容为广告推广,涉及房价或现有房源可能出现变更,请致电详询并以售楼部为准
免责声明:本文如无意中侵犯了某方的知识产权告知即删,部分内容图片可能来源于网络,无法核实其真实出处,如涉及侵权请联系本网站删除!!!