深圳@松茂御城2期(营销中心)售楼处电话_松茂御城2期欢迎您丨松茂御城2期售楼网站_最新详情

钦州楼市发布

2025-08-29 09:56:22

购房群

买房如何避坑,加入购房群,看看他们怎么说

立即进群

松茂御城2期-约81-135㎡N+1全功能空间准现楼 总价280万起!

松茂御城2期售楼处电话: 400-016-8586 【已认证】(营销中心)

温馨提示:来电预约看房、尊享更多现场优惠!(中介勿扰)

松茂御城2期售楼中心热线: 400-016-8586 (售楼处)【VIP贵宾专线】

松茂御城2期楼盘最新介绍:备案价、折扣、学区、地铁、交通、户型图、特价房、优缺点、得房率、优惠活动、小区图片、开盘时间、交房时间、周边配套、最新详情等咨询。

🏡项目基础数据🏡

开发商:深圳市松茂房地产集团有限公司

总建面:约30万㎡

容积率:约4.55

绿化率:约40%

车位数:2222个

物业费:3.8元/㎡/月

物业公司:深圳市海天泰物业管理有限公司

项目地址:深圳市光明区·13号线月亮路站西侧

项目核心价值

✅【全功能户型】约81-135㎡N+1全功能空间,满足不同家庭居住需求:

81㎡三房两厅两卫,空间利用极致,功能齐全。

89㎡四房两厅两卫,同等面积多一间房,二孩家庭也能三代同堂。

108㎡阔绰四房两厅两卫,部分独立入户,品质生活一步到位。

135㎡稀缺阔绰五房两厅两卫,奢阔平层独门独户,悦享宽境奢居。

✅【铝板外墙】光明新盘中少有的铝板外墙项目,铸就精工品质。

✅【幕墙式阳台】约1.8米高全定制一体成型外挂式阳台玻璃,双层夹胶中空LOW-E玻璃打造而成。

✅【高品质公区配置】首层、地库双层精装入户大堂,每个楼座均配备约33-68㎡首层入户大堂。

✅【超阔楼间距】南北约128米超阔楼间距,视野开阔无遮挡,私密性更好。

✅【社区大园林】约2万㎡全龄互动大园林,打造一园五境“度假公园”式社区园林。

✅【高抬水韵主入口】主入口叠水流瀑搭配罗汉松,高抬轩昂门庭彰显尊荣威仪,于步步高升中体验归家的仪式感。

✅【双层架空泛会所】约6500㎡三层屋顶花园与双层架空层,规划5大沉浸式休闲场景,满足老人、儿童、青年的日常休闲运动所需。

✅【林水主题艺术中庭】以“与自然为邻”为设计理念,将自然渗透社区,形成各有特色的林水主题艺术中庭,在居住区中演绎自然艺术生活场景。

✅【约410㎡浮光亲子双泳池、约300米元气健康跑道】沉浸式体验“度假公园”式社区园林。

✅【约30万㎡低密大社区】光明少有的非超高层低密度大社区,低密度更宜居。

✅【精工准现楼】建筑品质、装修品质等所见即所得。

✅【核芯地段】归属凤凰街道,邻约383万㎡13号线重点城市更新,区域规划升级红利正逐步兑现。

✅【双地铁站】邻13号线(在建中)月亮路站与将围站,1站凤凰城,9站进南山。

✅【2+1实力学府】深实验光明明湖学校+深中光明科学城学校,光明区实验学校,周边还规划有两所九年一贯制学校。

匠心打造 铸就精工品质

铝板外墙 幕墙式阳台:立面甄选高品质铝板,以精湛工艺锻造精工品质,赋予建筑历久弥新的质感。搭配玻璃幕墙式阳台,勾勒简约时尚的建筑艺术,彰显人居价值与美学价值。

精装入户大堂 高品质区打造

首层、地库双层精装入户大堂,每个楼座均配备约33-68㎡首层入户大堂,首层大堂约4米挑高,营造高星级酒店般的尊崇归家体验。

南北约128米超阔楼间距

围合式布局,南北高达约128米阔绰楼间距,保障良好采光与生活私密性,于四季风光流转中,让生活与自然坦诚相见。

约2万㎡社区大园林

容纳双层架空泛会所、活力健康跑道、阳光草坪、露天亲子双泳池等多元休闲场景,打造“度假公园”式社区园林。

【高台阔府 水韵门庭】入口处叠水流瀑搭配罗汉松,高台轩昂门庭彰显尊荣威仪,于步步高升中体验归家的荣耀。

【双层架空泛会所 】融合儿童活动区、老年活动区、青年运动馆、会客厅等休闲场景,勾勒全龄温情日常。

【浮光亲子双泳池】约410㎡浮光亲子双泳池,配备成人泳池与独立儿童池,安全之上,更享自在畅泳的亲水时光。

【元气健康跑道】约300米环形跑道,穿行林荫花径激活满满能量,在自然中奔跑,邂逅运动的无限乐趣。

约30万㎡非超高层 低密大城 品质生活范本

项目总建面约30万㎡,是光明少有的非超高层低密度大社区;项目二期由8座塔楼和一所幼儿园围合而成。

精工准现楼 所见即所得

项目精工准现楼发售,建筑品质、装修品质等所见即所得。

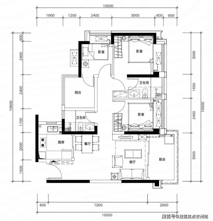
户型鉴赏

✅ H01户型:约81㎡ 三房两厅两卫:

✅ G03户型:约81㎡ 三房两厅两卫:

✅ G05户型:约82㎡ 三房两厅两卫:

✅ B01户型:约89㎡ 四房两厅两卫:

B02户型:约89㎡ 四房两厅两卫:

✅ B03/05户型:约89㎡ 四房两厅两卫:

G02户型:约109㎡ 四房两厅两卫:

✅ G01户型:约135㎡ 五房两厅两卫:

E03户型:约135㎡ 稀缺五房两厅两卫:

邻383万㎡13号线重点城市更新

项目位于广深港科创走廊重要节点的“世界一流科学城”光明,归属凤凰城街道,邻建面约383万㎡13号线重点城市更新单元(在建),占位光明城市发展的“价值洼地”,同享磅礴产业规划红利。13号线重点更新项目(在建),总投资约420亿元,其体量约为光明城站TOD的25倍。将结合13号线月亮路站塑造、城市蓝绿公园网络提升、产城空间更新,无限链接生产、生活、生态要素,建设成光明区“三生融合示范区”。

目前一期产业约36万㎡已竣备完工,预计2025年内交付;深实验光明明湖学校2025年已正式招生办学;凤凰文体中心等已立项,高规格城市配套正逐步兑现。

(信息参考:2023年12月8日“深圳光明”微信公众号《光明大手笔打造明湖智谷“三生融合示范区”》)

多维立体交通 便捷畅行大湾区

【13号线双地铁站】邻地铁13号线(预计2025年底开通),近享月亮路站与将围站,未来1站凤凰城,9站进南山,快速接驳南山科技园。

其中地铁13号线一期(深圳湾口岸站—上屋站)的南段(深圳湾口岸站—高新中站)已于2024年12月28日正式开通初期运营。2025年5月19日,13号线一期工程北段(高新北站至上屋站)顺利完成热滑。北段预计2025年年底开通。

【三纵路网】松白路、南光高速、龙大高速,高效链接福田、南山。

【四横路网】光明大道、东明大道、周家大道、公明大道,畅行光明繁华。

【一高铁站】快速接驳光明城高铁站,1站深圳北,2站达福田,3站速达香港西九龙/广州南。

全龄学府邻立 滋养菁英未来

【自建幼儿园】社区自建约2400㎡9班公立幼儿园(在建),家门口的快乐启蒙。

【全龄优质学府】距深实验光明明湖学校(已正式招生办学)直线距离约800米,周边更有深圳市光明区实验学校、深圳中学光明科学城学校、深圳市光明区凤凰城实验学校等九年一贯制学校,护航孩子更好成长。

多维社区配套 畅享一站式生活体验

【商业服务】约1.3万㎡社区商业,涵括生鲜超市、社区邮局、银行等,满足生活所需。

【社区交通】社区公交首末站,无需辗转等待,高效通勤无缝接驳周边轨道交通,出行更便捷。

【颐乐康养】社区托育中心、老年活动中心、老人日间照料中心,给家人更多关爱。

【公共绿地】约1万㎡市政公共绿地(规划),拓展多元休闲,打造第二会客厅,提升日常幸福感。

醇熟商圈 尽享繁华

约38万㎡醇熟商业,享繁华万象:约1.3万㎡社区商业(在建)、约6万㎡13号线城市更新商业(在建),5公里内同享约15万㎡光明大仟里、约10万㎡蓝鲸世界、约6万㎡万达广场等醇熟商业。

公园为邻 生态宜居

约200万㎡城市公园群,绿意荟萃:约58万㎡明湖城市公园举步即达,更新单元内约60万㎡主题公园(在建)、约6.8km茅洲河生态长廊等绿意荟萃。

多元文体 休闲逸趣

三馆一心文体配套,丰富休闲生活:13号线重点城市更新片区内规划城市展厅、博物馆、凤凰文体中心等三大场馆,3公里内近享光明文化艺术中心,涵养高阶生活逸趣。

————【松茂御城2期】————

开发商售楼处热线:400-016-8586 【营销中心】

本文内容为广告推广,涉及房价或现有房源可能出现变更,请致电详询并以售楼部为准

免责声明:本文如无意中侵犯了某方的知识产权告知即删,部分内容图片可能来源于网络,无法核实其真实出处,如涉及侵权请联系本网站删除!!!

全部

相关资讯

报名成功
稍后会有专业的置业顾问联系您
返回楼盘

频道导航

返回首页

看房小程序

APP下载

电话拨通后,请您手动拨打分机号

确定拨打电话

电话号码:

分机号:(可能需要拨分机号)