前海时代.尊府三期售楼处电话→2025最新@前海时代.尊府三期售楼中心电话→楼盘百科→前海时代.尊府三期→首页网站→前海时代.尊府三期24小时热线电话

钦州楼市发布

2025-07-27 09:50:39

购房群

买房如何避坑,加入购房群,看看他们怎么说

立即进群

深圳-前海时代.尊府三期线上售楼处!

前海时代.尊府三期售楼处电话: 400-016-8586 【已认证】(营销中心)

温馨提示:来电预约看房、尊享更多现场优惠!(中介勿扰)

前海时代.尊府三期售楼中心热线: 400-016-8586 (售楼处)【VIP贵宾专线】

前海时代.尊府三期楼盘最新介绍:备案价、折扣、学区、地铁、交通、户型图、特价房、优缺点、得房率、优惠活动、小区图片、开盘时间、交房时间、周边配套、最新详情等咨询。

这次3单元是53栋几个单元中位置最好的,位于头排,景观视野基本没有遮挡,高层还能看到部分海景。

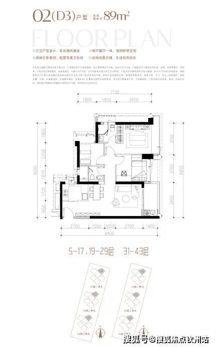
前海时代尊府户型图

89/190㎡3-4房

『多重价值 领衔未来湾居前沿』

【区域】前海桂湾 活力国际金融城

【交通】地铁枢纽 高效交通全球互联

【配套】丰盛集萃 举步可揽世界精粹

【TOD】百万大城 献映时代美好生活

【匠心】府系力作 钜献环幕湾居大宅

【品牌】国企实力 筑就时代湾居典范

【前海湾区新中心,桂湾国际金融城】

前海:特区中的特区,五重国家战略叠加、16项战略定位、24项政策加持,总斥资约3839亿元,国家顶层意志凝聚,迈向湾区城市新中心。

桂湾:汇聚前海十余年发展精粹,规划打造24h活力的国际金融城,加速迈向世界金融和科技中心与全球总部中心,以国际化视野,领衔未来湾居趋势。

【轨道枢纽极核 集萃湾芯万象】

近地铁1/21号线(规划中)鲤鱼门站,坐拥海陆空轨多维交通,可瞬达湾区城际及全球主要城市,聚集前海较为成熟的桂湾繁盛配套,荟萃商业商务、生态人文等优质资源,随时融入大湾区国际化生活圈。

【多地铁】1/21号线(规划中)鲤鱼门站,近5号线桂湾站,9号线梦海站

【多路网】滨海大道、梦海大道等三横三纵路网

【六城际】穗莞深/深莞/深惠/穗深延长线(在建)、深珠/港深西部铁路(规划中)

【三高速】沿江高速、深中通道(已通车)、深珠公铁两用线(规划中)

【三港口】赤湾港、妈湾港、太子湾邮轮母港

【二机场】深圳宝安国际机场、香港国际机场

【一口岸】前海口岸(规划中)

【百万TOD综合体,交互美好生活】

深铁前海时代,总建面约130万㎡综合体TOD地标,引领时代湾居美好向往。

已建成物业:总建面约45.2万㎡,包括CEO公馆、国际都荟住宅、深圳市前海深港基金小镇以及学校等。

在建/待建物业:总建面约84.3万㎡,集国际公寓、总部办公、高端住宅、风尚商业、精品酒店等全业态价值连接,商务、社交、生活等全场景切换自如。

【云境美学园林 邻里社交聚场】

以“云巅之上,熙照万千”理念,打造“云谷、云峰、云海”三重云境园林,十八项景观体系;架空层打造邻里活动中心,及业主私享悬浮式泳池,预留户外休闲空间,儿童游戏空间等,领悟自然与艺术的交融之美,营造独特的精神归属感。

【现代美学立面 辉映天际封面】

深铁府系精工携手匠心团队,联袂共筑世界湾居新坐标,香槟金搭配高级灰调立面,现代建筑与艺术风格交相辉映,勾勒前海天际美学封面。

·景观设计 :DDON笛东/梁黄顾事务所

·室内设计 :CCD郑中/ARUP奥雅纳

·建筑设计 :Leigh & Orange/A+E奥意建筑

【臻奢品质公区 礼序归家仪式】

约9m高臻奢大堂,精研艺术与生活交融之美,匠心雕琢金属与石材质感,让归家之路成为艺术巡礼。

私享入户电梯厅,昭示显赫门庭,出门入户间,尽享艺术格调洗礼。

负一层典雅车马厅,阔绰车行落客区,出入尽享优雅从容。

『深铁置业 抵达无限可能』

深铁置业为深铁集团全资子企业,2022-2024连续三年荣膺“深圳市房地产开发行业综合实力十强”榜首,探索并形成国内领先的“轨道+物业”开发模式。深铁前海时代,深铁置业又一TOD力作,共进大湾区时代。

————【前海时代.尊府三期】————

开发商售楼处热线:400-016-8586 【营销中心】

本文内容为广告推广,涉及房价或现有房源可能出现变更,请致电详询并以售楼部为准

免责声明:本文如无意中侵犯了某方的知识产权告知即删,部分内容图片可能来源于网络,无法核实其真实出处,如涉及侵权请联系本网站删除!!!

全部

相关资讯

报名成功
稍后会有专业的置业顾问联系您
返回楼盘

频道导航

返回首页

看房小程序

APP下载

电话拨通后,请您手动拨打分机号

确定拨打电话

电话号码:

分机号:(可能需要拨分机号)