
最新消息:【珈誉玖玺】将加推10栋1单元,将于7月12日(本周六)开放全新样板房,面积84㎡南向3房跟137㎡4房,价格如下:
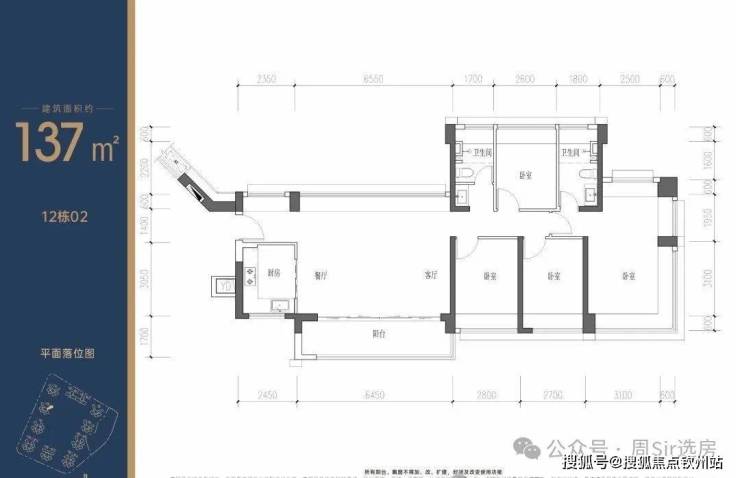
1、【绝版四房】约137㎡(四房两厅两卫):单价约5.2-5.5万,总价约711-750万
优势:珈誉大城绝版四房,仅86席限量加推,私享入户空间,大横厅双阳台南北通,空间可设计性强,约93%超高实用率。
2、 【全南三房】约84㎡(三房两厅两卫):单价约4.5-4.8万,总价约380-405万
优势:玖玺3房2卫最低上车门槛,稀缺南向,视野无遮挡,看山景,湖景,海景。
对项目感兴趣可以加我们预约看房,千万别自己去看房;预约我们才有额外优惠和最底价,咨询电话:15889473566
往期销售:
☆ 1、项目2024年10月13日推出的6栋,面积为169-199㎡4房和12栋的124-137㎡4房,6栋备案均价6.2万,12栋备案均价5.6万,开盘有93折优惠,首开当天去化9成。
☆ 2、2024年11月16日加推8栋的122㎡-126㎡4房,共87套。备案均价5.69万带精装,开盘93折优惠,折后均价5.29万。
☆ 3、今年开始推售小户型,3月1日加推10栋2单元75-84-94㎡3房和12栋78-97㎡3房,约339套住宅。开盘有93折优惠,折后均价约4.85万。
约75㎡:单价约4.70-4.91万/㎡,总价约354-370万
约78㎡:单价约4.68-4.95万/㎡,总价约367-388万
约84㎡:单价约4.64-4.93万/㎡,总价约389-413万
约94㎡:单价约5.01-5.17万/㎡,总价约473-488万
约97㎡:单价约5.03-5.25万/㎡,总价约490-511万。
☆ 4、3月22日加推9栋1单元,面积83㎡3房-89㎡3房-110㎡4房,约315套住宅。开盘有93折优惠。
约83㎡:单价约4.61-5.23万/㎡,总价约383-435万
约89㎡:单价约4.87-5.35万/㎡,总价约435-478万
约110㎡:单价约5.5-5.68万/㎡,总价约608-627万
☆ 5、4月26日加推13栋,面积77-90-93平,共266套,均为3房。
备案均价5.18万带精装,开盘有93折优惠,折后均价约4.8万,折后总价346万起。
约77㎡:单价约4.47-4.78万/㎡,总价约346-370万
约90㎡:单价约4.56-4.83万/㎡,总价约411-435万
约93㎡:单价约4.94-5.21万/㎡,总价约457-482万
一、项目介绍
鸿荣源·珈誉府,位于宝安大道于凤塘大道交汇处东南侧,该项目原是"塘尾片区城市更新单元“,由鸿荣源集团一手打造,也号称是第二个壹城中心升级版,地处沙井核心板块,周边1公里内涵盖3个重量级商业(万丰海岸城购物中心+鸿荣源壹方奥特莱斯+华强购物中心),11号地铁线”塘尾站“距离约300米。
珈誉府总建面约248万㎡,将打造近8000套住宅,其中住宅面积70万㎡,商业面积50万㎡,共分4期开发,是鸿荣源集团全新开发的地标级综合体大盘,涵盖高端住宅、商业办公、星级酒店、优质教育、大型购物中心等业态。

其中三期鸿荣源·珈誉玖玺,总占地面积约4.79万㎡,总建筑面积约40.53万㎡,计容建筑面积约27.63万㎡,容积率5.42,绿化率40%,共由10栋总高31-48F住宅组成,其中6栋1/2单元住宅44F,7栋/8栋住宅48F,9栋1单元住宅46F,9栋2单元住宅45F,10栋1单元住宅47F,10栋2单元住宅31F,11栋住宅46F,12栋/13栋住宅48F。
总规划2479户,全部都是商品房,地下室有3层,规划停车位2795个,车位占比约1:1.127。
二、项目基础数据
【项目基础数据】
【开发商】鸿荣源集团
【占地面积】总4.79万㎡
【建筑面积】总40.5万㎡
【总户数】2479户
【户型面积】加推10栋约84-137㎡3-5房
【停车位】2795个,车位占比约1:1.127
【物业及物业费】鸿荣源物业,5.9元/㎡
【绿化率】约40%
【容积率】5.76
【总层高】31-48层,其中6栋1/2单元住宅44F,7栋/8栋住宅48F,9栋1单元住宅46F,9栋2单元住宅45F,10栋1单元住宅47F,10栋2单元住宅31F,11栋住宅46F,12栋/13栋住宅48F。
【梯户比】2T2户/3T5户/3T6户/3T7户
【交楼时间】预计2026年,简装交房
【产权年限】70年(2022.5-2092.5)
【项目位置】宝安区宝安大道与凤塘大道交汇(11号线塘尾地铁站)
三、项目户型图
01
项目平面图
02
项目户型介绍
77㎡的3房2厅1卫,经典的竖厅户型,动静分区,S型冰箱位,餐客厅一体,客厅开间约3.1米,三个房间其中一个次卧和主卧都是双飘窗。
主要分布在13栋的06/07户型,西南朝向看珈誉府6区。
90㎡的3房2厅2卫,南北通大横厅户型,动静分区全明户型,U型厨房,餐客厅一体,客厅开间约5.9米,三个房间和客厅都带大飘窗,主卧双飘窗带独立卫生间。
主要分布在13栋的01/02户型,01户型是东北朝向(阳台)看小区花园,02户型是西北朝向(阳台)看小区花园。
93㎡的4房2厅2卫,经典的竖厅格局,动静分区,西南向三开间,三间卧室都能享受园林景观,主卧双面飘窗,270°L型设计。
主要分布在13栋的03/05户型,都是东南朝向看小区花园。
四、交通出行
鸿荣源珈誉玖玺家门口就是宝安大道及凤塘大道等交通主干道,
11号地铁线“塘尾站”,距离约300米,4站到宝安机场,6站到宝中,7站到前海湾,8站到南山,11站到车公庙。鸿荣源珈誉玖玺家门口就是宝安大道及凤塘大道等交通主干道。
五、商业配套
项目自带50万㎡奥特莱斯商业,汇集了壹方+奥莱的商业模式,在项目北侧还有万丰海岸城近18万㎡的购物中心,这个片区以后也将会是整个沙井最高端最集中的商业购物中心。
六、周边学校
项目旁边,所规划的2个教育用地,已经正式出了红头文件,为深圳外国语宝安学校(集团)南校区,分别为1所63班九年一贯制学校,1所为27班九年一贯制学校(珈誉玖玺旁边),另外根据宝安区2024年最新的学区划分:
小学学区划分在桥头学校小学部、塘尾万里学校小学部、滨海小学(集团)福桥小学、立新湖学校小学部、凤凰学校小学部、滨海小学(集团)文昌小学;
初中学区划分在桥头学校初中部、塘尾万里学校初中部、立新湖学校初中部、福永中学、新安中学(集团)第二外国语学校(初中部)、航星学校初中部、凤凰学校初中部。
虽然同为宝安鸿荣源珈誉府项目,但是因为社区不同,学区划分是有明显区别的,旁边规划的深圳外国语宝安学校南校区仅27个班,后期录取积分应该会非常紧张,另外距离约900米的立新湖学校,在2024年小一的录取积分是86.8分,初一的录取积分是81分,塘尾万里学校在2024年的小一录取积分是100.5分,初一录取积分是94.2分;
按照宝安区教育局公布的积分政策,只要是深圳户籍(其它区)+学区内商品房,基础分100分,深圳宝安户籍+学区内商品房,基础分105分。
七、休闲配套
1公里范围内万丰湖湿地公园、立新湖公园等公园环绕,依然享受城市森意。
近新桥文体中心、沙井文体中心(建设中),高标人文配置,悦享品质生活。
八、片区规划
沙井地处粤港澳大湾区核心区域,是深圳市空港新城的主要辐射和服务区,也是广深科技走廊的关键节点。
随着大航空新城的建设,拥有海、陆、空、轨4维立体交通网络的沙井,将成为深圳宝安的西部中心城区。
九、小区高阶品质
【玖遇·围合式艺术大园林】
🖼约2.9万㎡舒居艺术大园林
🌿围合式布局,最大楼间距约161米
以西班牙著名画家《记忆的永恒》为灵感,打造超现实主义花园,多重梦境空间。
【玖享·全龄双泳池 礼遇归家礼仪轴线】
配备全龄子母双泳池、亲子乐园、交流花园,构建全龄活动功能配套,主出入口列阵式礼仪轴线,体现归家仪式感,品质尊崇感。

向上滑动查看完整图

免责声明:
1、图片信息来源于网络,相关市政规划以政府发文为准;
2、本宣传资料中对项目周边环境、交通、教育及其它配套设施的介绍,旨在提供相关信息,不意味着本公司对此作出了承诺,具体以政府规划及现场实际为准;
3、本宣传资料中部分图片源自网络,素材、版权属于原作者,转载素材仅供大家欣赏和分享,如涉及侵权请联系删除;
4、本宣传资料中涉及到的所有项目效果图及实景合成图仅供示意参考,不代表开发商对此做出了承诺,买卖双方权利义务以双方最终签署的《深圳市房地产买卖合同(预售)》为准;
5、本宣传资料为要约邀请,本公司保留对本资料修改的权利,敬请留意最新的资料。