6月17日,华发珠海大区在与本地主流媒体交流时透露,下半年华发在珠海主城中心地段将有3个全新项目陆续上市,以满足对城市中心的多元化居住需求。
近年来,在 “北联南进西拓” 城市战略驱动下,珠海楼市热点主要集中在横琴、高新区、西部城区:横琴依托琴澳一体化政策红利,成为金融与跨境产业高地;西部城区以航空新城、湖心新城为代表,承接主城区人口与价值外溢;北部高新区则以国家级产业规划为引擎,成为科创人才聚集地。
然而,珠海传统城芯区域(如吉大、南湾、新香洲等)因土地资源稀缺,新盘供应持续萎缩,无论是追求城央成熟配套的本地客群,还是向往港式滨海生活的改善客群,亦或是钟情稀缺生态资源的高端客群,城芯多元化居住需求长期未被充分满足。
作为深耕珠海 45 载的本地龙头国企,华发精准捕捉市场痛点,以全产品线布局回应不同客群的居住理想。华发珠海主城区三大标杆新作 ——「华发·云玺」「华发·天玺」「华发·香山湖壹号」将于2025年下半年陆续上市。
华发云玺项目,臻献深谙港式山海生活美学的峯层改善客群;华发天玺项目,对话珠海新贵阶层的国际化生活理想,近横琴而享城央万象;华发香山湖壹号项目,于凤凰山与香山湖公园生态谧境之间,为向往城芯隐贵生活的高端改善人群,定制高端四代宅藏品。
未来即将入市的三大项目,不仅是华发深耕珠海的实力印证,更是以“华发科技+好房子”的“安全、舒适、绿色、智慧”标准,以匠心回应珠海购房者对品质生活的向往。
【湾区高地,战略区位】
国家全力打造粤港澳大湾区,使其成为世界第四大湾区经济带。随着港珠澳大桥全线贯通,珠海成为全国唯一陆路联通香港和澳门的城市;
作为大湾区西岸交通枢纽城市、湾区创新后发高地、“一带一路”支点城市和珠江口岸核心城市,珠海的战略地位更加凸显;香洲为珠海主城区,是珠海的政治、经济、文化、 科技中心。

【珠海的城市名片 — 吉大】
珠海市的吉大板块,属于香洲区中部,东起海滨公园,西至板樟山隧道口,南至水湾头与拱北接壤、与澳门隔海相望。吉大曾经是珠海的经济及商贸中心,是上世纪九十年代珠海最繁华、耀眼的城市名片,记录着第一代特区人的集体记忆,同时也承载着新一代珠海人的美好期待,虽然城市的发展与变迁导致一些配套设施如免税商场、珠海百货等逐渐退出历史的舞台,但未来如城市之心、九洲湾、吉大村改造等全新地标的加入,整个吉大也会重新焕发生机,再次成为香洲区乃至整个珠海市的经济贸易中心。

【城市更新】
现在整个吉大片区是政府发展的重中之重,城市更新超300亿投资焕新片区未来。
珠海“城市之心”核心区一期项目改造,位于项目东侧约1000m处,总建筑规模约66万㎡。项目计划总投资约159亿元,将打造以30万㎡旗舰商业为核心、以250米商务地标为标志的湾区级城市会客厅。据珠海特区报的消息,“城市之心”核心区一期项目有望于2027年上半年完工。
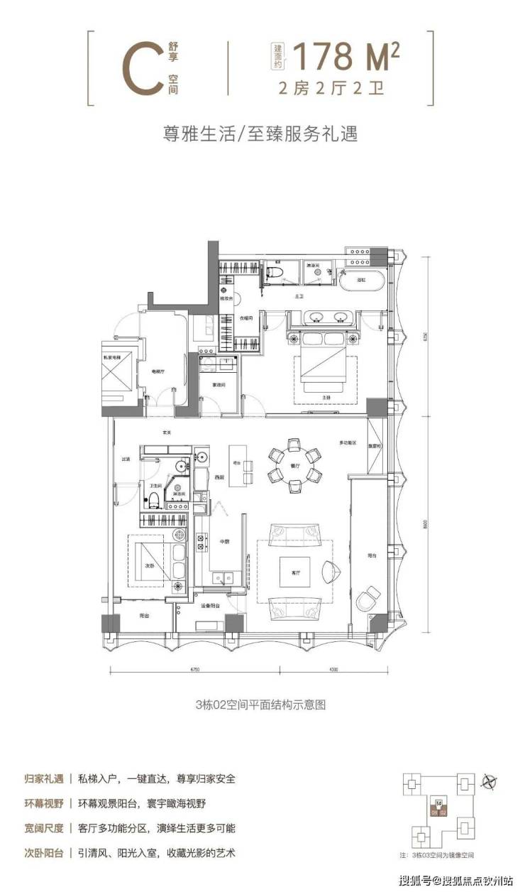
项目介绍

项目户型
平面图及户型图
九洲湾·酒办精装
项目配套
【海陆空轨一体联动,海上黄金坐标】
✅九洲湾坐拥海陆空轨四维交通体系,领占珠海门户,湾区核心枢纽之位。
海:九洲港,水上国门,国家一类对外开放口岸,全国最大的水上口岸客运站。
陆:港珠澳大桥通行便桥直达项目,10分钟抵澳门,1小时达香港。
空:配套直升机坪,便捷商务出行;九洲港直达香港国际机场,海空联运一站式无缝对接。
轨:邻近广珠城轨珠海站,地铁1号线(规划中)始发站九洲港站,立体枢纽网步行即达。
【国家一类口岸上盖】
✅南中国门户九洲港,属于国家一类开放口岸,30分钟通达香港、深圳,极速开启粤港澳一小时生活圈。

【商业配套】
✅项目配套8万㎡国际商业,吉大商圈、拱北商圈、富华里商圈环绕,尽揽商业繁盛。
【教育配套】
✅项目配套8万㎡国际商业,吉大商圈、拱北商圈、富华里商圈环绕,尽揽商业繁盛。
【医疗配套】
✅海湾幼儿园、九洲湾幼儿园(待建)、海湾小学、九洲中学等名校教育资源环绕。
【文体配套】
✅珠海博物院、珠海歌剧院、珠海特区画院美术馆等,尽揽多元艺文空间。
【自然配套】
✅白莲洞公园、海滨公园、石花山公园、景山公园等6大公园环伺。
【珠港澳融城首站,超80万㎡大型综合体】
✅项目在中国南门户,打造超80万㎡大型综合体,涵盖客运及游艇母港、国际商务、高端住宅、艺术公寓、奢华酒店、品质商业、城市广场等诸多业态,肇始湾区未来。
【国际设计大师汇集,缔造美好生活范本】
✅九洲控股集团,携手SOM建筑、SWA景观、FKA光营造、凯莉赫本、邱德光、宾利家居、丽思卡尔顿酒店、万豪行政公寓等全球设计大师与传奇生活品牌,雕琢旷世滨海人居臻品。
【甄选国际一线品牌,共筑精雅生活空间】
✅项目甄选GARDESA卡门、Dierre迪瑞、MASTER、Gaggenau嘉格纳、Miele美诺、V-ZUG瑞族、Schüller旭勒、HACKER海格、Nobilia柏丽、Veneta Cucine威乃达、唯宝、劳芬、杜拉维特、TOTO、当代、高仪、汉斯格雅等国际一线品牌,雕琢格调空间,革新湾区人居体验。

【国际游艇会】
✅坐拥珠海最大国际游艇会配备超300个深水游艇泊位 ,洲湾坐拥珠海最大国际游艇会、国际航海中心,未来,游艇展、游艇派对、国际帆船赛等各类活动,将成为美好藏家的日常。
【礼聘华发物业】
✅国家一级管家,豪宅服务专家,是国际一流的社区生活运营商和综合设施服务商,位列中国物业服务百强企业第 16 位,是国家一级物业,相信您也非常熟悉,高标准的管家级服务为住户提供更无忧的生活后勤保障、24 小时安保和全方位周到、贴心的尊贵服务。